tř. Kosmonautů, Hodolany
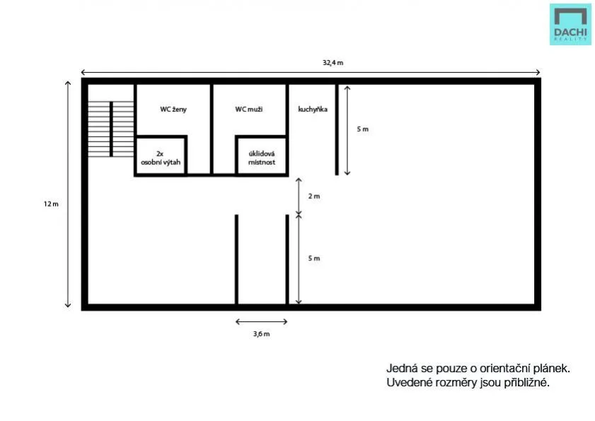
Pronájem části patra kancelářských prostor 300 m, Olomouc ulice Kosmonautů. Prostory se nachází v 5. patře, v budově jsou k dispozici 3 výtahy, z toho 2 osobní a jeden nákladní. Patro je samostatně uzamykatelné. V prostorách je k dispozici i vybavená kuchyňka, sociální zázemí se sprchou a 2x WC páni i dámy. Dle přání nájemníka je možné vybudovat nové příčky, tzn. přizpůsobit dispozice kanceláří. Volné dle dohody. V případě zájmu o prohlídku mne neváhejte kontaktovat.
Máte zájem o tuto nemovistost?
Inzerát si prohlédlo 5 lidí
 
                                Žaneta Hanelová
Chcete dostávat emailem podobné nabídky pronájmu kanceláří v Olomouci?