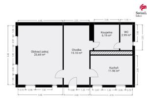
Prodej rodinného domu, Skalsko, 131 m2

Skalsko

Rezervováno
3 990 000 Kč /za nemovitost HYPOTÉKA od 17 833 Kč /za měsíc
Prémioví partneři v Skalsku

Pojištění a finance

Informace k domu

Na návsi malebného Skalska stojí výjimečný dům čp. 24, který je zapsán jako kulturní památka. Tato historická stavba nabízí nejen krásnou architekturu a autentickou atmosféru, ale také jedinečnou možnost stát se součástí příběhu, který se zde píše už po generace.

Dům si uchoval noblesní vzhled, zdobené fasádní prvky a detaily, které dnes působí zcela unikátně. Z předzahrádky s tradičním plotem budete mít krásný výhled na náves, z balkonu nad hlavním vstupem pak příjemný prostor pro posezení s ranní kávou nebo večerní sklenkou vína.

Nemovitost byla donedávna obývána, nicméně budoucí majitel by měl počítat s kompletní rekonstrukcí interiéru. Pro lepší představu o možnostech a potenciálu domu jsou proto v inzerci použity také vizualizace možného budoucího řešení. Ty ukazují, jak lze citlivě propojit historickou architekturu s moderním komfortem.

Samotné Skalsko patří k vyhledávaným obcím na Mladoboleslavsku. Má silný historický ráz, dodnes působí útulně a malebně a je známé svým klidným venkovským prostředím. Obec obklopuje nádherná krajina ideální pro pěší turistiku i cyklovýlety, poblíž se nachází zajímavé památky i tradiční vesnická architektura. Přitom je zde výborná dostupnost do Mladé Boleslavi dojedete za pár minut, Praha je díky dálnici také pohodlně na dosah.

Pokud hledáte bydlení, které kombinuje prestiž historické stavby, atmosféru venkova a zároveň praktickou blízkost města, pak je tohle místo přesně pro Vás. Nemovitost je vhodná nejen pro bydlení, ale také jako reprezentativní sídlo, ateliér či stylový prostor pro podnikání vše samozřejmě v souladu s podmínkami památkové péče.

Tento dům není jen nemovitost. Je to kus historie, jedinečná atmosféra a domov, který čeká na svého nového majitele. Pro více informací nebo domluvení prohlídky mě kontaktujte, realitní makléř Milan Kaňkovský.



V případě více zájemců o nemovitost, si majitel vyhrazuje právo prodat nemovitost zájemci s nejvyšší nabídkou.

Parametry domu

Stav
Rezervováno
Cena
3 990 000 Kč /za nemovitost Spočítat hypotéku
Aktualizováno
19. 5. 2026
Adresa
Skalsko
ID
24562
Stavba
Smíšená
Stav objektu
Před rekonstrukcí
Vybaveno
Ne
Typ objektu
Patrový
Druh objektu
Samostatný
Užitná plocha
131 m2
Zastavěná plocha
94 m2
Podlahová plocha
131 m2
Plocha pozemku
829 m2
Elektřina
230V, 400V
Odpad
Veřejná kanalizace
Topení
Ústřední tuhá paliva
Komunikace
Asfaltová
Voda
Vodovod
Sklep
Bezbarierový přístup
Parkování

Kontaktovat makléře

Máte zájem o tento dům?

Tímto, v souladu s nařízením Evropského parlamentu a Rady (EU) 2016/679, v platném znění, prohlašuji, že mi je alespoň 16 let a uděluji tak svůj souhlas se zpracováním zadaných údajů (jméno, telefon, e-mail, ip adresa) společnosti B3 Technology, s.r.o., IČ: 07330600, se sídlem Novostavby 126/23, 435 11 Lom (správce dat), za účelem předání dotazu z tohoto formuláře Vámi vybranému inzerentovi a zpětného kontaktování mé osoby. Osobní údaje bude správce zpracovávat manuálně i automaticky přímo prostřednictvím svých zaměstnanců. Informace předané tímto formulářem budou uloženy v databázi správce maximálně po dobu 10 let. Odvolání souhlasu s uložením a zpracováním poskytnutých dat lze e-mailem na info@videobydleni.cz. V případě podezření na neoprávněné použití Vámi poskytnutých údajů máte právo předat podnět k šetření Úřadu pro ochranu osobních údajů. Více informací
Chystáte se prodat nemovitost?
Pomůžeme Vám!
Theleadway banner

Inzerát si prohlédlo 39 lidí

Prodejce

Milan Kaňkovský

Milan Kaňkovský

Hlídací pes

Chcete dostávat emailem podobné nabídky prodeje rodinných domů v Skalsku?

Podobné nemovitosti


Nevyhovuje Vám typ domu? Podívejte se na jiné kategorie domů.


Vybrané články z našeho blogu