Pronájem bytu 4+kk, Praha - Vysočany, Pod Harfou, 120 m2 (ID: 4053481)

Pod Harfou, Praha, Vysočany

60 000 Kč /za měsíc Získejte výhodnou HYPOTÉKU

(včetně poplatků)

Prémioví partneři v Praze 9

Stěhovací služby

Výkup a prodej starého nábytku

Informace k bytu

Tento luxusní, sětlý, prostorný mezonetový byt k pronájmu se nachází v klidné a žádané lokalitě Praha 9 – Pod Harfou.

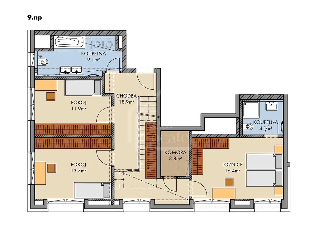
Mezonet o celkové ploše 120 m² nabízí komfortní a praktické bydlení s dostatkem soukromí a nachází se v 9. a 10. nadzemním podlaží s orientací na jih, západ a sever.

Ve spodním patře jsou tři pokoje, dvě koupelny a komora. Horní patro tvoří světlý otevřený obývací prostor s plně vybavenou kuchyní značky Elektrolux, samostatné WC a velká terasa o rozloze 40 m², z níž je část krytá a vhodná pro umístění vířivky.

V každé místnosti je klimatizace, podlahové vytápění a venkovní rolety. Okna jsou izolační trojskla v hliníkovém rámu, podlahy vinylové v barvě světlého dubu a zábradlí na schodišti je skleněné.
Přímo u domu vede cyklostezka. Okolní zástavba je převážně obytná s obchody, službami a hypermarketem. Do centra Prahy se dostanete autem za 15 minut. Tramvajová zastávka je 10 minut pěšky s návazností na metro. Obchodní centrum Galerie Harfa je v docházkové vzdálenosti.

Nájemné činí 60 000 Kč / měsíčně včetně poplatků.
Elektřina se převádí na nájemce.
Vratná kauce je 150 000 Kč.
Součástí nájmu jsou dvě garážová stání a sklep.

Pro více informací a sjednání prohlídky nás kontaktujte.

Parametry bytu

Cena
60 000 Kč /za měsíc
Poznámka k ceně
včetně poplatků
Aktualizováno
2. 10. 2025
Adresa
Pod Harfou, Praha, Vysočany
ID
01826
Stavba
Smíšená
Stav objektu
Novostavba
Patro
9. z 10
Vlastnictví
Osobní
Užitná plocha
120 m2
Třída energetické náročnosti
G - Mimořádně nehospodárná
Garáž
Sklep
Terasa
Výtah

Kontaktovat makléře

Máte zájem o tento byt?

Tímto, v souladu s nařízením Evropského parlamentu a Rady (EU) 2016/679, v platném znění, prohlašuji, že mi je alespoň 16 let a uděluji tak svůj souhlas se zpracováním zadaných údajů (jméno, telefon, e-mail, ip adresa) společnosti B3 Technology, s.r.o., IČ: 07330600, se sídlem Novostavby 126/23, 435 11 Lom (správce dat), za účelem předání dotazu z tohoto formuláře Vámi vybranému inzerentovi a zpětného kontaktování mé osoby. Osobní údaje bude správce zpracovávat manuálně i automaticky přímo prostřednictvím svých zaměstnanců. Informace předané tímto formulářem budou uloženy v databázi správce maximálně po dobu 10 let. Odvolání souhlasu s uložením a zpracováním poskytnutých dat lze e-mailem na info@videobydleni.cz. V případě podezření na neoprávněné použití Vámi poskytnutých údajů máte právo předat podnět k šetření Úřadu pro ochranu osobních údajů. Více informací
Chystáte se prodat nemovitost?
Pomůžeme Vám!

Inzerát si prohlédlo 2 lidí

Prodejce

Pavlína Prokešová

Pavlína Prokešová

Hlídací pes

Chcete dostávat emailem podobné nabídky pronájmu bytů 4+kk v Praze 9?

Podobné nemovitosti


Nevyhovuje Vám typ bytu? Podívejte se na jiné kategorie bytů.


Vybrané články z našeho blogu