Pronájem bytu 3+1, Praha - Krč, Bartákova, 59 m2 (ID: 4054262)

Bartákova, Praha, Krč

21 900 Kč /za měsíc Získejte výhodnou HYPOTÉKU
Prémioví partneři v Praze 4

Stěhovací služby

Výkup a prodej starého nábytku

Informace k bytu

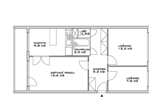
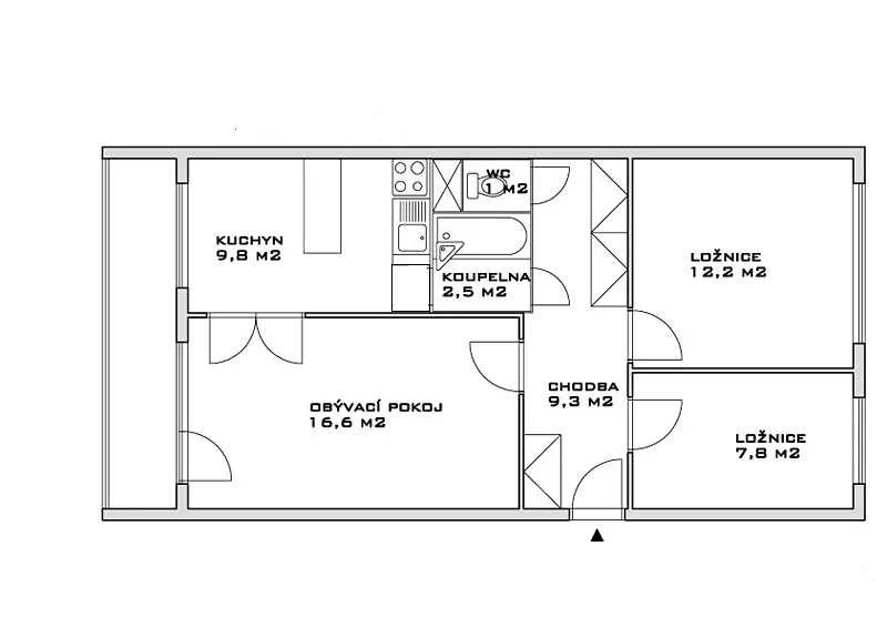
Dovoluji si Vám nabídnout k pronájmu byt s dispozicí 3+1, který je umístěn ve 4. patře panelového domu s výtahem. Celková užitná plocha činí 68 m² včetně prostorné prosklené lodžie s výhledem do zeleně a komory na patře naproti bytu.

Byt je kompletně vybavený včetně mnoha úložných prostor, není jen postel v hlavní ložnici, pračka může být dokoupena majiteli.
Výhody tohoto bytu umocňuje lokalita s dobrou dostupností k dopravní infrastruktuře, včetně silnice, či MHD. V okolí jsou veškerá potřebné obchody, služby, školy apod. (viz. mapa).

Měsíční nájemné činí 21 900 Kč plus zálohy na služby ve výši 4 500 Kč (podle počtu osob) a náklady na elektřinu a plyn. K pronájmu je požadována vratná kauce ve výši 26 400 Kč a provize RK ve výši 22 000 Kč.

Pokud Vás byt zaujal, neváhejte mi napsat nebo zavolat a ráda Vám vše ukáži osobně. Prohlídky jsou možné i o víkendu.

Parametry bytu

Cena
21 900 Kč /za měsíc
Náklady na bydlení
4 500,- služby (dle počtu osob)+ el. a plyn
Aktualizováno
4. 10. 2025
Adresa
Bartákova, Praha, Krč
Stavba
Panelová
Stav objektu
Velmi dobrý
Patro
5. z 7
Vybaveno
Ano
Lokalita objektu
Klidná část obce
Vlastnictví
Osobní
Užitná plocha
59 m2
Podlahová plocha
68 m2
Elektřina
230V
Plyn
Plynovod
Odpad
Veřejná kanalizace
Komunikace
Asfaltová
Telekomunikace
Internet, Kabelová televize
Doprava
Silnice, MHD, Autobus
Voda
Vodovod
Topné těleso
Radiátory
Zdroj topení
Ústřední dálkové
Zdroj teplé vody
Centrální dálkový ohřev
Sklep
Lodžie
Výtah

Kontaktovat makléře

Máte zájem o tento byt?

Tímto, v souladu s nařízením Evropského parlamentu a Rady (EU) 2016/679, v platném znění, prohlašuji, že mi je alespoň 16 let a uděluji tak svůj souhlas se zpracováním zadaných údajů (jméno, telefon, e-mail, ip adresa) společnosti B3 Technology, s.r.o., IČ: 07330600, se sídlem Novostavby 126/23, 435 11 Lom (správce dat), za účelem předání dotazu z tohoto formuláře Vámi vybranému inzerentovi a zpětného kontaktování mé osoby. Osobní údaje bude správce zpracovávat manuálně i automaticky přímo prostřednictvím svých zaměstnanců. Informace předané tímto formulářem budou uloženy v databázi správce maximálně po dobu 10 let. Odvolání souhlasu s uložením a zpracováním poskytnutých dat lze e-mailem na info@videobydleni.cz. V případě podezření na neoprávněné použití Vámi poskytnutých údajů máte právo předat podnět k šetření Úřadu pro ochranu osobních údajů. Více informací
Chystáte se prodat nemovitost?
Pomůžeme Vám!

Inzerát si prohlédlo 3 lidí

Prodejce

Ivana Peterková Imik

Ivana Peterková Imik

Hlídací pes

Chcete dostávat emailem podobné nabídky pronájmu bytů 3+1 v Praze 4?

Podobné nemovitosti


Nevyhovuje Vám typ bytu? Podívejte se na jiné kategorie bytů.


Vybrané články z našeho blogu