Prodej chaty, Šošůvka, 30 m2 (ID: 4055572)

Šošůvka

1 490 000 Kč /za nemovitost HYPOTÉKA od 6 659 Kč /za měsíc

(V případě více zájemců rozhoduje nejvyšší nabídka. Ve spolupráci s makléřem z REALITY PRORADOST s.r.o., včetně provize, včetně právního servisu)

Prémioví partneři v Šošůvce

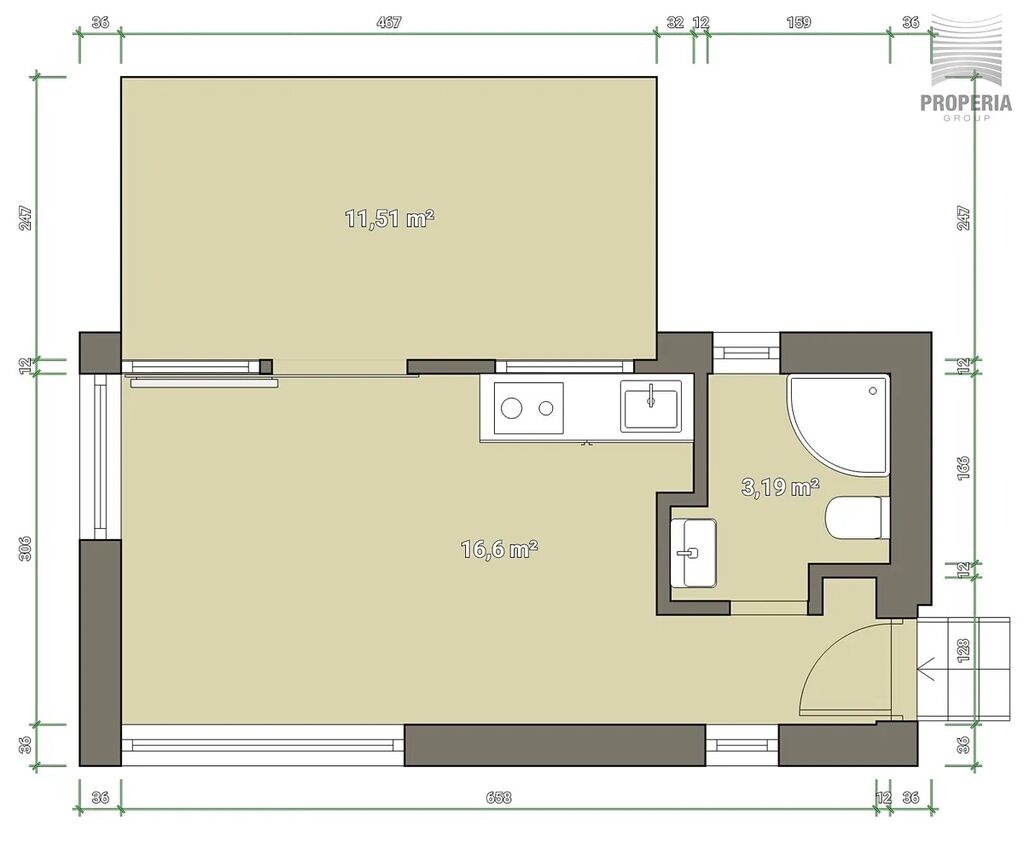
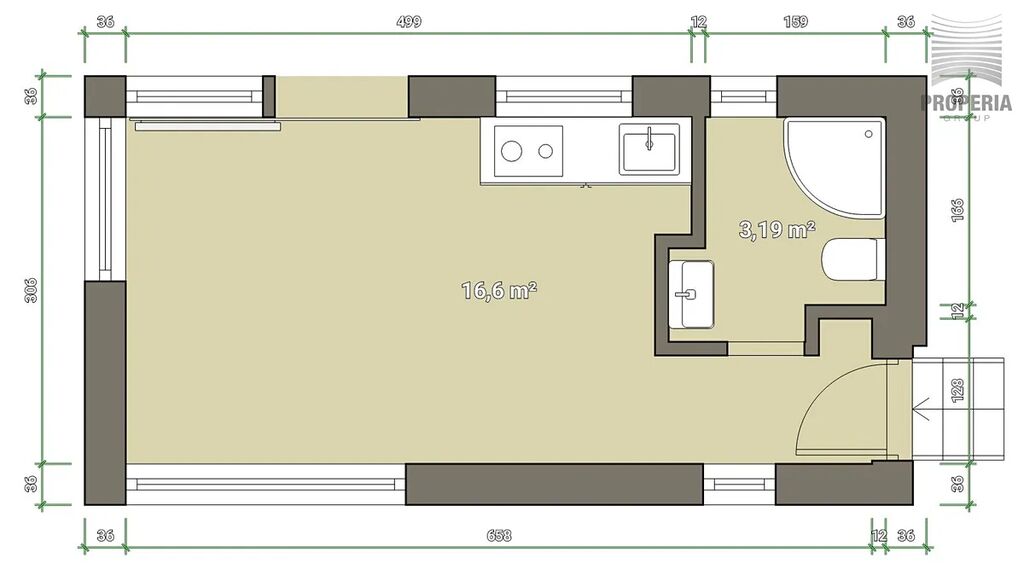
Informace k domu

Kouzelný pozemek na výjimečném místě s krásným výhledem na okolní krajinu. Tento stavební pozemek, který je možné zastavět ze 30%, nabízí jedinečnou příležitost pro ty, kteří hledají klidné a malebné místo pro svůj nový domov. Stávající objekt na pozemku, který je kolaudovaný jako sklad, není započten do oněch 30%.

Voda je přivedena provizorně, a proto bude potřeba zbudovat novou přípojku, ke které máme k dispozici projektovou dokumentaci. Elektřina je zavedena a plně funkční, což usnadňuje okamžité využití pozemku. Odpad je řešen do jímky o objemu cca 5 m3, přičemž je ideální spolu s vodou napojit na kanalizaci pro maximální komfort.

Chata, která má schválené užívání jako sklad materiálu, nabízí možnost zapsání na katastrální úřad, avšak je třeba mít na paměti, že by to zmenšilo zastavitelnou plochu.

Okolí pozemku je nádherné. Jižní část obce leží v chráněné krajinné oblasti Moravský kras. Západně od obce se v podzemí nacházejí Sloupsko-šošůvské jeskyně a z východní a západní strany podzemím vede jeskynní systém Amatérská jeskyně, což činí tuto lokalitu ještě atraktivnější pro milovníky přírody a dobrodružství.

Prohlídkový den se uskuteční v pátek 3. 10. 2025 od 15:00. Pro rezervaci přesného času své prohlídky prosím volejte makléři.

Parametry domu

Cena
1 490 000 Kč /za nemovitost Spočítat hypotéku
Poznámka k ceně
V případě více zájemců rozhoduje nejvyšší nabídka. Ve spolupráci s makléřem z REALITY PRORADOST s.r.o., včetně provize, včetně právního servisu
Aktualizováno
2. 10. 2025
Adresa
Šošůvka
ID
03609
Stavba
Dřevěná
Stav objektu
Dobrý
Vybaveno
Částečně
Druh objektu
Samostatný
Lokalita objektu
Klidná část obce
Užitná plocha
30 m2
Plocha pozemku
673 m2
Elektřina
230V
Odpad
Jímka
Komunikace
Asfaltová
Doprava
Silnice, Autobus
Voda
Vodovod
Zdroj teplé vody
Bojler - elektro
Parkování

Kontaktovat makléře

Realitní kancelář

PROPERIA GROUP, s.r.o.

Máchova 1301/2, Brno, Královo Pole

Chystáte se prodat nemovitost?
Pomůžeme Vám!

Máte zájem o tento dům?

Tímto, v souladu s nařízením Evropského parlamentu a Rady (EU) 2016/679, v platném znění, prohlašuji, že mi je alespoň 16 let a uděluji tak svůj souhlas se zpracováním zadaných údajů (jméno, telefon, e-mail, ip adresa) společnosti B3 Technology, s.r.o., IČ: 07330600, se sídlem Novostavby 126/23, 435 11 Lom (správce dat), za účelem předání dotazu z tohoto formuláře Vámi vybranému inzerentovi a zpětného kontaktování mé osoby. Osobní údaje bude správce zpracovávat manuálně i automaticky přímo prostřednictvím svých zaměstnanců. Informace předané tímto formulářem budou uloženy v databázi správce maximálně po dobu 10 let. Odvolání souhlasu s uložením a zpracováním poskytnutých dat lze e-mailem na info@videobydleni.cz. V případě podezření na neoprávněné použití Vámi poskytnutých údajů máte právo předat podnět k šetření Úřadu pro ochranu osobních údajů. Více informací
Chystáte se prodat nemovitost?
Pomůžeme Vám!

Inzerát si prohlédlo 4 lidí

Prodejce

Nela Masaryková

Nela Masaryková

Hlídací pes

Chcete dostávat emailem podobné nabídky prodeje chat v Šošůvce?

Top nabídky

Podobné nemovitosti


Nevyhovuje Vám typ domu? Podívejte se na jiné kategorie domů.


Vybrané články z našeho blogu