Pronájem bytu 2+1, Plzeň - Východní Předměstí, Koterovská, 53 m2 (ID: 4055849)

Koterovská, Plzeň, Východní Předměstí

13 000 Kč /za měsíc Získejte výhodnou HYPOTÉKU

(bez poplatků, + provize RK, včetně právního servisu)

Prémioví partneři v Plzni

Podlahy

Stěhovací služby

Informace k bytu

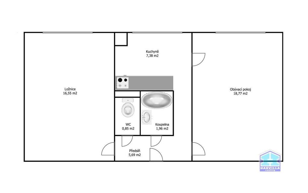
Nabízíme Vám k pronájmu byt o dispozici 2+1 a výměře 53 m2, který se nachází v 1. patře panelového bytového domu v Plzni na Slovanech, na Koterovské ulici. Byt v osobním vlastnictví prošel celkovou rekonstrukcí. Kromě plastových oken disponuje novou kuchyňskou linkou s el. sporákem a myčkou. Byt má nové podlahy, v pokojích jsou parkety, v koupelně byl instalován sprchový kout. Vytápění je dálkové, ohřev vody pomocí el. boileru. Bytový dům je revitalizován (zateplená fasáda, vchodové dveře, zvonky, nový výtah). V dosahu pár minut je supermarket Albert, pošta, zastávka tramvaje č. 2, plavecký bazén, park Chvojkovy lomy, dětská hřiště, obchodní centrum Dvořák. Čistý nájem 13.000,- Kč/měs. + zálohy na služby 1.636,- Kč/měs. + elektřina 2.500,- Kč/měs. bude převedena na nájemce. Vratná kauce 39.000,- Kč. Volné ihned.

Parametry bytu

Cena
13 000 Kč /za měsíc
Poznámka k ceně
bez poplatků, + provize RK, včetně právního servisu
Aktualizováno
26. 9. 2025
Adresa
Koterovská, Plzeň, Východní Předměstí
ID
8/25
Stavba
Panelová
Stav objektu
Po rekonstrukci
Patro
2. z 5
Vybaveno
Částečně
Vlastnictví
Osobní
Užitná plocha
53 m2
Třída energetické náročnosti
G - Mimořádně nehospodárná
Elektřina
230V
Odpad
Veřejná kanalizace
Topení
Ústřední dálkové
Komunikace
Asfaltová
Doprava
Vlak, Dálnice, Silnice, MHD, Autobus
Voda
Vodovod
Sklep
Výtah

Kontaktovat makléře

Realitní kancelář

Logo HARVILLA - REALITY s.r.o.

HARVILLA - REALITY s.r.o.

Slovanská alej 1960/24, Plzeň, Východní Předměstí

Chystáte se prodat nemovitost?
Pomůžeme Vám!

Máte zájem o tento byt?

Tímto, v souladu s nařízením Evropského parlamentu a Rady (EU) 2016/679, v platném znění, prohlašuji, že mi je alespoň 16 let a uděluji tak svůj souhlas se zpracováním zadaných údajů (jméno, telefon, e-mail, ip adresa) společnosti B3 Technology, s.r.o., IČ: 07330600, se sídlem Novostavby 126/23, 435 11 Lom (správce dat), za účelem předání dotazu z tohoto formuláře Vámi vybranému inzerentovi a zpětného kontaktování mé osoby. Osobní údaje bude správce zpracovávat manuálně i automaticky přímo prostřednictvím svých zaměstnanců. Informace předané tímto formulářem budou uloženy v databázi správce maximálně po dobu 10 let. Odvolání souhlasu s uložením a zpracováním poskytnutých dat lze e-mailem na info@videobydleni.cz. V případě podezření na neoprávněné použití Vámi poskytnutých údajů máte právo předat podnět k šetření Úřadu pro ochranu osobních údajů. Více informací
Chystáte se prodat nemovitost?
Pomůžeme Vám!

Inzerát si prohlédlo 49 lidí

Prodejce

Vlastimil Harvilla st.

Vlastimil Harvilla st.

Hlídací pes

Chcete dostávat emailem podobné nabídky pronájmu bytů 2+1 v Plzni?

Podobné nemovitosti


Nevyhovuje Vám typ bytu? Podívejte se na jiné kategorie bytů.


Vybrané články z našeho blogu