Pronájem bytu 4+1, Praha - Dejvice, Kladenská, 125 m2

Kladenská, Praha, Dejvice

45 000 Kč /za měsíc Získejte výhodnou HYPOTÉKU

(+ poplatky)

Prémioví partneři v Praze 6

Stěhovací služby

Výkup a prodej starého nábytku

Informace k bytu

Do tohoto parádního bytu hledáme fajnovou rodinu nebo i jen pár, který má rád prostor a ocení styl, v jakém je byt provedený. Nabízíme útulné kvalitní bydlení s výhledem dlouhodobého pronájmu.

Byt je to opravdu velkorysý! Má dostatečně veliké místnosti, poctivé dřevěné parkety, velká Euro okna s dvojskly a předokenními elektrickými roletami, pěkné výhledy a orientaci na všechny světové strany. Kromě toho spoustu různých úložných vestavěných skříní a zrekonstruované původní prvky. V srdci bytu Vás jistě okouzlí nádherný prostor, který může vzniknout propojením haly (s otevírací prosklenou stěnou) a obývacího pokoje.

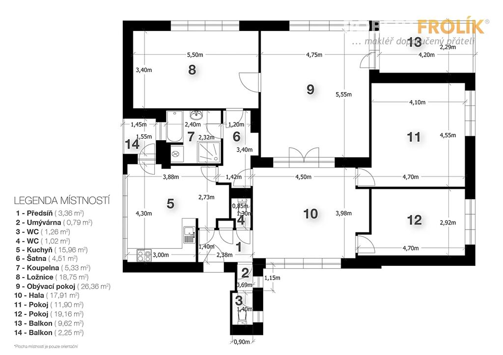
Najdete ho v 1. patře výborně udržované vilky, v ulici Kladenská, jen pár kroků od stanice metra Bořislavka. Ve své celkové ploše cca 125 m2 (+ terasa cca 9 m2) Vám nabídne: vstupní chodbu, halu, obývací pokoj, 3 samostatné ložnice, kuchyni s malou lodžií, koupelnu a dvě WC. Do bytu se vstupuje po společném domovním schodišti. Sousedy budete mít jen pod a nad bytem, protože byt zabírá celé patro vilky.

Je vytápěn vlastním plynovým kombi kotlem, který ohřívá i teplou vodu. V kuchyni zůstane myčka, sklokeramická varná deska, elektrická trouba a digestoř. Může být i pračka. V koupelně je kromě vany a sprchového koutu i bidet. Obě WC jsou samostatné.

Jedno auto můžete parkovat v garáži přímo u domu (výška je na běžný osobák) a druhé (např. SUV) klidně před garáží. Garáž je v ceně nájemného.

Za nákupy a různými službami to budete mít pár kroků do obchodního centra Bořislavka. V ulicích kolem domu pak najdete i různé další obchůdky, malé kavárničky, restaurace a pod..

Kromě nájemného budete platit zálohy na služby (voda - vlastní měření, odpad, osvětlení domu, revize kotle) v částce 2.000 Kč/měs. + spotřebu elektřiny a plynu (převádí se na nájemce). Na elektřinu odhaduji 2.000 Kč, plyn 2.500 Kč. Nájemné a zálohy se platí měsíčně předem, jistota je 2x nájemné, provize 1 nájemné.

Byt je ihned volný, připravený k dlouhodobému pronájmu.
Dlouho neváhejte a objednejte se na prohlídku, ať Vám byt neuteče! Takových bytů totiž v nabídce moc není!

PENB není k dispozici, dle zákona uvádím třídu G.

Parametry bytu

Cena
45 000 Kč /za měsíc
Poznámka k ceně
+ poplatky
Aktualizováno
5. 10. 2025
Adresa
Kladenská, Praha, Dejvice
ID
RF 0561
Stavba
Cihlová
Stav objektu
Velmi dobrý
Patro
2. z 3
Vybaveno
Ne
Lokalita objektu
Centrum obce
Vlastnictví
Osobní
Užitná plocha
125 m2
Třída energetické náročnosti
G - Mimořádně nehospodárná
Elektřina
230V
Plyn
Plynovod
Odpad
Veřejná kanalizace
Komunikace
Asfaltová
Telekomunikace
Internet
Doprava
Vlak, Silnice, MHD, Autobus
Voda
Vodovod
Topné těleso
Radiátory
Zdroj topení
Plynový kotel
Zdroj teplé vody
Plynový kotel
Garáž
Lodžie
Terasa

Kontaktovat makléře

Máte zájem o tento byt?

Tímto, v souladu s nařízením Evropského parlamentu a Rady (EU) 2016/679, v platném znění, prohlašuji, že mi je alespoň 16 let a uděluji tak svůj souhlas se zpracováním zadaných údajů (jméno, telefon, e-mail, ip adresa) společnosti B3 Technology, s.r.o., IČ: 07330600, se sídlem Novostavby 126/23, 435 11 Lom (správce dat), za účelem předání dotazu z tohoto formuláře Vámi vybranému inzerentovi a zpětného kontaktování mé osoby. Osobní údaje bude správce zpracovávat manuálně i automaticky přímo prostřednictvím svých zaměstnanců. Informace předané tímto formulářem budou uloženy v databázi správce maximálně po dobu 10 let. Odvolání souhlasu s uložením a zpracováním poskytnutých dat lze e-mailem na info@videobydleni.cz. V případě podezření na neoprávněné použití Vámi poskytnutých údajů máte právo předat podnět k šetření Úřadu pro ochranu osobních údajů. Více informací
Chystáte se prodat nemovitost?
Pomůžeme Vám!

Inzerát si prohlédlo 4 lidí

Prodejce

Robert Frolík

Robert Frolík

Hlídací pes

Chcete dostávat emailem podobné nabídky pronájmu bytů 4+1 v Praze 6?

Podobné nemovitosti


Nevyhovuje Vám typ bytu? Podívejte se na jiné kategorie bytů.


Vybrané články z našeho blogu