Pronájem kanceláře, Brno, Hasičská, 81 m2

Hasičská, Brno, Tuřany

19 000 Kč /za měsíc Získejte výhodnou HYPOTÉKU

(+ provize RK + 4000 kč záloha na energie + vratná kauce)

Prémioví partneři v Brně

Informace k nemovitosti

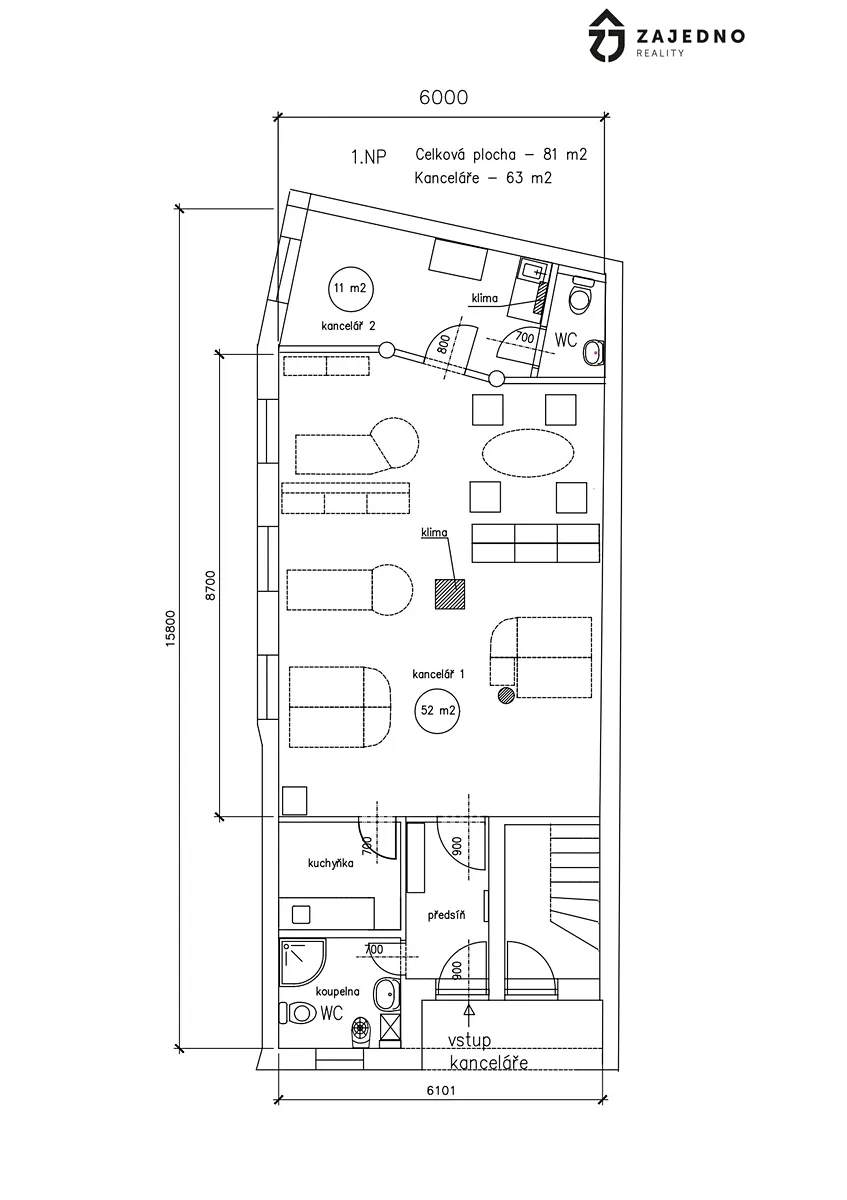
Dovolujeme si Vám představit kancelářské prostory k pronájmu v Brně Tuřanech vybavené moderním kancelářským nábytkem pro 6 pracovníků.
Kanceláře se nachází u Tuřanského náměstí v přízemí rohového domu postaveném v roce 2009. Celková plocha je 81 m2 včetně příslušenství, plocha kanceláří je 52 m2 a 11 m2.
Vchod je samostatný přímo z ulice přes vstupní předsíň, ze které je vchod do místnosti s WC a sprchovým koutem. V této místnosti je umístěn plynový kotel k samostatnému vytápění kanceláří.
Na předsíň navazuje větší kancelář, ke které patří i kuchyňka vybavená malou kuchyňskou linkou (bez spotřebičů ), kterou je možno využít i jako šatnu.
Kancelář je propojená s druhou menší kanceláří ve která je umístěna i malá kuchyňská linka ( bez spotřebičů ). Tato kancelář má k dispozici samostatné WC.
Obě dvě místnosti jsou vybaveny klimatizací a venkovními žaluziemi s elektrickým ovládání, což zajišťuje i horkých dnech příjemné pracovní prostředí.
Větší kancelář je vybavena moderním kancelářským nábytkem – pracovní stoly, jednací stůl a skříně.
V kanceláři je možnost kabelové přípojky internetu a televize. Měření spotřeby elektrické energie a plynu je samostatnými měřiči.
Parkování je v možné v blízkosti objektu na ulici či velkém veřejném neplaceném parkovišti na Tuřanském náměstí 30m od domu. Veškerá občanská vybavenost v blízkém okolí (potraviny, restaurace, pošta, autobusová zastávka ).
V případě zájmu o více informací nebo domluvení prohlídky mě prosím kontaktujte.

Parametry nemovitosti

Cena
19 000 Kč /za měsíc
Poznámka k ceně
+ provize RK + 4000 kč záloha na energie + vratná kauce
Aktualizováno
6. 12. 2025
Adresa
Hasičská, Brno, Tuřany
ID
00159
Stavba
Cihlová
Stav objektu
Velmi dobrý
Patro
1. z 2
Vybaveno
Ano
Lokalita objektu
Klidná část obce
Užitná plocha
81 m2
Třída energetické náročnosti
G - Mimořádně nehospodárná
Odpad
Veřejná kanalizace
Komunikace
Asfaltová
Telekomunikace
Internet
Doprava
Dálnice, Silnice, MHD, Autobus
Topné těleso
Radiátory
Výtah
Bezbarierový přístup

Kontaktovat makléře

Máte zájem o tuto nemovistost?

Tímto, v souladu s nařízením Evropského parlamentu a Rady (EU) 2016/679, v platném znění, prohlašuji, že mi je alespoň 16 let a uděluji tak svůj souhlas se zpracováním zadaných údajů (jméno, telefon, e-mail, ip adresa) společnosti B3 Technology, s.r.o., IČ: 07330600, se sídlem Novostavby 126/23, 435 11 Lom (správce dat), za účelem předání dotazu z tohoto formuláře Vámi vybranému inzerentovi a zpětného kontaktování mé osoby. Osobní údaje bude správce zpracovávat manuálně i automaticky přímo prostřednictvím svých zaměstnanců. Informace předané tímto formulářem budou uloženy v databázi správce maximálně po dobu 10 let. Odvolání souhlasu s uložením a zpracováním poskytnutých dat lze e-mailem na info@videobydleni.cz. V případě podezření na neoprávněné použití Vámi poskytnutých údajů máte právo předat podnět k šetření Úřadu pro ochranu osobních údajů. Více informací
Chystáte se prodat nemovitost?
Pomůžeme Vám!

Inzerát si prohlédlo 10 lidí

Prodejce

Radomír Čada

Radomír Čada

Hlídací pes

Chcete dostávat emailem podobné nabídky pronájmu kanceláří v Brně?

Podobné nemovitosti


Nevyhovuje Vám typ nemovitosti? Podívejte se na jiné kategorie komerčních.


Vybrané články z našeho blogu