Prodej bytu 4+1, Břeclav, Fintajslova, 106 m2

Fintajslova, Břeclav

6 295 000 Kč /za nemovitost HYPOTÉKA od 28 135 Kč /za měsíc

(včetně poplatků, včetně provize, včetně právního servisu)

Prémioví partneři v Břeclavi

Informace k bytu

Hledáte ke koupi bytovou jednotku v osobním vlastnictví, k nastěhování bez nutnosti rekonstrukce? Na klidném místě a zároveň se vším potřebným v blízkém okolí?

Ve výhradním zastoupení majitelů, Vám zprostředkujeme koupi bytové jednotky o velikosti 4+1 v ulici Fintajslova č.p. 2280/19, v okresním městě Břeclav.

Byt se nachází v 3.nadzemním podlaží a podkroví z celkového počtu 3 podlaží.
V bytovém domě je pouze pět jednotek, na každém podlaží dvě a podkrovní byt. Bytový dům bez výtahu.

Celková plocha bytu je 115 m², s obytnou plochou 106 m².

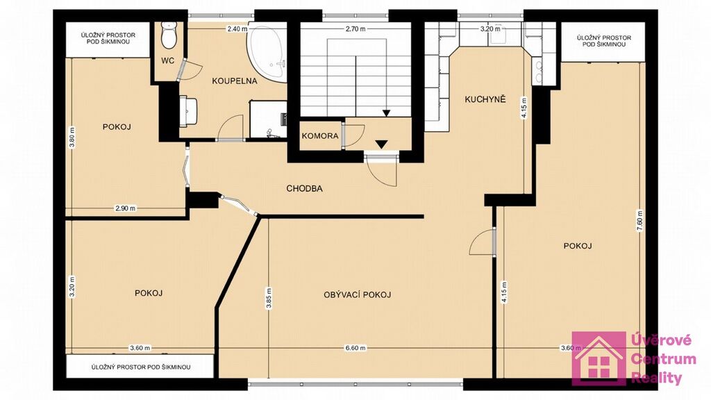
Dispozice: schodiště, chodba se šatnou, kuchyně, ložnice, obývací pokoj, koupelna (vana i sprchový kout), toaleta a dva pokoje. Půdorys bytu naleznete ve fotogalerii.

Aktuální měsíční náklady na provoz bytu jsou 7.476 Kč (elektřina, plyn, voda, stočné, fond oprav a správa bytového domu).

V kuchyňské lince jsou zabudovány vestavěné spotřebiče (digestoř, plynová varná deska, elektrická trouba, myčka) plus samostatně stojící lednice s mrazničkou).

Podlaha je pokrytá dlažbou a vinylem. Byt je vytápěn plynovým kotlem, který je zavěšen v malé technické místnosti u schodiště před vstupem do bytu.

Pro uložení kol je možné využít společnou kolárnu anebo prostorný zděný uzamykatelný sklep o velikosti 9,30 m². Další velkou výhodou této bytové jednotky je spoluvlastnický podíl na oplocené zahradě, která se nachází kolem celého bytového domu.

V blízkosti domu se nachází obchod a restaurace. Do 10 minut chůze se dostanete k nemocnici, do centra města Břeclav a také k zastávce MHD. Parkování před domem s rezidenční parkovací kartou.

Možnost převzetí hypotéky s úrokovou sazbou 2,29% p.a. a fixací do 01/2029.

K nastěhování dohodou.

V případě více vážných zájemců bude kupující vybrán na základě parametrů stanovených prodávajícími.

Zaujala Vás tato nabídka? Máte zájem o prohlídku? Vám vyhovující termín prohlídky (den a čas) s kontakty na Vás (tel. číslo a e-mail) zasílejte na e-mail makléře, formou odpovědi na tuto inzerci.

Realitní makléř Vás následně bude telefonicky kontaktovat.

Parametry bytu

Cena
6 295 000 Kč /za nemovitost Spočítat hypotéku
Poznámka k ceně
včetně poplatků, včetně provize, včetně právního servisu
Aktualizováno
9. 11. 2025
Adresa
Fintajslova, Břeclav
ID
00146
Stavba
Cihlová
Stav objektu
Po rekonstrukci
Patro
3. z 3
Vybaveno
Ne
Druh objektu
Samostatný
Lokalita objektu
Klidná část obce
Vlastnictví
Osobní
Užitná plocha
106 m2
Podlahová plocha
115 m2
Třída energetické náročnosti
G - Mimořádně nehospodárná
Elektřina
230V
Plyn
Plynovod
Odpad
Veřejná kanalizace
Topení
Ústřední plynové
Komunikace
Asfaltová
Telekomunikace
Internet
Doprava
Vlak, Dálnice, Silnice, MHD, Autobus
Voda
Vodovod
Sklep
Výtah

Kontaktovat makléře

Máte zájem o tento byt?

Tímto, v souladu s nařízením Evropského parlamentu a Rady (EU) 2016/679, v platném znění, prohlašuji, že mi je alespoň 16 let a uděluji tak svůj souhlas se zpracováním zadaných údajů (jméno, telefon, e-mail, ip adresa) společnosti B3 Technology, s.r.o., IČ: 07330600, se sídlem Novostavby 126/23, 435 11 Lom (správce dat), za účelem předání dotazu z tohoto formuláře Vámi vybranému inzerentovi a zpětného kontaktování mé osoby. Osobní údaje bude správce zpracovávat manuálně i automaticky přímo prostřednictvím svých zaměstnanců. Informace předané tímto formulářem budou uloženy v databázi správce maximálně po dobu 10 let. Odvolání souhlasu s uložením a zpracováním poskytnutých dat lze e-mailem na info@videobydleni.cz. V případě podezření na neoprávněné použití Vámi poskytnutých údajů máte právo předat podnět k šetření Úřadu pro ochranu osobních údajů. Více informací
Chystáte se prodat nemovitost?
Pomůžeme Vám!

Inzerát si prohlédlo 41 lidí

Prodejce

Igor Kahánek

Igor Kahánek

Hlídací pes

Chcete dostávat emailem podobné nabídky prodeje bytů 4+1 v Břeclavi?

Podobné nemovitosti


Nevyhovuje Vám typ bytu? Podívejte se na jiné kategorie bytů.


Vybrané články z našeho blogu