Prodej bytu 4+kk, Praha - Smíchov, U Santošky, 81 m2 (ID: 4057239)

U Santošky, Praha, Smíchov

8 990 000 Kč /za nemovitost HYPOTÉKA od 40 180 Kč /za měsíc

(včetně provize, včetně právního servisu)

Prémioví partneři v Praze 5

Stěhovací služby

Výkup a prodej starého nábytku

Informace k bytu

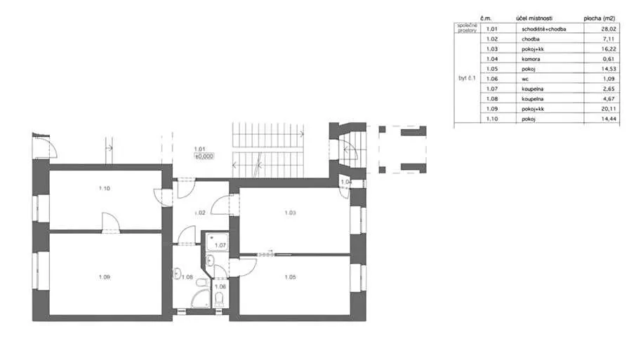
Byt 4 kk vhodný na investici, s dvěmi bytovými jednotkami – ideální až pro 4 studenty

Nabízíme kompletně zařízený byt o ploše 81 m² v 1. patře domu s výtahem na Smíchově, jen pár minut chůze od metra Anděl. Byt vznikl spojením dvou jednotek 2+kk a disponuje čtyřmi pokoji, dvěmi koupelnami, dvěmi kuchyněmi a komorou. Ideální řešení pro spolubydlení např. až čtyř studentů. K dispozici je také klidná společná zahrada ve vnitrobloku. Byt se prodává včetně kompletního vybavení a je připravený k okamžitému pronájmu.

Smíchov je ideálním místem pro aktivní život – v docházkové vzdálenosti naleznete OC Nový Smíchov, množství kaváren, restaurací a služeb, stejně jako stanici metra Anděl. Milovníci zeleně ocení blízkost parků Santoška a Sady Na Skalce, stejně jako nově vznikající čtvrť Smíchoff, která lokalitě dodává moderní tvář.

Některé z přiložených fotografií jsou vizualizace, které slouží pro představu možného uspořádání prostoru.

Parametry bytu

Cena
8 990 000 Kč /za nemovitost Spočítat hypotéku
Poznámka k ceně
včetně provize, včetně právního servisu
Aktualizováno
2. 10. 2025
Adresa
U Santošky, Praha, Smíchov
ID
28059-1
Stavba
Cihlová
Stav objektu
Dobrý
Patro
1. z 7
Vybaveno
Ano
Lokalita objektu
Centrum obce
Vlastnictví
Osobní
Užitná plocha
81 m2
Třída energetické náročnosti
G - Mimořádně nehospodárná
Elektřina
230V
Plyn
Plynovod
Odpad
Veřejná kanalizace
Komunikace
Asfaltová
Doprava
Silnice, MHD, Autobus
Voda
Vodovod
Topné těleso
Radiátory
Zdroj topení
Plynový kotel
Zdroj teplé vody
Plynový kotel
Výtah

Kontaktovat makléře

Realitní kancelář

BOUTIQ Real Estate

Václavské náměstí 773/4, Praha

Chystáte se prodat nemovitost?
Pomůžeme Vám!

Máte zájem o tento byt?

Tímto, v souladu s nařízením Evropského parlamentu a Rady (EU) 2016/679, v platném znění, prohlašuji, že mi je alespoň 16 let a uděluji tak svůj souhlas se zpracováním zadaných údajů (jméno, telefon, e-mail, ip adresa) společnosti B3 Technology, s.r.o., IČ: 07330600, se sídlem Novostavby 126/23, 435 11 Lom (správce dat), za účelem předání dotazu z tohoto formuláře Vámi vybranému inzerentovi a zpětného kontaktování mé osoby. Osobní údaje bude správce zpracovávat manuálně i automaticky přímo prostřednictvím svých zaměstnanců. Informace předané tímto formulářem budou uloženy v databázi správce maximálně po dobu 10 let. Odvolání souhlasu s uložením a zpracováním poskytnutých dat lze e-mailem na info@videobydleni.cz. V případě podezření na neoprávněné použití Vámi poskytnutých údajů máte právo předat podnět k šetření Úřadu pro ochranu osobních údajů. Více informací
Chystáte se prodat nemovitost?
Pomůžeme Vám!

Inzerát si prohlédlo 20 lidí

Prodejce

Miroslav Indrák

Miroslav Indrák

Hlídací pes

Chcete dostávat emailem podobné nabídky prodeje bytů 4+kk v Praze 5?

Podobné nemovitosti


Nevyhovuje Vám typ bytu? Podívejte se na jiné kategorie bytů.


Vybrané články z našeho blogu