Pronájem kanceláře, Hradec Králové, Hořická, 91 m2 (ID: 4057612)

Hořická, Hradec Králové, Pražské Předměstí

17 290 Kč /za měsíc Získejte výhodnou HYPOTÉKU
Prémioví partneři v Hradci Králové

Informace k nemovitosti

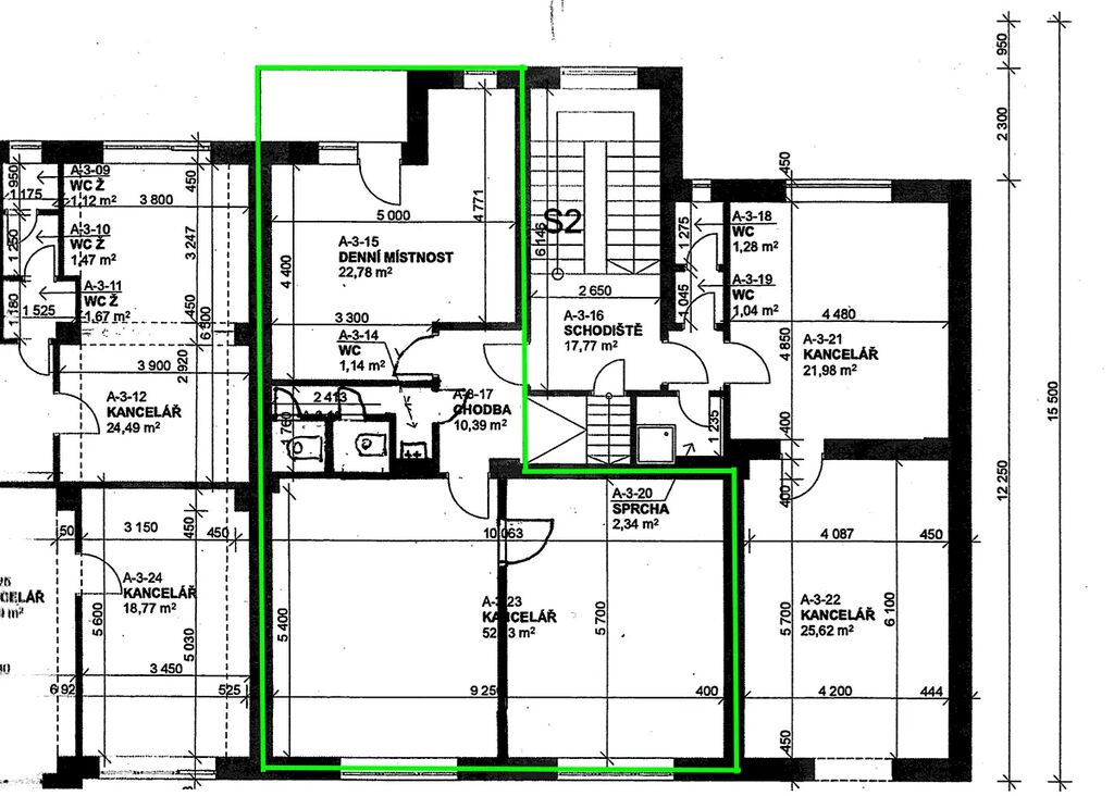
Nabízíme k pronájmu administrativní prostory o celkové výměře 91 m2 po částečné rekonstrukci ve 3.NP administrativní budovy v Hradci Králové, ulice Hořická.

Jedná se o celek tří kancelářských místností o výměrách 23m2, 25m2 a 26m2, chodby s vestavnou skříní o výměře 10m2, toalet o výměře 6m2, vlastní kuchyňky, která je součástí jedné z kanceláří a balkónu. Největší z kanceláří je vybavena klimatizací. Po celém prostoru je rozveden optický kabel pro maximálně rychlé internetové připojení.

Příjemným benefitem je 1 parkovací místo pro nájemníky ve vnitrobloku v ceně nájmu s možností rozšíření o další parkovací stání dle domluvy.
Strategická pozice na Pražském Předměstí Vám nabídne snadnou dostupnost automobilem, městskou hromadnou dopravou, vlakem i pěšky. V okolí do 400m najdete vše od Terminálu HD, vlakového nádrží, obchodních center Aupark a Atrium, až po několik restaurací.

V kancelářích momentálně probíhají dokončovací práce po rekonstrukci, a proto je k podkladům přiložena jedna fotografie, která je umělou inteligencí očištěná o pracovní nepořádek.

Cena nájemného je uvedena bez DPH a bez měsíčních nákladů na energie a služby. Vratná kauce činní dva měsíční nájmy.

Podrobnější informace Vám rádi sdělíme na osobní prohlídce.

Parametry nemovitosti

Cena
17 290 Kč /za měsíc
Aktualizováno
1. 10. 2025
Adresa
Hořická, Hradec Králové, Pražské Předměstí
Stavba
Smíšená
Stav objektu
Dobrý
Patro
3.
Užitná plocha
91 m2
Parkování

Kontaktovat makléře

Máte zájem o tuto nemovistost?

Tímto, v souladu s nařízením Evropského parlamentu a Rady (EU) 2016/679, v platném znění, prohlašuji, že mi je alespoň 16 let a uděluji tak svůj souhlas se zpracováním zadaných údajů (jméno, telefon, e-mail, ip adresa) společnosti B3 Technology, s.r.o., IČ: 07330600, se sídlem Novostavby 126/23, 435 11 Lom (správce dat), za účelem předání dotazu z tohoto formuláře Vámi vybranému inzerentovi a zpětného kontaktování mé osoby. Osobní údaje bude správce zpracovávat manuálně i automaticky přímo prostřednictvím svých zaměstnanců. Informace předané tímto formulářem budou uloženy v databázi správce maximálně po dobu 10 let. Odvolání souhlasu s uložením a zpracováním poskytnutých dat lze e-mailem na info@videobydleni.cz. V případě podezření na neoprávněné použití Vámi poskytnutých údajů máte právo předat podnět k šetření Úřadu pro ochranu osobních údajů. Více informací
Chystáte se prodat nemovitost?
Pomůžeme Vám!

Inzerát si prohlédlo 5 lidí

Prodejce

Michal Mizera

Michal Mizera

Hlídací pes

Chcete dostávat emailem podobné nabídky pronájmu kanceláří v Hradci Králové?

Podobné nemovitosti


Nevyhovuje Vám typ nemovitosti? Podívejte se na jiné kategorie komerčních.


Vybrané články z našeho blogu