Prodej bytu 3+1, Pardubice, Palackého třída, 93 m2

Palackého třída, Pardubice, Zelené Předměstí

Rezervováno
6 300 000 Kč /za nemovitost HYPOTÉKA od 28 157 Kč /za měsíc
Prémioví partneři v Pardubicích

Informace k bytu

Ráda bych vám nabídla ke koupi krásný prostorný, slunný byt v centru Pardubic.
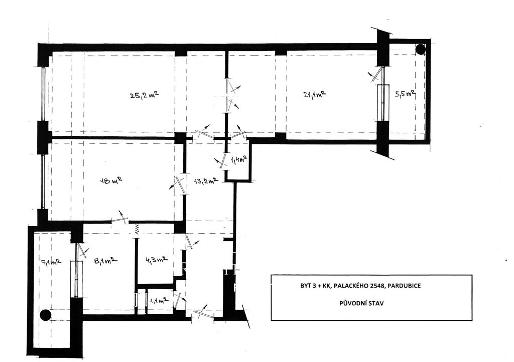
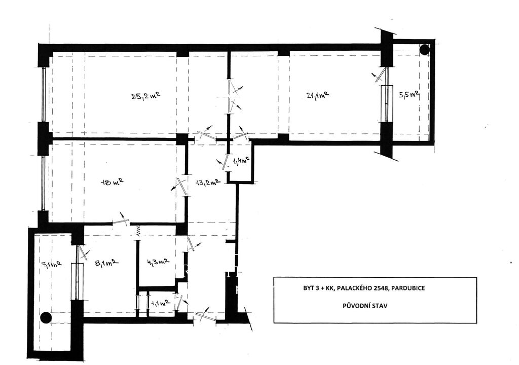
Byt v osobním vlastnictví s dispozicí 3+1 a celkovou plochou 109m2 se nachází v 7.NP zděného, bytového domu s výtahem.
Dům je po kompletní revitalizaci, v rámci které se dělala nová střecha, plastová okna, zateplení, vchodové dveře, bezpečnostní systém v domě a přístupové čipy. V současné době probíha instalace nových elektrických rozvodů a malování společných prostor domu.

K bytu náleží sklep a dvě lodžie. Jedna lodžie o velikosti 10 m2 situovaná na východ, přístupná z kuchyně nabízí dostatek prostoru pro venkovní posezení, kde si můžete vychutnávat ranní kávu, či servírovat snídaně. Druhá lodžie s přístupem z ložnice o velikosti 5m2 je situovaná na západ.

Dispozice:
Z prostorné chodby je vstup na samostatnou toaletu, do koupelny, obývacího pokoje a dvou ložnic. Přístup do kuchyně, vybavenou kuchyňskou linkou je přes průchozí koupelnu, nebo obývací pokoj.

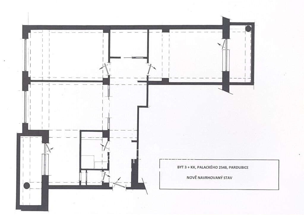
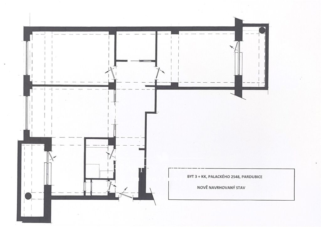
Pro Vaši lepší představu jsme vytvořili půdorysy stávajícího stavu dispozice a půdorys stavu po možné rekonstrukci.
Byt je v původním stavu, což umožňuje jedinečnou příležitost upravit si jej dle svých představ.
Je to skvělá příležitost k vytvoření moderního a komfortního bydlení v atraktivní lokalitě v centru Pardubic.

V případě vašeho zájmu mne neváhejte kontaktovat, ráda vám tuto nemovitost představím osobně.

Parametry bytu

Stav
Rezervováno
Cena
6 300 000 Kč /za nemovitost Spočítat hypotéku
Aktualizováno
27. 10. 2025
Adresa
Palackého třída, Pardubice, Zelené Předměstí
ID
00866
Stavba
Cihlová
Stav objektu
Dobrý
Patro
7. z 8
Vybaveno
Částečně
Druh objektu
V bloku
Lokalita objektu
Centrum obce
Vlastnictví
Osobní
Užitná plocha
93 m2
Podlahová plocha
109 m2
Třída energetické náročnosti
G - Mimořádně nehospodárná
Elektřina
230V
Plyn
Plynovod
Odpad
Veřejná kanalizace
Topení
Ústřední dálkové
Komunikace
Asfaltová
Telekomunikace
Internet
Doprava
Vlak, Dálnice, Silnice, MHD, Autobus
Voda
Vodovod
Lodžie
Výtah

Kontaktovat makléře

Máte zájem o tento byt?

Tímto, v souladu s nařízením Evropského parlamentu a Rady (EU) 2016/679, v platném znění, prohlašuji, že mi je alespoň 16 let a uděluji tak svůj souhlas se zpracováním zadaných údajů (jméno, telefon, e-mail, ip adresa) společnosti B3 Technology, s.r.o., IČ: 07330600, se sídlem Novostavby 126/23, 435 11 Lom (správce dat), za účelem předání dotazu z tohoto formuláře Vámi vybranému inzerentovi a zpětného kontaktování mé osoby. Osobní údaje bude správce zpracovávat manuálně i automaticky přímo prostřednictvím svých zaměstnanců. Informace předané tímto formulářem budou uloženy v databázi správce maximálně po dobu 10 let. Odvolání souhlasu s uložením a zpracováním poskytnutých dat lze e-mailem na info@videobydleni.cz. V případě podezření na neoprávněné použití Vámi poskytnutých údajů máte právo předat podnět k šetření Úřadu pro ochranu osobních údajů. Více informací
Chystáte se prodat nemovitost?
Pomůžeme Vám!

Inzerát si prohlédlo 14 lidí

Prodejce

Hana Zavadilová, Dis.

Hana Zavadilová, Dis.

Hlídací pes

Chcete dostávat emailem podobné nabídky prodeje bytů 3+1 v Pardubicích?

Podobné nemovitosti


Nevyhovuje Vám typ bytu? Podívejte se na jiné kategorie bytů.


Vybrané články z našeho blogu