Prodej vícegeneračního domu, Sukošan, Chorvatsko, Ante Starčevića, 302 m2 (ID: 4058560)

Ante Starčevića, Sukošan

Cena na vyžádání /za nemovitost

(volejte makléři, včetně poplatků, včetně provize, včetně právního servisu)

Prémioví partneři

Informace k domu

Exkluzivně vám nabízíme prodej luxusního apartmánového domu o ploše 330 m2 se 3 apartmány v obci Sukošan v Chorvatsku, 10 minut chůze od pláže. Dům se prodává plně vybavený (kromě vířivky a jízdních kol) a připravený k bydlení či pronajímání. Stavba byla dokončena v roce 2015, kolaudace bude dokončena v následujících měsících. Stavba byla dokončena ve vysokém standardu s použitím drahých materiálů, zejména kamene a mramoru. Světlé interiéry a moderní vybavení doplňuje okrasná zahrada s grilem a posezením, ideální pro odpočinek a relaxaci. Dům lze využít pro vícegenerační bydlení, pronájem celé nemovitosti i pronájem jednotlivých apartmánů. Tato nemovitost poskytuje skvělou příležitost pro život a zároveň investici v jednom z nejžádanějších a malebných míst v Chorvatsku.

Zastavěná plocha domu a nádvoří je 162 m2, zahrada 293 m2. Garáž 31 m2, pozemek okolo garáže 94 m2.

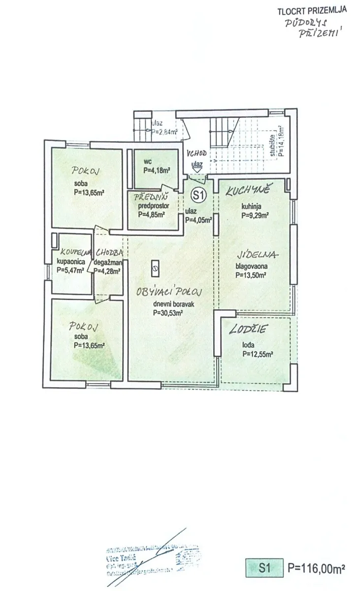
1.NP
- plocha bytu 116 m2
- 2 ložnice
- prostorný obývák s pracovním koutem (možnost vybudovat další ložnici)
- kuchyně s jídelnou
- koupelna s vanou
- samostatné wc
- lodžie

2.NP
- plocha bytu 115,17 m2
- 2 ložnice
- prostorný obývák s pracovním koutem (možnost vybudovat další ložnici)
- kuchyně s jídelnou
- koupelna s vanou
- samostatné wc
- lodžie

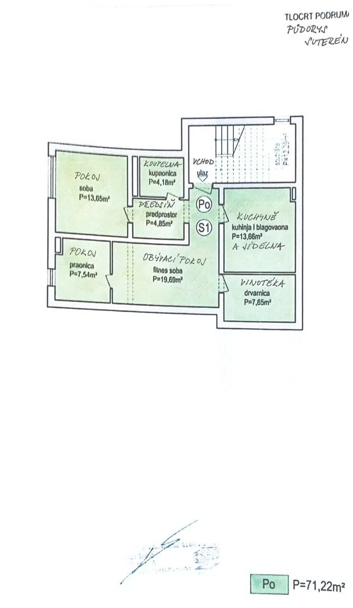
1.PP
- plocha bytu 71,22 m2
- 2 ložnice (1 ložnice má posuvné dveře do obývacího pokoje)
- obývací pokoj
- kuchyně s jídelnou
- koupelna s wc
- vinotéka

Sukošan je malebná obec ležící na pobřeží Jaderského moře, asi 10 km jižně od Zadaru. Místo je známé svou klidnou atmosférou, přírodními krásami a historickými památkami, včetně starobylého kostela a zbytků římských staveb. Obec je obklopena nádhernými plážemi, ideálními pro koupání a vodní sporty. Sukošan je také vyhledávaným místem pro jachting díky blízkosti k několika národním parkům a přírodním rezervacím. Sukošan nabízí klidnou atmosféru, ale zároveň je dostatečně blízko k městským atrakcím a kulturnímu životu. Obec je oblíbená jak pro letní turistiku, tak i pro celoroční pobyty díky příjemnému středomořskému klimatu.

V případě zájmu vám pomůžeme s financováním nemovitosti (lze vyřídit i 100% úvěr) i založením inzerce na Airbnb a Booking.com v případě, že budete chtít nemovitost krátkodobě pronajímat. Při rychlém jednání možná sleva.

Parametry domu

Cena
Cena na vyžádání
Poznámka k ceně
volejte makléři, včetně poplatků, včetně provize, včetně právního servisu
Aktualizováno
3. 10. 2025
Adresa
Ante Starčevića, Sukošan
ID
00017
Stavba
Cihlová
Stav objektu
Velmi dobrý
Vybaveno
Ano
Druh objektu
Samostatný
Užitná plocha
302 m2
Zastavěná plocha
193 m2
Podlahová plocha
345 m2
Plocha pozemku
580 m2
Třída energetické náročnosti
G - Mimořádně nehospodárná
Garáž
Výtah

Kontaktovat makléře

Máte zájem o tento dům?

Tímto, v souladu s nařízením Evropského parlamentu a Rady (EU) 2016/679, v platném znění, prohlašuji, že mi je alespoň 16 let a uděluji tak svůj souhlas se zpracováním zadaných údajů (jméno, telefon, e-mail, ip adresa) společnosti B3 Technology, s.r.o., IČ: 07330600, se sídlem Novostavby 126/23, 435 11 Lom (správce dat), za účelem předání dotazu z tohoto formuláře Vámi vybranému inzerentovi a zpětného kontaktování mé osoby. Osobní údaje bude správce zpracovávat manuálně i automaticky přímo prostřednictvím svých zaměstnanců. Informace předané tímto formulářem budou uloženy v databázi správce maximálně po dobu 10 let. Odvolání souhlasu s uložením a zpracováním poskytnutých dat lze e-mailem na info@videobydleni.cz. V případě podezření na neoprávněné použití Vámi poskytnutých údajů máte právo předat podnět k šetření Úřadu pro ochranu osobních údajů. Více informací
Chystáte se prodat nemovitost?
Pomůžeme Vám!

Inzerát si prohlédlo 1 lidí

Prodejce

Andrea Maximová

Andrea Maximová

Hlídací pes

Chcete dostávat emailem podobné nabídky prodeje vícegeneračních domů?

Podobné nemovitosti


Nevyhovuje Vám typ domu? Podívejte se na jiné kategorie domů.


Vybrané články z našeho blogu