Prodej bytu 3+1, Praha - Smíchov, Malátova, 115 m2 (ID: 4058877)

Malátova, Praha, Smíchov

25 900 000 Kč /za nemovitost HYPOTÉKA od 115 757 Kč /za měsíc

(Cena včetně provize a právních služeb)

Prémioví partneři v Praze 5

Stěhovací služby

Výkup a prodej starého nábytku

Informace k bytu

Nabízíme k prodeji prostorný byt s dispozicí 3+1 na Janáčkově nábřeží o výměře 115 m2. Dům je situován na skvělém místě. Nedaleko stanice Švandovo divadlo, Arbesovo náměstí, Anděl a Újezd. U domu je park, jazzový klub a naproti domu je Dětský ostrov.
V dochozí vzdálenosti na Kampu nebo do centra.
Součástí prodeje je byt, podíl na společných částech domu, podíl na společných částech pozemku, podíl na společných částech ateliéru (jednotka v domě).
Dům je před rekonstrukcí, která je nyní v jednání. Ve fondu oprav je našetřená vysoká částka, bez dluhů a závazků. Společná půda a ateliér nabízí vlastníkům domu další zajímavé možnosti a zhodnocení.
Byt se nachází v 5. nadzemním podlaží, díky tomu jsou okna dostatečně vysoko a máte zajištěný výhled po celý rok. V nižších patrech brání výhledu vzrostlé stromy na nábřeží. Jedná se o nejlepší byt (výhled a velikost) z celého činžovního domu. V domě je výtah v mezipatrech.
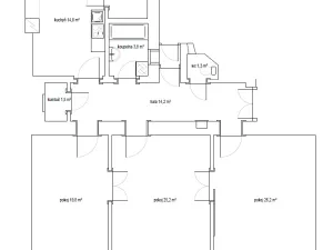
Levé křídlo bytu tvoří 3 pokoje, které jsou navzájem průchozí. Všechna okna jsou orientována na nábřeží a nabízí dechberoucí výhled na řeku. Pravé křídlo bytu tvoří kuchyně s jídelnou, koupelna, WC a úložné prostory. Kuchyně je vybavena kuchyňskými skříňkami, pracovní deskou, vestavěnou lednicí, mikrovlnnou troubou, myčkou, elektrickou troubou, sklokeramickou varnou deskou, dřezem a digestoří se světlem. Za kuchyní je malý pokoj pro služku, dnes využívaný jako spíž. Okna kuchyně a spíže jsou orientovaná do dvora.
Další úložný prostor nabízí světlík a kumbál na chodbě. V koupelně je vana, umyvadlo, koupelnový nábytek, pračka a bojler. WC je oddělené.
Ohřev vody zajištěn bojlerem, vytápění elektrickými konvektory. K bytu náleží i velká sklepní kóje.
V bytě jsou původní okna, vstupní dveře, interiérové dveře a pod plovoucí podlahou jsou původní dubové parkety. Ideální pro celkovou rekonstrukci se zachováním původních prvků.
Doporučujeme prohlídku bytu. Nyní je byt pronajímán.

Parametry bytu

Cena
25 900 000 Kč /za nemovitost Spočítat hypotéku
Poznámka k ceně
Cena včetně provize a právních služeb
Aktualizováno
17. 11. 2025
Adresa
Malátova, Praha, Smíchov
ID
0059-NP07676
Stavba
Cihlová
Stav objektu
Dobrý
Patro
5. z 5
Vybaveno
Ne
Lokalita objektu
Centrum obce
Vlastnictví
Osobní
Užitná plocha
115 m2
Podlahová plocha
115 m2
Třída energetické náročnosti
E - Nehospodárná
Ukazatel energetické náročnosti
272 kWh/m2 za rok
Odpad
Veřejná kanalizace
Výtah

Kontaktovat makléře

Máte zájem o tento byt?

Tímto, v souladu s nařízením Evropského parlamentu a Rady (EU) 2016/679, v platném znění, prohlašuji, že mi je alespoň 16 let a uděluji tak svůj souhlas se zpracováním zadaných údajů (jméno, telefon, e-mail, ip adresa) společnosti B3 Technology, s.r.o., IČ: 07330600, se sídlem Novostavby 126/23, 435 11 Lom (správce dat), za účelem předání dotazu z tohoto formuláře Vámi vybranému inzerentovi a zpětného kontaktování mé osoby. Osobní údaje bude správce zpracovávat manuálně i automaticky přímo prostřednictvím svých zaměstnanců. Informace předané tímto formulářem budou uloženy v databázi správce maximálně po dobu 10 let. Odvolání souhlasu s uložením a zpracováním poskytnutých dat lze e-mailem na info@videobydleni.cz. V případě podezření na neoprávněné použití Vámi poskytnutých údajů máte právo předat podnět k šetření Úřadu pro ochranu osobních údajů. Více informací
Chystáte se prodat nemovitost?
Pomůžeme Vám!

Inzerát si prohlédlo 25 lidí

Prodejce

Klára Plachá

Klára Plachá

Hlídací pes

Chcete dostávat emailem podobné nabídky prodeje bytů 3+1 v Praze 5?

Podobné nemovitosti


Nevyhovuje Vám typ bytu? Podívejte se na jiné kategorie bytů.


Vybrané články z našeho blogu