Pronájem bytu 2+kk, Sadová, 43 m2 (ID: 4058879)

Sadová

11 300 Kč /za měsíc Získejte výhodnou HYPOTÉKU

(+ zálohy na energie 3.700,- Kč měsíčně)

Prémioví partneři v Sadové

Informace k bytu

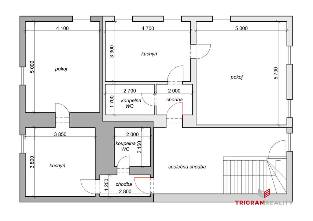
Atypický 2+kk nedaleko Hradce Králové s možností garáže

Zprostředkuji Vám pronájem prostorné jednotky 2+kk o velikosti 43 m². Nachází se ve 2. NP bez výtahu, v atypické rekonstruované budově, pouhých 14 km a 15 min jízdy od Hradce Králové, v obci Sadová.

Objekt prošel rozsáhlou rekonstrukcí a je v dokončovací fázi. Exteriér včetně oplocení, vjezdové brány, zahrady je téměř dokončen.

V bytě jsou nadstandardní protihluková okna, a byt je velmi světlý.
Topení a ohřev vody v bytovém domě zajišťuje plynový kotel s bojlerem, rozúčtování na základě podružného měření, vodoměrů, kalorimetru.

V rámci nájemní smlouvy je možnost pronajmout si uzamykatelnou garáž za 1500,- Kč / měsíc a to přímo na pozemku se zahradou, kde bude k dispozici i společné venkovní posezení a zahrada k odpočinku.

Obec Sadová je snadno dostupná z nedalekého Hradce Králové autem, autobusem i vlakem. V obci se nachází prodejna se smíšeným zbožím. Nejbližší základní a mateřská škola je ve vedlejší vesnici Mžany a další občanská vybavenost a možnosti jako např. lékárna, bazén a pošta se nachází v nedaleké obci Všestary.

Nájem bytu činí 11.300,- Kč + zálohy na energie (elektřina, plyn - topení a ohřev vody, studená voda, komunální odpad) ve výši 3.700,- Kč pro 2 osoby měsíčně. Vratná kauce ve výši 15.000,- Kč, poplatek za zprostředkování nájmu RK ve výši 11.000,- Kč.

Tento prostor je volný od 15. října 2025.

Doporučuji Vám prohlídku této nemovitosti.

Parametry bytu

Cena
11 300 Kč /za měsíc
Poznámka k ceně
+ zálohy na energie 3.700,- Kč měsíčně
Aktualizováno
3. 10. 2025
Adresa
Sadová
ID
N504
Stavba
Smíšená
Stav objektu
Po rekonstrukci
Vlastnictví
Osobní
Užitná plocha
43 m2
Třída energetické náročnosti
G - Mimořádně nehospodárná

Kontaktovat makléře

Realitní kancelář

Trigramreality s.r.o.

Milady Horákové 1738/7, Hradec Králové

Chystáte se prodat nemovitost?
Pomůžeme Vám!

Máte zájem o tento byt?

Tímto, v souladu s nařízením Evropského parlamentu a Rady (EU) 2016/679, v platném znění, prohlašuji, že mi je alespoň 16 let a uděluji tak svůj souhlas se zpracováním zadaných údajů (jméno, telefon, e-mail, ip adresa) společnosti B3 Technology, s.r.o., IČ: 07330600, se sídlem Novostavby 126/23, 435 11 Lom (správce dat), za účelem předání dotazu z tohoto formuláře Vámi vybranému inzerentovi a zpětného kontaktování mé osoby. Osobní údaje bude správce zpracovávat manuálně i automaticky přímo prostřednictvím svých zaměstnanců. Informace předané tímto formulářem budou uloženy v databázi správce maximálně po dobu 10 let. Odvolání souhlasu s uložením a zpracováním poskytnutých dat lze e-mailem na info@videobydleni.cz. V případě podezření na neoprávněné použití Vámi poskytnutých údajů máte právo předat podnět k šetření Úřadu pro ochranu osobních údajů. Více informací
Chystáte se prodat nemovitost?
Pomůžeme Vám!

Inzerát si prohlédlo 9 lidí

Prodejce

Bc. Jiří Hruška

Bc. Jiří Hruška

Hlídací pes

Chcete dostávat emailem podobné nabídky pronájmu bytů 2+kk v Sadové?

Podobné nemovitosti


Nevyhovuje Vám typ bytu? Podívejte se na jiné kategorie bytů.


Vybrané články z našeho blogu