Pronájem bytu 2+1, Praha - Malešice, Počernická, 55 m2 (ID: 4059401)

Počernická, Malešice - Praha 10

22 900 Kč /za měsíc Získejte výhodnou HYPOTÉKU

(vratná jistota, náklady na bydlení 6 111 Kč, poplatek za podnájem)

Prémioví partneři v Praze 10

Stěhovací služby

Výkup a prodej starého nábytku

Informace k bytu

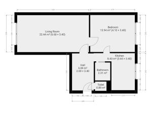
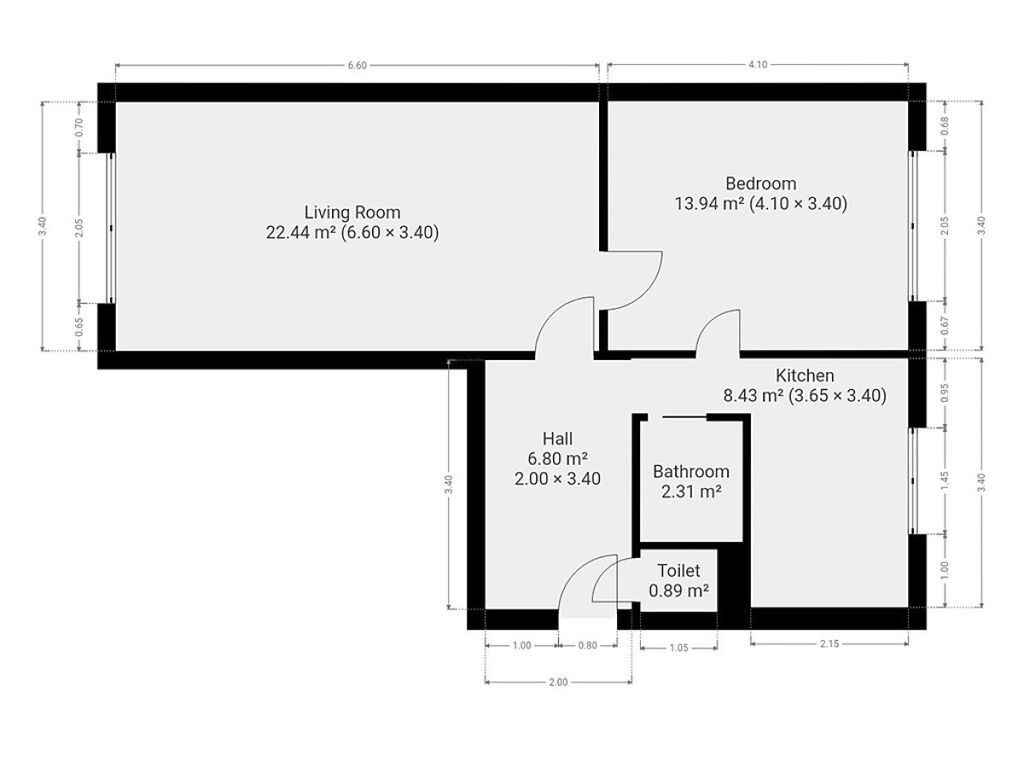
K dlouhodobému podnájmu nabízíme světlý byt 2+1 v klidné lokalitě s výbornou dopravní dostupností – Praha 10, Malešice. Byt o celkové výměře 55 m² se nachází v 1. patře udržovaného bytového domu a k bytu náleží také praktický sklep.

Byt je nezařízený, což poskytuje možnost přizpůsobit si interiér podle vlastního vkusu. Kuchyně je vybavena lednicí s mrazákem, myčkou, elektrickou a mikrovlnnou troubou, plynovou varnou deskou, digestoří a dostatkem úložného prostoru. K dispozici jsou dva samostatné pokoje, vhodné jako ložnice, obývací pokoj či pracovna. Koupelna je vybavena sprchovým koutem, umyvadlem, koupelnovou skříňkou a pračkou. Toaleta je samostatná. V předsíni je vestavěná skříň.

V bezprostředním okolí domu je kompletní občanská vybavenost – restaurace a kavárny, supermarkety Lidl a Billa, drogerie, poliklinika, lékárna, pošta, městská knihovna, fitness a wellness, atd. Pro volný čas a relax se nabízí nedaleký Malešický park a Malešický les. Dopravní dostupnost je výborná, v docházkové vzdálenosti se nachází zastávky autobusů a tramvají, poskytující rychlé spojení do centra Prahy i dalších částí města.

Byt je k nastěhování ihned.

Energetická třída: G (průkaz nedodán)

Parametry bytu

Cena
22 900 Kč /za měsíc
Poznámka k ceně
vratná jistota, náklady na bydlení 6 111 Kč, poplatek za podnájem
Aktualizováno
28. 9. 2025
Adresa
Počernická, Malešice - Praha 10
ID
N6773
Stavba
Panelová
Stav objektu
Velmi dobrý
Patro
2. z 7
Vybaveno
Ne
Typ objektu
Patrový
Lokalita objektu
Klidná část obce
Vlastnictví
Osobní
Užitná plocha
55 m2
Podlahová plocha
55 m2
Třída energetické náročnosti
G - Mimořádně nehospodárná
Elektřina
230V
Plyn
Plynovod
Topení
Ústřední dálkové
Doprava
Vlak, Dálnice, Silnice, MHD, Autobus
Voda
Vodovod
Sklep
Výtah

Kontaktovat makléře

Máte zájem o tento byt?

Tímto, v souladu s nařízením Evropského parlamentu a Rady (EU) 2016/679, v platném znění, prohlašuji, že mi je alespoň 16 let a uděluji tak svůj souhlas se zpracováním zadaných údajů (jméno, telefon, e-mail, ip adresa) společnosti B3 Technology, s.r.o., IČ: 07330600, se sídlem Novostavby 126/23, 435 11 Lom (správce dat), za účelem předání dotazu z tohoto formuláře Vámi vybranému inzerentovi a zpětného kontaktování mé osoby. Osobní údaje bude správce zpracovávat manuálně i automaticky přímo prostřednictvím svých zaměstnanců. Informace předané tímto formulářem budou uloženy v databázi správce maximálně po dobu 10 let. Odvolání souhlasu s uložením a zpracováním poskytnutých dat lze e-mailem na info@videobydleni.cz. V případě podezření na neoprávněné použití Vámi poskytnutých údajů máte právo předat podnět k šetření Úřadu pro ochranu osobních údajů. Více informací
Chystáte se prodat nemovitost?
Pomůžeme Vám!

Inzerát si prohlédlo 6 lidí

Prodejce

Miloslava Kačerová

Miloslava Kačerová

Hlídací pes

Chcete dostávat emailem podobné nabídky pronájmu bytů 2+1 v Praze 10?

Podobné nemovitosti


Nevyhovuje Vám typ bytu? Podívejte se na jiné kategorie bytů.


Vybrané články z našeho blogu