Prodej bytu 2+kk, Oslavany, Široká, 83 m2

Široká, Oslavany

7 650 000 Kč /za nemovitost HYPOTÉKA od 34 191 Kč /za měsíc

(cena k jednání)

Prémioví partneři v Oslavanech

Informace k bytu

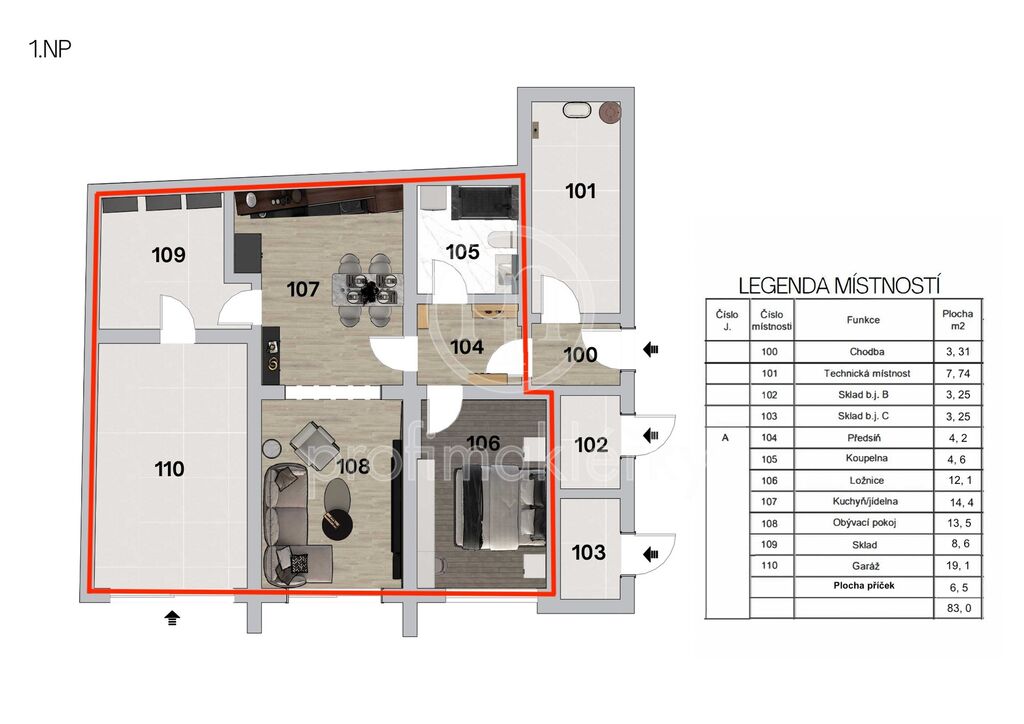
**PRODEJ EXKLUZIVNÍ NOVOSTAVBY BYTU 2+kk S VLASTNÍ PŘEDZAHRÁDKOU, GARÁŽÍ A ZAHRADOU s celkovou velkorysou plochou 107 m2 + 67 m2 zahrada - Oslavany, ulice Široká**

Ve výhradním zastoupení majitele nabízím MODERNÍ BYT 2+kk o podlahové ploše 83m2. Výměra zahrnuje velkou komoru či šatnu, obývací pokoj s francouzkým oknem, prostorný kuchyňský kout, ložnici, koupelnu s toaletou, předsíň a garáž. Dále k bytu náleží soukromá předzahrádka 24 m2 na kterou je přímý vstup z obývacího pokoje a podíl na společné zahradě za domem 55,5 m2.

Ulice Široká, Oslavany | Jen 25 km od Brna

VÝJIMEČNÁ PŘÍLEŽITOST - POUZE 3 BYTY K DISPOZICI!

**Objevte moderní bydlení v jednom ze tří exkluzivních bytů v bytovém domě**, která kombinuje nejnovější technologie s kouzlem klidného města Oslavany. Perfektní pro ty, kdo hledají kvalitní život v dosahu přírody s výbornou dostupností do Brna.

UNIKÁTNÍ MOŽNOST: BYT PŘESNĚ NA VAŠI MÍRU!

** KLIENTSKÉ ZMĚNY BEZ KOMPLIKACÍ:**
**Možnost dokončení podle vašich představ** - stále je čas na úpravy!
**Vlastní volba materiálů** - dlažby, podlahy, obklady podle vašeho vkusu
**Individuální barvy a povrchy** - vytvořte si domov snů
**Možnost zvýhodněné kuchyňské linky na míru** - profesionální návrh a realizace

** VÝHODA: Žádné budoucí rekonstrukce, žádné kompromisy - vše tak, jak si přejete od prvního dne!**

VLASTNÍ PŘEDZAHRÁDKA A ZAHRADA - VÁŠE ZELENÁ OÁZA!

**Pěstujte vlastní ovoce a zeleninu** - čerstvé potraviny přímo z vaší zahrady
**Soukromá předzahrádka** pro relaxaci a grilování
**Kvalitní ornice připravena** - okamžitě můžete začít s výsadbou
**Zavlažování z dešťové vody** - pohodlné a ekologické

## TERMÍNY NASTĚHOVÁNÍ - VYBERTE SI:

**RYCHLÉ JEDNÁNÍ = VÁNOCE DOMA!**
Při rychlém rozhodnutí možnost nastěhování **do Vánoc 2025**

**STANDARDNÍ TERMÍN:** Nastěhování nejpozději **do konce března 2026**
**Kompletní dokončení** včetně terénních úprav **do konce května 2026**

SKVĚLÁ DOPRAVNÍ DOSTUPNOST:
- **Přímé vlakové spojení do Brna** - Oslavany jsou konečnou stanicí železnice z Brna
- **Kvalitní silniční napojení** - 25 km od Brna, snadný příjezd autem
- **Kompletní občanská vybavenost** na dosah ruky

MODERNÍ TECHNOLOGIE & ÚSPORNOST:
- **PENB: B** - nízké náklady na vytápění!
- **Společné tepelné čerpadlo** s možností chlazení
- **Podlahové vytápění/chlazení** po celém bytě, žádné radiátory
- **Příprava pro klimatizaci** již vyvedena
- **Chytré řešení rolet** s elektrickým ovládáním

EKOLOGICKÉ A PRAKTICKÉ ŘEŠENÍ:
- **Retenční nádrž na dešťovou vodu a čerpadlem** (6 m³) pro zalévání zahrady
- **Příprava pro nabíjení elektromobilů** (380V) s bezpečnostním vypínačem uvnitř

PRÉMIOVÉ VYBAVENÍ A DETAILY:
**Francouzské okno** s elektrickými roletami
**Možnost WC s integrovaným bidetem** (na přání)
**Vestavěné úložné prostory** na chodbách (na přání)
**inteligentní a rafinované uspořádání prostoru ** samostatný prostor pro pračku a sušičku
**Garáž s epoxidovou podlahou a elektrickými vraty**
**Novostavba se zárukou** - žádné skryté vady

LOKALITA S POTENCIÁLEM:
- **Přírodní park Oslava** - ideální pro turistiku a cyklovýlety
- **Klidné a bezpečné prostředí** pro rodiny
- **Rostoucí region** s dobrou investiční perspektivou
- **Historické centrum** s občanskou vybaveností

PROČ SI VYBRAT PRÁVĚ TENTO BYT:
**Byt přesně na míru** - vaše sny se stanou realitou
**Vlastní předzahrádka a zahrada** - soběstačnost a relaxace
**Moderní technologie** - tepelné čerpadlo, chytrá domácnost
**Úsporné bydlení** - nízké náklady díky PENB: B
**Připravenost na budoucnost** - elektromobily, klimatizace
**Jedinečná lokalita** - klid venkova, výhody města

SPECIÁLNÍ VÝHODY PRO VÁS:
**Kuchyňská linka na míru za zvýhodněnou cenu**
**Možnost změn podle vašich přání**
**Vlastní zahrada pro pěstování**
**Rychlé nastěhování možné již do Vánoc**
**Možno financovat hypotečním úvěrem, s jehož vyřízením rády pomůžeme**

** IDEÁLNÍ PRO:**
- Mladé rodiny hledající kvalitní bydlení na míru
- Investory s vizí do budoucnosti
- Milovníky přírody a vlastní zahrady
- Ty, kdo oceňují moderní technologie a individualitu

*Pouze 3 bytové jednotky k dispozici - možnost úprav jen po omezenou dobu*

**DEN OTEVŘENÝCH DVEŘÍ: sobota 18.10.2025**
Pro zajištění dostatečného prostoru pro vaše seznámení se s bytem a celým bytovým domem je nutná rezervace konkrétního času prohlídky. Neváhejte mne tedy kontaktovat a přijďte si prohlédnou místo vašeho nového bydlení. Těším se na vás!


** Na míru | S vlastní zahradou | Chytře | Úsporně | Rychle k nastěhování**

Parametry bytu

Cena
7 650 000 Kč /za nemovitost Spočítat hypotéku
Poznámka k ceně
cena k jednání
Aktualizováno
29. 9. 2025
Adresa
Široká, Oslavany
ID
00226
Stavba
Cihlová
Stav objektu
Ve výstavbě
Patro
1. z 2
Vybaveno
Ne
Druh objektu
Rohový
Lokalita objektu
Klidná část obce
Vlastnictví
Osobní
Užitná plocha
83 m2
Podlahová plocha
107 m2
Plocha zahrady
56 m2
Třída energetické náročnosti
B - Velmi úsporná
Ukazatel energetické náročnosti
75 kWh/m2 za rok
Elektřina
230V, 400V
Odpad
Veřejná kanalizace
Topení
Ústřední elektrické
Komunikace
Asfaltová
Doprava
Vlak, Silnice, Autobus
Voda
Vodovod
Garáž
Výtah
Bezbarierový přístup
Parkování

Kontaktovat makléře

Máte zájem o tento byt?

Tímto, v souladu s nařízením Evropského parlamentu a Rady (EU) 2016/679, v platném znění, prohlašuji, že mi je alespoň 16 let a uděluji tak svůj souhlas se zpracováním zadaných údajů (jméno, telefon, e-mail, ip adresa) společnosti B3 Technology, s.r.o., IČ: 07330600, se sídlem Novostavby 126/23, 435 11 Lom (správce dat), za účelem předání dotazu z tohoto formuláře Vámi vybranému inzerentovi a zpětného kontaktování mé osoby. Osobní údaje bude správce zpracovávat manuálně i automaticky přímo prostřednictvím svých zaměstnanců. Informace předané tímto formulářem budou uloženy v databázi správce maximálně po dobu 10 let. Odvolání souhlasu s uložením a zpracováním poskytnutých dat lze e-mailem na info@videobydleni.cz. V případě podezření na neoprávněné použití Vámi poskytnutých údajů máte právo předat podnět k šetření Úřadu pro ochranu osobních údajů. Více informací
Chystáte se prodat nemovitost?
Pomůžeme Vám!

Inzerát si prohlédlo 1 lidí

Prodejce

Milada Vejtasová

Milada Vejtasová

Hlídací pes

Chcete dostávat emailem podobné nabídky prodeje bytů 2+kk v Oslavanech?

Podobné nemovitosti


Nevyhovuje Vám typ bytu? Podívejte se na jiné kategorie bytů.


Vybrané články z našeho blogu