Prodej pozemku pro bydlení, Jeseník, U Kasáren, 62000 m2 (ID: 4060344)

U Kasáren, Jeseník

25 000 000 Kč /za nemovitost HYPOTÉKA od 111 735 Kč /za měsíc
Prémioví partneři v Jeseníku

Informace k pozemku

EXKLUZIVNÍ ROZSÁHLÝ INVESTIČNÍ KOMPLEX 6.2 HA V ATRAKTIVNÍ LOKALITĚ JESENÍKU!

Jedinečná příležitost pro developery a investory v malebném Jeseníku. Nabízíme komplex pozemků o celkové výměře 62 000 m² (6.2 hektarů), který představuje výjimečný potenciál pro výstavbu, ale i pro dlouhodobé zhodnocení investice.

Co získáte:

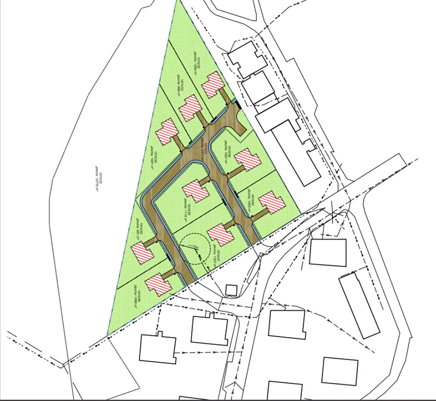
12 600 m² Stavebních pozemků s okamžitým potenciálem (BH, Z4): Tyto plochy jsou ideální pro realizaci projektu rodinných domů, pro který je již k dispozici podrobná mapa dělení parcel pro 9 rodinných domů. Ačkoli je tento podklad z konce roku 2012, představuje cenný výchozí bod pro další projektování. Pozemky zároveň umožňují i výstavbu bytových domů a drobných komerčních či občanských zařízení, což zajišťuje velkou flexibilitu využití. Realizace projektu rodinných domů podléhá splnění aktuálních podmínek územního plánu pro podmíněně přípustné využití.


23 886 m² Územní Rezerva s určením pro hromadné bydlení (R12): Tato významná plocha je v územním plánu zanesena jako územní rezerva pro budoucí development, s potenciálem výrazného zhodnocení. Na jedné hranici je navíc definována jako plocha s určením pro budoucí transformaci území, což naznačuje další investiční příležitosti pro celkový rozvoj lokality. (PV) Přesné možnosti využití a zastavitelnosti podléhají detailnímu prověření v územním plánu města. (A)


Pás 18 924 m² s potenciálem budoucího využití: Strategicky umístěný hned vedle stávající zástavby, s potenciálem pro budoucí změnu územního plánu a následnou výstavbu dalších bytových či rodinných domů. Budoucí využití je vázáno na případné schválení změny územního plánu městem Jeseník a dostupnost inženýrských sítí.


Infrastruktura a rozvoj:

Ke stavebním pozemkům vede stávající obecní příjezdová cesta z ulice U Kasáren. Budoucí majitel si na tuto obecní cestu bude muset napojit vlastní příjezd. Pro rozvoj 12 600 m² stavebních pozemků počítá projekt dělení pozemků s vybudováním dalších vnitřních komunikací a nové inženýrské sítě, včetně dalších příjezdů ke každému domu, které jsou přehledně zobrazeny ve vizualizacích.

Dlouhodobá investiční hodnota:

Kombinace stavebních pozemků s okamžitým využitím a rozsáhlých ploch s potenciálem budoucího rozvoje v dynamicky se rozvíjející lokalitě zaručuje, že se Vám investované prostředky do budoucna mnohonásobně zhodnotí!



Cenová strategie:

Celý pozemkový komplex o celkové výměře 62 000 m² se prodává VÝHRADNĚ JAKO CELEK.

Celková cena za celý komplex: 25 000 000 Kč.

Tato cena je složena z:

Stavební pozemky (12 600 m²): Kalkulovány za 1 200 Kč/m² (celkem 15 120 000 Kč).

Zbývajících 49 400 m² (nestavební pozemky včetně územní rezervy a pásu s potenciálem budoucího využití): Kalkulovány za 200 Kč/m² (celkem 9 880 000 Kč).

Upozornění: Pozemky se prodávají pouze jako celek za uvedenou celkovou cenu.

Pro detailnější informace, veškeré dostupné mapové podklady, územní plány a další dokumenty neváhejte kdykoliv kontaktovat makléřku na uvedených kontaktech. Vše vám ráda zašle e-mailem.

Parametry pozemku

Cena
25 000 000 Kč /za nemovitost Spočítat hypotéku
Aktualizováno
20. 11. 2025
Adresa
U Kasáren, Jeseník
Plocha pozemku
62000 m2

Kontaktovat makléře

Realitní kancelář

Logo Slezské reality

Slezské reality

Vítkovická 3276/2a, Ostrava, Moravská Ostrava

Chystáte se prodat nemovitost?
Pomůžeme Vám!

Máte zájem o tento pozemek?

Tímto, v souladu s nařízením Evropského parlamentu a Rady (EU) 2016/679, v platném znění, prohlašuji, že mi je alespoň 16 let a uděluji tak svůj souhlas se zpracováním zadaných údajů (jméno, telefon, e-mail, ip adresa) společnosti B3 Technology, s.r.o., IČ: 07330600, se sídlem Novostavby 126/23, 435 11 Lom (správce dat), za účelem předání dotazu z tohoto formuláře Vámi vybranému inzerentovi a zpětného kontaktování mé osoby. Osobní údaje bude správce zpracovávat manuálně i automaticky přímo prostřednictvím svých zaměstnanců. Informace předané tímto formulářem budou uloženy v databázi správce maximálně po dobu 10 let. Odvolání souhlasu s uložením a zpracováním poskytnutých dat lze e-mailem na info@videobydleni.cz. V případě podezření na neoprávněné použití Vámi poskytnutých údajů máte právo předat podnět k šetření Úřadu pro ochranu osobních údajů. Více informací
Chystáte se prodat nemovitost?
Pomůžeme Vám!

Inzerát si prohlédlo 4 lidí

Prodejce

Renáta Mandincová

Renáta Mandincová

Hlídací pes

Chcete dostávat emailem podobné nabídky prodeje pozemků pro bydlení v Jeseníku?

Podobné nemovitosti


Nevyhovuje Vám typ pozemku? Podívejte se na jiné kategorie pozemků.


Vybrané články z našeho blogu