Prodej chalupy, Čechtice - Nové Práchňany, 78 m2

Čechtice, Nové Práchňany

5 990 000 Kč /za nemovitost HYPOTÉKA od 26 772 Kč /za měsíc
Prémioví partneři v Čechticích

Informace k domu

Prodej chalupy, 78 m², Čechtice - Nové Práchňany

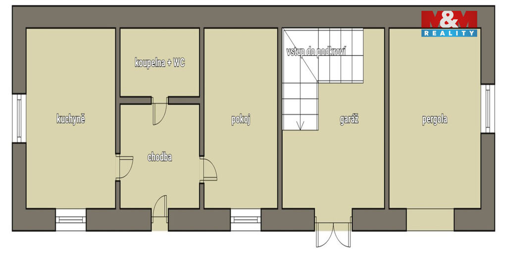
Nabízíme k prodeji útulnou chalupu v malebné vesnici Nové Práchňany u Čechtic. Dům stojí v klidné části obce a poskytuje naprosté soukromí na pozemku o rozloze 607 m². V přízemí najdete prostornou obývací kuchyni, pokoj, koupelnu s WC a chodbu. Z garáže je vstup do podkroví, kde vznikly dva útulné pokoje s vlastní koupelnou a toaletou. Voda je zajištěna kopanou studnou, elektřina přivedena, vytápění krbovými kamny do radiátorů. Dům je zateplený a má novou střechu cca 10 let. K domu patří udržovaná zahrada s bazénem a pergolou s posezením u krbu. Obec Čechtice (5 minut) nabízí základní občanskou vybavenost - školu, školku, lékaře, obchody, restaurace, lékárnu, poštu i čerpací stanici a výborné autobusové spojení do Prahy i Pelhřimova. Díky D1 (exit 66) jste autem v Praze za cca 45 minut. Lokalita je ideální pro milovníky přírody, turistiky, houbaření i zimních sportů – sjezdovka Křešín je vzdálena pouhé 4 minuty. Chalupa je připravena k okamžitému užívání. Více informací v RK

Parametry domu

Cena
5 990 000 Kč /za nemovitost Spočítat hypotéku
Aktualizováno
30. 3. 2026
Adresa
Čechtice, Nové Práchňany
ID
921619
Stavba
Smíšená
Stav objektu
Dobrý
Vybaveno
Částečně
Druh objektu
Samostatný
Lokalita objektu
Klidná část obce
Vlastnictví
Osobní
Užitná plocha
78 m2
Plocha pozemku
607 m2

Kontaktovat makléře

Realitní kancelář

Logo M&M reality

M&M reality

ulice Krakovská 583/9, Praha

Chystáte se prodat nemovitost?
Pomůžeme Vám!

Máte zájem o tento dům?

Tímto, v souladu s nařízením Evropského parlamentu a Rady (EU) 2016/679, v platném znění, prohlašuji, že mi je alespoň 16 let a uděluji tak svůj souhlas se zpracováním zadaných údajů (jméno, telefon, e-mail, ip adresa) společnosti B3 Technology, s.r.o., IČ: 07330600, se sídlem Novostavby 126/23, 435 11 Lom (správce dat), za účelem předání dotazu z tohoto formuláře Vámi vybranému inzerentovi a zpětného kontaktování mé osoby. Osobní údaje bude správce zpracovávat manuálně i automaticky přímo prostřednictvím svých zaměstnanců. Informace předané tímto formulářem budou uloženy v databázi správce maximálně po dobu 10 let. Odvolání souhlasu s uložením a zpracováním poskytnutých dat lze e-mailem na info@videobydleni.cz. V případě podezření na neoprávněné použití Vámi poskytnutých údajů máte právo předat podnět k šetření Úřadu pro ochranu osobních údajů. Více informací
Chystáte se prodat nemovitost?
Pomůžeme Vám!

Inzerát si prohlédlo 25 lidí

Prodejce

Gabriela Zelenková

Gabriela Zelenková

Hlídací pes

Chcete dostávat emailem podobné nabídky prodeje chalup v Čechticích?

Top nabídky

Podobné nemovitosti


Nevyhovuje Vám typ domu? Podívejte se na jiné kategorie domů.


Vybrané články z našeho blogu