Pronájem kanceláře, Praha - Karlín, Sokolovská, 288 m2 (ID: 4062591)

Sokolovská, Praha, Karlín

490 Kč /za metr čtvereční / měsíc Získejte výhodnou HYPOTÉKU

(+ služby dle spotřeby cca. 25.000Kč - 35.000Kč)

Prémioví partneři v Praze 8

Stěhovací služby

Výkup a prodej starého nábytku

Informace k nemovitosti

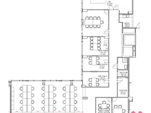
reprezentativní kancelářké prostory 288m2, Karolina Plazza, P-8 Karlín
Prostory se nacházejí v 2.NP novostavby komplexu Karolina Plazza. Prostor se skládá z jedné centrální open-space místnosti pro 24 lidí, dále z 6ti samostatných vybavených zasedaček, kuchyňky, klimatizované serverovny, koupelny, a chillzony.
celková rozloha je 288,6m2
prostory mají centrální vzduchotechniku včetně chlazení.
Prostory se nabízí kompletně zařízené včetně pracovních stolů, kanc.židlí, vybavených zasedacích místností včetně TV, dále vybavena kuchyňka, chill zona, k dispozici je i akustická zvukotěsná budka. Projekt Karolína Plazza v pražském Karlíně je moderní rezidenční a komerční komplex dokončený v roce 2020. Projekt zahrnuje více než 200 bytů, ateliéry, kancelářské a obchodní prostory a podzemní parkování. Karolína Plazza 2 navazuje na tradiční činžovní zástavbu Karlína. Přízemí budov je určeno pro obchodní pasáž, zatímco podzemní podlaží slouží jako hromadné garáže.
Ke kancelářím jsou k dispozici 3ks parkovacích míst,
- Cena za kanceláře m2 490,-Kč x 288,6 = 141.500 + dph
- Cena za parkování 3550 + dph x 3 = 10.650,- + dph
-Cena za služby je dle spotřeby 25.000 - 30.000,-/ měsíčně
Pro další informace prosím kontaktujte makléře.

Parametry nemovitosti

Cena
490 Kč /za metr čtvereční / měsíc
Poznámka k ceně
+ služby dle spotřeby cca. 25.000Kč - 35.000Kč
Aktualizováno
4. 10. 2025
Adresa
Sokolovská, Praha, Karlín
ID
N39230
Stavba
Smíšená
Stav objektu
Novostavba
Patro
2.
Vybaveno
Ano
Užitná plocha
288 m2
Garáž
Parkování

Kontaktovat makléře

Realitní kancelář

Svět bydlení, s.r.o.

Žitná 608/27, Praha, Nové Město

Chystáte se prodat nemovitost?
Pomůžeme Vám!

Máte zájem o tuto nemovistost?

Tímto, v souladu s nařízením Evropského parlamentu a Rady (EU) 2016/679, v platném znění, prohlašuji, že mi je alespoň 16 let a uděluji tak svůj souhlas se zpracováním zadaných údajů (jméno, telefon, e-mail, ip adresa) společnosti B3 Technology, s.r.o., IČ: 07330600, se sídlem Novostavby 126/23, 435 11 Lom (správce dat), za účelem předání dotazu z tohoto formuláře Vámi vybranému inzerentovi a zpětného kontaktování mé osoby. Osobní údaje bude správce zpracovávat manuálně i automaticky přímo prostřednictvím svých zaměstnanců. Informace předané tímto formulářem budou uloženy v databázi správce maximálně po dobu 10 let. Odvolání souhlasu s uložením a zpracováním poskytnutých dat lze e-mailem na info@videobydleni.cz. V případě podezření na neoprávněné použití Vámi poskytnutých údajů máte právo předat podnět k šetření Úřadu pro ochranu osobních údajů. Více informací
Chystáte se prodat nemovitost?
Pomůžeme Vám!

Inzerát si prohlédlo 1 lidí

Prodejce

Musil Vojtěch

Musil Vojtěch

Hlídací pes

Chcete dostávat emailem podobné nabídky pronájmu kanceláří v Praze 8?

Podobné nemovitosti


Nevyhovuje Vám typ nemovitosti? Podívejte se na jiné kategorie komerčních.


Vybrané články z našeho blogu