Pronájem bytu 2+kk, Česká Lípa, Hradecká, 40 m2 (ID: 4062785)

Hradecká, Česká Lípa

11 500 Kč /za měsíc Získejte výhodnou HYPOTÉKU

(Zálohy na služby a energie: 1 osoba 3 500 Kč, 2 osoby 4 500 Kč, Elektřina: převod na nájemníka, Nájem a zálohy na služby a energie jsou splatné 1. dne v měsíci)

Prémioví partneři v České Lípě

Rekonstrukce

Úklidové služby

Informace k bytu

Pronájem bytu 2+kk+L, 40 m2, Hradecká ulice, 10. podlaží z 12

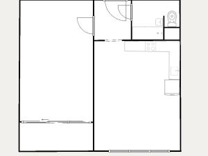
Nabízíme k pronájmu byt 2+kk s lodžií o rozloze 40 m2, nacházející se v 10. podlaží z 12 na Hradecké ulici. Byt je po rekonstrukci a nabízí komfortní bydlení v klidné lokalitě.

Popis bytu:
Vstupní chodba
Obývací pokoj: Rohová kuchyňská linka s vestavěnou elektrickou troubou a elektrickým sporákem (indukční). Na podlaze je plovoucí podlaha. Kuchyňská linka je vybavena volně stojící pračkou a lednicí s mrazákem. Okno v obývacím pokoji je vybaveno elektronicky ovládanou venkovní žaluzií.
Ložnice: Na podlaze je koberec, z ložnice je vstup do lodžie.
Koupelna: Zděné jádro, vybaveno WC, malým umyvadlem a menší vanou.
V suterénu domu je sklepní kóje a společná kolárna.
Další informace:
Byt je po rekonstrukci: štukové omítky, nová elektřina, plastová okna, zděná koupelna, rohová kuchyňská linka.
Dům je nově zateplen, včetně rekonstrukce lodžie.
Společné prostory domu jsou po rekonstrukci, k dispozici jsou dva moderní výtahy.
Podmínky pronájmu:
Měsíční nájemné: 11 500 Kč
Zálohy na služby a energie: 1 osoba 3 500 Kč, 2 osoby 4 500 Kč
Elektřina: převod na nájemníka
Kauce: 16 000 Kč
Nájem a zálohy na služby a energie jsou splatné 1. dne v měsíci.
K nastěhování ihned.
Pronájem je určen pro jednu až dvě pracující osoby.
Pro více informací nebo sjednání prohlídky nás neváhejte kontaktovat.

Parametry bytu

Cena
11 500 Kč /za měsíc
Poznámka k ceně
Zálohy na služby a energie: 1 osoba 3 500 Kč, 2 osoby 4 500 Kč, Elektřina: převod na nájemníka, Nájem a zálohy na služby a energie jsou splatné 1. dne v měsíci
Aktualizováno
2. 10. 2025
Adresa
Hradecká, Česká Lípa
ID
342
Stavba
Panelová
Stav objektu
Po rekonstrukci
Patro
10. z 12
Typ objektu
Patrový
Vlastnictví
Osobní
Užitná plocha
40 m2
Podlahová plocha
40 m2
Třída energetické náročnosti
G - Mimořádně nehospodárná
Elektřina
230V, 400V
Odpad
Veřejná kanalizace
Topení
Ústřední dálkové
Komunikace
Asfaltová
Telekomunikace
Internet, Kabelová televize
Doprava
Silnice, MHD
Voda
Vodovod
Topné těleso
Radiátory
Sklep
Lodžie
Výtah
Bezbarierový přístup

Kontaktovat makléře

Realitní kancelář

Logo Reality Rychtařík

Reality Rychtařík

Prokopa Holého 145/5, Česká Lípa, Česká Lípa

Chystáte se prodat nemovitost?
Pomůžeme Vám!

Máte zájem o tento byt?

Tímto, v souladu s nařízením Evropského parlamentu a Rady (EU) 2016/679, v platném znění, prohlašuji, že mi je alespoň 16 let a uděluji tak svůj souhlas se zpracováním zadaných údajů (jméno, telefon, e-mail, ip adresa) společnosti B3 Technology, s.r.o., IČ: 07330600, se sídlem Novostavby 126/23, 435 11 Lom (správce dat), za účelem předání dotazu z tohoto formuláře Vámi vybranému inzerentovi a zpětného kontaktování mé osoby. Osobní údaje bude správce zpracovávat manuálně i automaticky přímo prostřednictvím svých zaměstnanců. Informace předané tímto formulářem budou uloženy v databázi správce maximálně po dobu 10 let. Odvolání souhlasu s uložením a zpracováním poskytnutých dat lze e-mailem na info@videobydleni.cz. V případě podezření na neoprávněné použití Vámi poskytnutých údajů máte právo předat podnět k šetření Úřadu pro ochranu osobních údajů. Více informací
Chystáte se prodat nemovitost?
Pomůžeme Vám!

Inzerát si prohlédlo 1 lidí

Prodejce

Jakub Rychtařík

Jakub Rychtařík

Hlídací pes

Chcete dostávat emailem podobné nabídky pronájmu bytů 2+kk v České Lípě?

Podobné nemovitosti


Nevyhovuje Vám typ bytu? Podívejte se na jiné kategorie bytů.


Vybrané články z našeho blogu