Prodej rodinného domu, Zadní Třebaň, Bezejmenná, 115 m2

Bezejmenná, Zadní Třebaň

8 700 000 Kč /za nemovitost HYPOTÉKA od 38 884 Kč /za měsíc

(včetně provize RK)

Prémioví partneři v Zadní Třebani

Informace k domu

Hledáte místo s atmosférou, s domem pro normálního smrtelníka velký tak akorát?
Možná vás zaujme právě tato nemovitost v klidné části Zadní Třebaně, obklopená zelení a chráněná před pohledy z okolí.

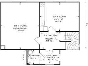
Na pozemcích o celkové výměře 848 m2 stojí cihlový dům z 30. let minulého století se zastavěnou plochou 64 m2. Ten má dispozici 3+1 + dvě sklepní místnosti, které mohou sloužit jako technické zázemí, dílna nebo ateliér. Dispozici lze snadno upravit na 4+kk. Na pozemku se nachází také zděný přístavek o výměře cca 20 m, který byl užíván jako pergola a sklad zahradního náčiní.

Dům (energetická třída G), napojený na obecní vodovod, kanalizaci a plyn v roce 2024 prošel částečnou rekonstrukcí (cca 1,4 mil. kč) - jsou tu nová plastová okna, vchodové dveře, obnovená elektroinstalace, vybudovaná koupelna v 1. NP a samostatné WC v 2. NP, kde jsou také zateplené stropy.

Zahrada má výjimečně příjemnou atmosféru. Najdete tu vzrostlou lípu, dub a na hranici pozemku protéká malý potůček. Pozemek s jižní orientací je ze všech stran chráněn zelení před zvědavýma očima sousedů a kolemjdoucích. Příjemným bonusem je i vlastní studna na zalévání.

Zadní Třebaň má základní vybavenost: školu, školku (s mnoha kroužky), obchod Coop, dětské hřiště na návsi nebo na ostrově, kde se konají různé koncerty a také je ideálním místem na koupání. Kompletní vybavenost, jako je například supermarket Penny nebo nová sportovní hala, najdete ve 3 km vzdálených Řevnicích. Hlavní devizou Zadní Třebaně je klid a nádherná příroda Brd, takže milovníci procházek nebo cyklistiky si jistě přijdou na své. Do Prahy se dostanete přímým vlakem ze zastávky Zadní Třebaň - za půl hodiny jste na Smíchovském nádraží (2× za hodinu), v opačném směru v Berouně za 15 minut.

Hledáte místo s atmosférou, s domem pro normálního smrtelníka velký tak akorát?
Možná vás zaujme právě tato nemovitost v klidné části Zadní Třebaně, obklopená zelení a chráněná před pohledy z okolí.

Na pozemcích o celkové výměře 848 m2 stojí cihlový dům z 30. let minulého století se zastavěnou plochou 64 m2. Ten má dispozici 3+1 + dvě sklepní místnosti, které mohou sloužit jako technické zázemí, dílna nebo ateliér. Dispozici lze snadno upravit na 4+kk. Na pozemku se nachází také zděný přístavek o výměře cca 20 m, který byl užíván jako pergola a sklad zahradního náčiní.

Dům (energetická třída G), napojený na obecní vodovod, kanalizaci a plyn v roce 2024 prošel částečnou rekonstrukcí (cca 1,4 mil. kč) - jsou tu nová plastová okna, vchodové dveře, obnovená elektroinstalace, vybudovaná koupelna v 1. NP a samostatné WC v 2. NP, kde jsou také zateplené stropy.

Zahrada má výjimečně příjemnou atmosféru. Najdete tu vzrostlou lípu, dub a na hranici pozemku protéká malý potůček. Pozemek s jižní orientací je ze všech stran chráněn zelení před zvědavýma očima sousedů a kolemjdoucích. Příjemným bonusem je i vlastní studna na zalévání.

Zadní Třebaň má základní vybavenost: školu, školku (s mnoha kroužky), obchod Coop, dětské hřiště na návsi nebo na ostrově, kde se konají různé koncerty a také je ideálním místem na koupání. Kompletní vybavenost, jako je například supermarket Penny nebo nová sportovní hala, najdete ve 3 km vzdálených Řevnicích. Hlavní devizou Zadní Třebaně je klid a nádherná příroda Brd, takže milovníci procházek nebo cyklistiky si jistě přijdou na své. Do Prahy se dostanete přímým vlakem ze zastávky Zadní Třebaň - za půl hodiny jste na Smíchovském nádraží (2× za hodinu), v opačném směru v Berouně za 15 minut.

Více informací o domě včetně odhadovaných nákladů na provoz, plánků a technických detailů najdete na naší webové stránce v sekci projekty (rdtreban).
A pokud vás dům zaujal, rád vás přivítám na osobní prohlídce!

Parametry domu

Cena
8 700 000 Kč /za nemovitost Spočítat hypotéku
Poznámka k ceně
včetně provize RK
Aktualizováno
10. 11. 2025
Adresa
Bezejmenná, Zadní Třebaň
ID
883
Stavba
Cihlová
Stav objektu
Dobrý
Typ objektu
Patrový
Druh objektu
Samostatný
Užitná plocha
115 m2
Zastavěná plocha
64 m2
Podlahová plocha
115 m2
Plocha pozemku
848 m2
Plocha zahrady
784 m2
Třída energetické náročnosti
G - Mimořádně nehospodárná
Topné těleso
WAW
Terasa
Bezbarierový přístup

Kontaktovat makléře

Realitní kancelář

Logo REAL FRIEND

REAL FRIEND

Navrátilova 675/3, Praha, Nové Město

Chystáte se prodat nemovitost?
Pomůžeme Vám!

Máte zájem o tento dům?

Tímto, v souladu s nařízením Evropského parlamentu a Rady (EU) 2016/679, v platném znění, prohlašuji, že mi je alespoň 16 let a uděluji tak svůj souhlas se zpracováním zadaných údajů (jméno, telefon, e-mail, ip adresa) společnosti B3 Technology, s.r.o., IČ: 07330600, se sídlem Novostavby 126/23, 435 11 Lom (správce dat), za účelem předání dotazu z tohoto formuláře Vámi vybranému inzerentovi a zpětného kontaktování mé osoby. Osobní údaje bude správce zpracovávat manuálně i automaticky přímo prostřednictvím svých zaměstnanců. Informace předané tímto formulářem budou uloženy v databázi správce maximálně po dobu 10 let. Odvolání souhlasu s uložením a zpracováním poskytnutých dat lze e-mailem na info@videobydleni.cz. V případě podezření na neoprávněné použití Vámi poskytnutých údajů máte právo předat podnět k šetření Úřadu pro ochranu osobních údajů. Více informací
Chystáte se prodat nemovitost?
Pomůžeme Vám!

Inzerát si prohlédlo 15 lidí

Prodejce

Ondřej  Valoušek

Ondřej Valoušek

Hlídací pes

Chcete dostávat emailem podobné nabídky prodeje rodinných domů v Zadní Třebani?

Podobné nemovitosti


Nevyhovuje Vám typ domu? Podívejte se na jiné kategorie domů.


Vybrané články z našeho blogu