Pronájem výrobních prostor, Klínec, 94 m2

Klínec

29 000 Kč /za měsíc Získejte výhodnou HYPOTÉKU

(+ zálohy za služby a energie, + vratná kauce, + rezervační poplatek)

Prémioví partneři v Klínci

Informace k nemovitosti

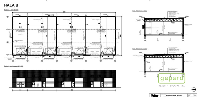
POSLEDNÍ VOLNÁ MALÁ NEBYTOVÁ JEDNOTKA - B4 !!!

Ve vzdálenosti necelých 20 minut jízdy od Prahy, v obci Klínec (okres Praha-západ), se nachází nově dokončený a plně zprovozněný multifunkční areál Mikropark, který nabízí moderní haly určené pro nerušící výrobu a skladování.

V rámci areálu je aktuálně k dispozici poslední volná malá nebytová jednotka na pronájem s označením B4 včetně možnosti pronájmu parkovacích stání.

Základní specifika nebytové jednotky o velikosti 94 m2:
• Vnitřní půdorysné rozměry (k vnitřnímu líci opláštění): 15.8 x 5.9 m (+/- 0.25 m)
• Vnitřní světlost (mimo vazník): 6.2 m (+/- 0.10 m)
• 1x sekční průmyslová vrata: 3.500 x 4.000 mm (šířka x výška)
• Součástí vrat vstupní dveře (900 x 1.980 mm), kování klika-klika
• Součástí vrat 3x “lodní“ okénko
• Bez výkladce a bez oken
• Obvodový plášť: polyuretanový panel tl. 100 mm
• Dělící příčka: minerální panel tl. 100 mm
• Střešní plášť: minerální vata a expandovaný polystyren, celková tl. 220 mm
• Strojně hlazená betonová průmyslová podlaha o nosnosti 4.000 kg/m2
• Požární odolnost nosných konstrukcí a opláštění: 30 minut
• 1x požární hydrant
• 1x přípojné místo pro vodu (kohout 3/4") s výlevkou
• 1x přípojné místo pro kanalizaci (DN110)
• 1x zásuvková skříň: 5x 230V, 1x 400V 16A a 1x 400V 32A
• 1x prostup střešním pláštěm DN75 (pro slaboproud, alt. klima jednotku)
• Připravenost pro vložení až čtyřech kancelářských kontejnerů
• Povrch - parkovací stání: vsakovací zámková dlažba
• Povrch - ostatní komunikace: kartáčovaný beton
• Zastávka PID na přilehlé D4

Nájemné 29.000 Kč + DPH/měsíc + zálohy za služby a energie.
Vratná kauce ve výši nájemného za 3 měsíce. Rezervační poplatek ve výši nájemného za 1 měsíc.
Vyhrazené parkovací stání: 1.500 Kč + DPH / měsíc.

Pro více informací kontaktujte realitní makléřku.

Parametry nemovitosti

Cena
29 000 Kč /za měsíc
Poznámka k ceně
+ zálohy za služby a energie, + vratná kauce, + rezervační poplatek
Aktualizováno
1. 10. 2025
Adresa
Klínec
ID
11633
Stavba
Smíšená
Stav objektu
Novostavba
Typ objektu
Přízemní
Lokalita objektu
Okraj obce
Užitná plocha
94 m2
Třída energetické náročnosti
B - Velmi úsporná
Elektřina
230V
Odpad
Veřejná kanalizace
Komunikace
Asfaltová
Telekomunikace
Internet
Doprava
Dálnice
Voda
Vodovod
Převod do OV

Kontaktovat makléře

Máte zájem o tuto nemovistost?

Tímto, v souladu s nařízením Evropského parlamentu a Rady (EU) 2016/679, v platném znění, prohlašuji, že mi je alespoň 16 let a uděluji tak svůj souhlas se zpracováním zadaných údajů (jméno, telefon, e-mail, ip adresa) společnosti B3 Technology, s.r.o., IČ: 07330600, se sídlem Novostavby 126/23, 435 11 Lom (správce dat), za účelem předání dotazu z tohoto formuláře Vámi vybranému inzerentovi a zpětného kontaktování mé osoby. Osobní údaje bude správce zpracovávat manuálně i automaticky přímo prostřednictvím svých zaměstnanců. Informace předané tímto formulářem budou uloženy v databázi správce maximálně po dobu 10 let. Odvolání souhlasu s uložením a zpracováním poskytnutých dat lze e-mailem na info@videobydleni.cz. V případě podezření na neoprávněné použití Vámi poskytnutých údajů máte právo předat podnět k šetření Úřadu pro ochranu osobních údajů. Více informací
Chystáte se prodat nemovitost?
Pomůžeme Vám!

Inzerát si prohlédlo 19 lidí

Prodejce

BEM. Ivana Gašpar (Žďánská)

BEM. Ivana Gašpar (Žďánská)

Hlídací pes

Chcete dostávat emailem podobné nabídky pronájmu výrobních prostor v Klínci?

Podobné nemovitosti


Nevyhovuje Vám typ nemovitosti? Podívejte se na jiné kategorie komerčních.


Vybrané články z našeho blogu