Pronájem rodinného domu, Kolín - Sendražice, Karla Legera, 150 m2

Karla Legera, Kolín, Sendražice

24 000 Kč /za měsíc Získejte výhodnou HYPOTÉKU
Prémioví partneři v Kolíně

Informace k domu

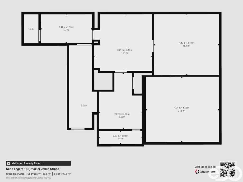
Dům o velikosti 140 m² nabízí dispozici 4+1, která poskytuje dostatek prostoru pro rodinu i pohodlné bydlení jednotlivců. Nemovitost se nachází v klidné lokalitě s výbornou dostupností jak do centra Kolína, tak na nedaleký nájezd na dálnici D11 směrem na Prahu a Hradec Králové. V okolí je k dispozici kompletní občanská vybavenost – školy, školky, obchody, služby i sportovní vyžití.

Dům prošel částečnou rekonstrukcí – nové podlahy, modernizovaná kuchyňská linka, nový plynový kotel včetně radiátorů.

Dům je ideální volbou pro ty, kteří hledají klidné bydlení s rychlou dostupností do města i mimo něj.

Měsíční nájem: 24000 Kč + energie
Kauce: 48000 Kč
Provize RK: 24000 Kč + DPH

Budu se na Vás těšit.

Parametry domu

Cena
24 000 Kč /za měsíc
Náklady na bydlení
6 000
Aktualizováno
3. 10. 2025
Adresa
Karla Legera, Kolín, Sendražice
ID
3229
Stavba
Smíšená
Stav objektu
Dobrý
Vybaveno
Částečně
Typ objektu
Přízemní
Druh objektu
V bloku
Lokalita objektu
Klidná část obce
Užitná plocha
150 m2
Zastavěná plocha
85 m2
Plocha pozemku
305 m2
Třída energetické náročnosti
G - Mimořádně nehospodárná
Elektřina
230V
Plyn
Plynovod
Odpad
Veřejná kanalizace
Komunikace
Betonová
Telekomunikace
Telefon, Internet
Doprava
Vlak, Silnice, MHD, Autobus
Voda
Vodovod
Převod do OV

Kontaktovat makléře

Realitní kancelář

Logo eDO reality

eDO reality

Na Pankráci 322/26, Praha

Chystáte se prodat nemovitost?
Pomůžeme Vám!

Máte zájem o tento dům?

Tímto, v souladu s nařízením Evropského parlamentu a Rady (EU) 2016/679, v platném znění, prohlašuji, že mi je alespoň 16 let a uděluji tak svůj souhlas se zpracováním zadaných údajů (jméno, telefon, e-mail, ip adresa) společnosti B3 Technology, s.r.o., IČ: 07330600, se sídlem Novostavby 126/23, 435 11 Lom (správce dat), za účelem předání dotazu z tohoto formuláře Vámi vybranému inzerentovi a zpětného kontaktování mé osoby. Osobní údaje bude správce zpracovávat manuálně i automaticky přímo prostřednictvím svých zaměstnanců. Informace předané tímto formulářem budou uloženy v databázi správce maximálně po dobu 10 let. Odvolání souhlasu s uložením a zpracováním poskytnutých dat lze e-mailem na info@videobydleni.cz. V případě podezření na neoprávněné použití Vámi poskytnutých údajů máte právo předat podnět k šetření Úřadu pro ochranu osobních údajů. Více informací
Chystáte se prodat nemovitost?
Pomůžeme Vám!

Inzerát si prohlédlo 58 lidí

Prodejce

Jakub Strnad

Jakub Strnad

Hlídací pes

Chcete dostávat emailem podobné nabídky pronájmu rodinných domů v Kolíně?

Podobné nemovitosti


Nevyhovuje Vám typ domu? Podívejte se na jiné kategorie domů.


Vybrané články z našeho blogu