Prodej bytu 3+kk, Břeclav, 91 m2 (ID: 4065760)

Břeclav

8 350 000 Kč HYPOTÉKA od 37 319 Kč /za měsíc

(včetně provize RK)

Prémioví partneři v Břeclavi

Informace k bytu

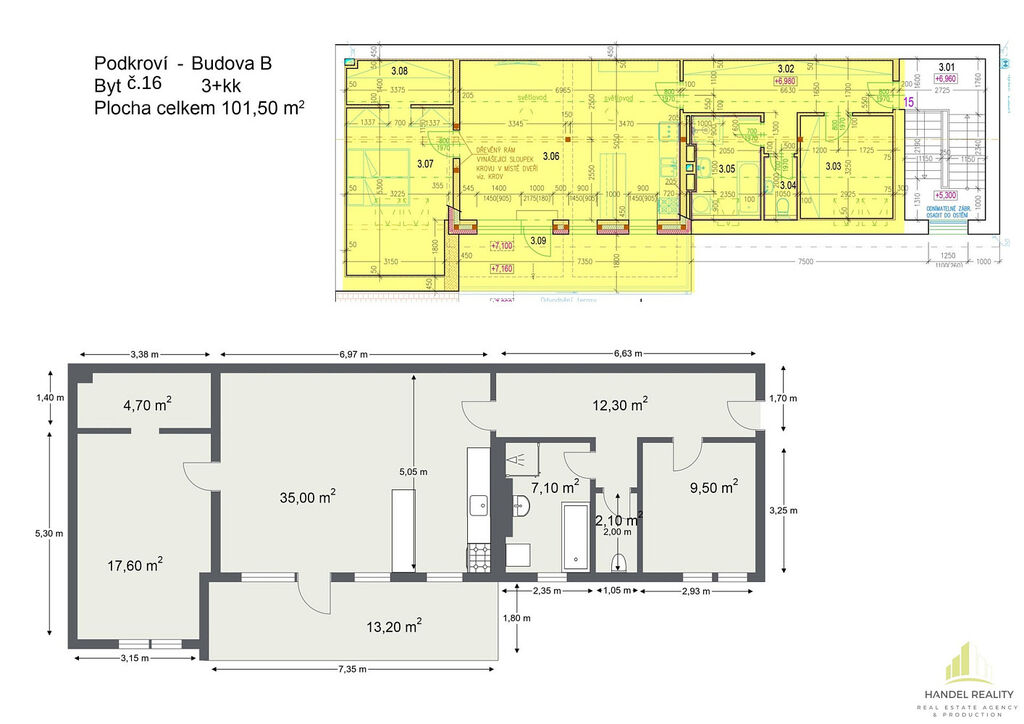
Prodej bytu 3+kk, 91,68 m² - Břeclav

Nabízíme krásný byt 3+kk v nově vznikajícím projektu Rezidence Za Bankou v Břeclavi. S plochou užitnou 91,68 m² poskytuje dostatek prostoru pro pohodlné bydlení. Byt se nachází v podkroví a disponuje moderním a útulným interiérem, je také vybaven vlastní klimatizací, tím zajistí příjemné a komfortní prostředí po celý rok. Součástí jednotky je terasa o velikosti 13,2 m². K bytu přináleží kóje s vlastní přípojkou elektřiny.

Byt je součástí projektu Rezidence Za Bankou, jehož stavba započala v Prosinci 2024. Aktuálně jsou zde již vyhotoveny všechny jednotky včetně vnitřních příček, z velké části hotová fasáda, kde zbývá pouze část, kde se v následujících dnech bude budovat výtah. Dále se začíná s obkládáním koupelen. Dokončení projektu je v plánu na Q3/Q4 letošního roku.

V blízkosti se nachází veškerá občanská vybavenost, restaurace, obchody a zastávky MHD. Tato nemovitost je ideální pro ty, kteří hledají klidné a útulné bydlení v atraktivní lokalitě.

Parametry bytu

Cena
8 350 000 Kč Spočítat hypotéku
Poznámka k ceně
včetně provize RK
Aktualizováno
3. 10. 2025
Adresa
Břeclav
ID
B3.16
Stavba
Cihlová
Stav objektu
Po rekonstrukci
Vlastnictví
Osobní
Užitná plocha
91 m2
Třída energetické náročnosti
C - Úsporná
Ukazatel energetické náročnosti
85 kWh/m2 za rok

Kontaktovat makléře

Máte zájem o tento byt?

Tímto, v souladu s nařízením Evropského parlamentu a Rady (EU) 2016/679, v platném znění, prohlašuji, že mi je alespoň 16 let a uděluji tak svůj souhlas se zpracováním zadaných údajů (jméno, telefon, e-mail, ip adresa) společnosti B3 Technology, s.r.o., IČ: 07330600, se sídlem Novostavby 126/23, 435 11 Lom (správce dat), za účelem předání dotazu z tohoto formuláře Vámi vybranému inzerentovi a zpětného kontaktování mé osoby. Osobní údaje bude správce zpracovávat manuálně i automaticky přímo prostřednictvím svých zaměstnanců. Informace předané tímto formulářem budou uloženy v databázi správce maximálně po dobu 10 let. Odvolání souhlasu s uložením a zpracováním poskytnutých dat lze e-mailem na info@videobydleni.cz. V případě podezření na neoprávněné použití Vámi poskytnutých údajů máte právo předat podnět k šetření Úřadu pro ochranu osobních údajů. Více informací
Chystáte se prodat nemovitost?
Pomůžeme Vám!

Inzerát si prohlédlo 1 lidí

Prodejce

Ing. Eliška Hřebíková

Ing. Eliška Hřebíková

Hlídací pes

Chcete dostávat emailem podobné nabídky prodeje bytů 3+kk v Břeclavi?

Podobné nemovitosti


Nevyhovuje Vám typ bytu? Podívejte se na jiné kategorie bytů.


Vybrané články z našeho blogu