Prodej bytu 2+kk, Břeclav, 59 m2 (ID: 4065855)

Břeclav

5 470 000 Kč HYPOTÉKA od 24 448 Kč /za měsíc

(včetně provize RK)

Prémioví partneři v Břeclavi

Informace k bytu

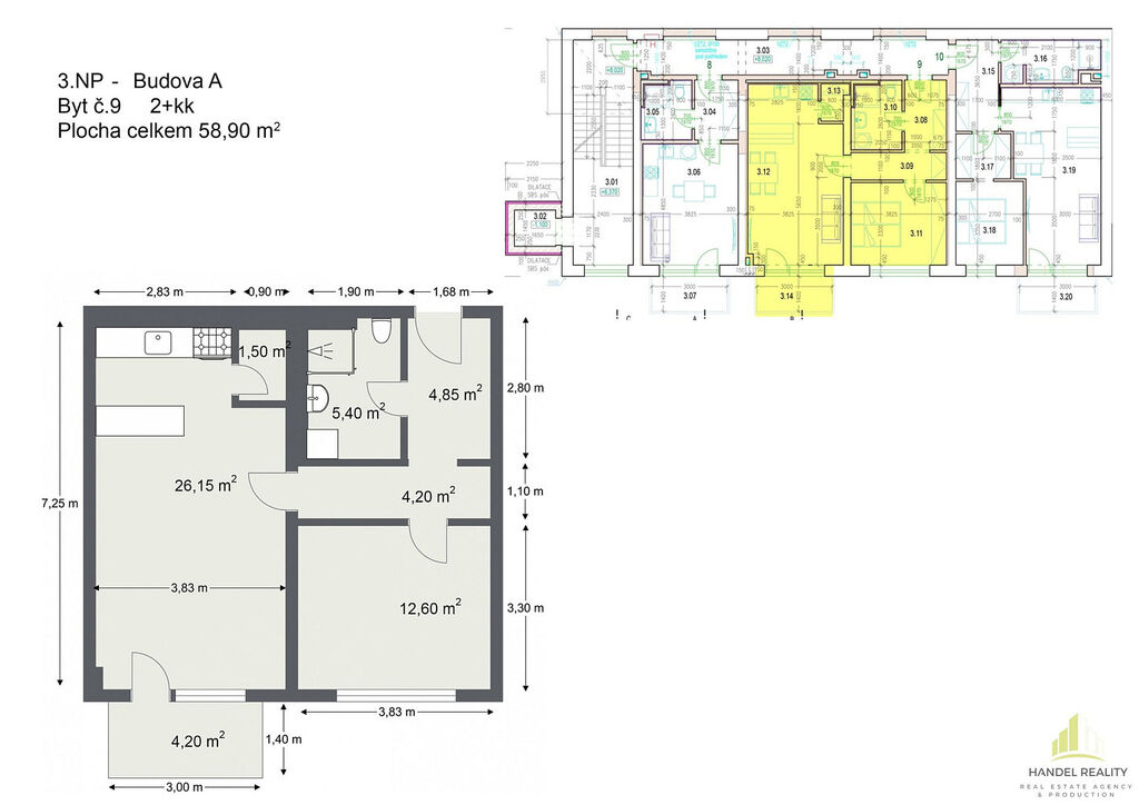
Prodej bytu 2+kk, 59,9 m² - Břeclav

Nabízíme krásný byt 2+kk k prodeji v Břeclavi. S plochou 59,9 m² poskytuje dostatek prostoru pro pohodlné bydlení pro jednotlivce nebo pár. Byt se nachází v 3. NP a disponuje moderním a útulným interiérem, je také vybaven vlastní klimatizací, tím zajistí příjemné a komfortní prostředí po celý rok. Součástí jednotky je i terasa o velikosti 4,2 m². K bytu přináleží kóje s vlastní přípojkou elektřiny.

Byt je součástí projektu Rezidence Za Bankou, jehož stavba započala v Prosinci 2024. Aktuálně jsou zde již vyhotoveny všechny jednotky včetně vnitřních příček, z velké části hotová fasáda, kde zbývá pouze část, kde se v následujících dnech bude budovat výtah. Dále se začíná s obkládáním koupelen. Dokončení projektu je v plánu na Q3/Q4 letošního roku.

V blízkosti se nachází veškerá občanská vybavenost, restaurace, obchody a zastávky MHD. Tato nemovitost je ideální pro ty, kteří hledají klidné a útulné bydlení v atraktivní lokalitě.

Parametry bytu

Cena
5 470 000 Kč Spočítat hypotéku
Poznámka k ceně
včetně provize RK
Aktualizováno
4. 10. 2025
Adresa
Břeclav
ID
A3.09
Stavba
Cihlová
Stav objektu
Po rekonstrukci
Vlastnictví
Osobní
Užitná plocha
59 m2
Třída energetické náročnosti
C - Úsporná
Ukazatel energetické náročnosti
85 kWh/m2 za rok

Kontaktovat makléře

Máte zájem o tento byt?

Tímto, v souladu s nařízením Evropského parlamentu a Rady (EU) 2016/679, v platném znění, prohlašuji, že mi je alespoň 16 let a uděluji tak svůj souhlas se zpracováním zadaných údajů (jméno, telefon, e-mail, ip adresa) společnosti B3 Technology, s.r.o., IČ: 07330600, se sídlem Novostavby 126/23, 435 11 Lom (správce dat), za účelem předání dotazu z tohoto formuláře Vámi vybranému inzerentovi a zpětného kontaktování mé osoby. Osobní údaje bude správce zpracovávat manuálně i automaticky přímo prostřednictvím svých zaměstnanců. Informace předané tímto formulářem budou uloženy v databázi správce maximálně po dobu 10 let. Odvolání souhlasu s uložením a zpracováním poskytnutých dat lze e-mailem na info@videobydleni.cz. V případě podezření na neoprávněné použití Vámi poskytnutých údajů máte právo předat podnět k šetření Úřadu pro ochranu osobních údajů. Více informací
Chystáte se prodat nemovitost?
Pomůžeme Vám!

Inzerát si prohlédlo 1 lidí

Prodejce

Ing. Eliška Hřebíková

Ing. Eliška Hřebíková

Hlídací pes

Chcete dostávat emailem podobné nabídky prodeje bytů 2+kk v Břeclavi?

Podobné nemovitosti


Nevyhovuje Vám typ bytu? Podívejte se na jiné kategorie bytů.


Vybrané články z našeho blogu