Pronájem bytu 2+kk, Praha - Dubeč, Dubeckého, 53 m2 (ID: 4066615)

Dubeckého, Praha, Dubeč

Prodáno
24 990 Kč /za měsíc Získejte výhodnou HYPOTÉKU
Prémioví partneři v Praze 10

Stěhovací služby

Výkup a prodej starého nábytku

Informace k bytu

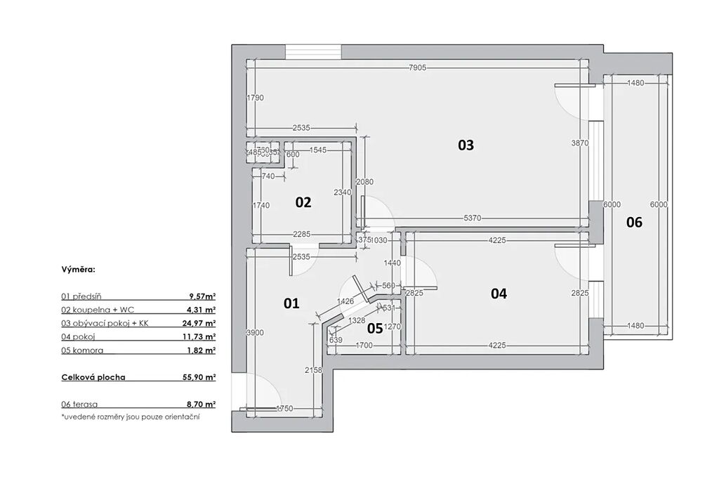
Nabízíme k pronájmu krásný byt v osobním vlastnictví se zahradou o rozloze 325 m2 ve výlučném vlastnictví a s jedinečným výhledem na přírodní scenérie okolí Dubče. Tento moderní byt se nachází v klidné lokalitě na adrese Dubeckého 742/1, v blízkosti Prahy. Dispozičně je byt uspořádán jako 2+kk s užitnou plochou 53 m2 a terasou o rozloze 9 m2, z níž si můžete vychutnat krásné slunečné dny. K bytu náleží i soukromá zahrada pouze k bytu o rozloze 325 m2.

Zálohy do SVJ činí 4.470Kč a je v nich zahrnuto vše, kromě elektřiny, která je 1.000Kč.
Tento byt se nachází na přízemí zděného domu o čtyřech podlažích a nabízí dva prostorné pokoje s vestavěným nábytkem. Oceníte i moderní vybavenou kuchyň a nebo prostornou koupelnu s vanou.

Kauce je jeden měsíční nájem bez poplatků a provize činí jeden měsíční nájem + DPH.

V blízkosti bytu se nachází veškerá občanská vybavenost: obchody, restaurace, školy, školky či zdravotnická zařízení. Výborné dopravní spojení do centra Prahy umožní snadnou dostupnost do města i okolních oblastí.

Tato nemovitost splňuje energetickou třídu B a je ve vynikajícím stavu. Novým nájemníkům nabízíme možnost využít parkovací místo garáž v domě.
Nabídněte si tento moderní a světlý byt v klidné a příjemné lokalitě nedaleko Prahy a začněte trávit své dny v tichém prostředí s výhledem na krásnou přírodu. Nenechte si ujít tuto jedinečnou příležitost k bydlení v pohodlí a luxusu.

V případě zájmu neváhejte kontaktovat makléře.

Parametry bytu

Stav
Prodáno
Cena
24 990 Kč /za měsíc
Aktualizováno
6. 10. 2025
Adresa
Dubeckého, Praha, Dubeč
ID
964758
Stavba
Cihlová
Stav objektu
Velmi dobrý
Patro
1. z 4
Vybaveno
Částečně
Vlastnictví
Osobní
Užitná plocha
53 m2
Podlahová plocha
56 m2
Plocha zahrady
325 m2
Třída energetické náročnosti
B - Velmi úsporná
Ukazatel energetické náročnosti
107 kWh/m2 za rok
Elektřina
230V
Plyn
Plynovod
Komunikace
Asfaltová
Voda
Vodovod
Garáž
Terasa
Výtah
Parkování

Kontaktovat makléře

Máte zájem o tento byt?

Tímto, v souladu s nařízením Evropského parlamentu a Rady (EU) 2016/679, v platném znění, prohlašuji, že mi je alespoň 16 let a uděluji tak svůj souhlas se zpracováním zadaných údajů (jméno, telefon, e-mail, ip adresa) společnosti B3 Technology, s.r.o., IČ: 07330600, se sídlem Novostavby 126/23, 435 11 Lom (správce dat), za účelem předání dotazu z tohoto formuláře Vámi vybranému inzerentovi a zpětného kontaktování mé osoby. Osobní údaje bude správce zpracovávat manuálně i automaticky přímo prostřednictvím svých zaměstnanců. Informace předané tímto formulářem budou uloženy v databázi správce maximálně po dobu 10 let. Odvolání souhlasu s uložením a zpracováním poskytnutých dat lze e-mailem na info@videobydleni.cz. V případě podezření na neoprávněné použití Vámi poskytnutých údajů máte právo předat podnět k šetření Úřadu pro ochranu osobních údajů. Více informací
Chystáte se prodat nemovitost?
Pomůžeme Vám!

Inzerát si prohlédlo 1 lidí

Prodejce

Patrik Vintr

Patrik Vintr

Hlídací pes

Chcete dostávat emailem podobné nabídky pronájmu bytů 2+kk v Praze 10?

Podobné nemovitosti


Nevyhovuje Vám typ bytu? Podívejte se na jiné kategorie bytů.


Vybrané články z našeho blogu