Pronájem bytu 2+kk, Lánov, 60 m2 (ID: 4066777)

Prostřední Lánov

13 000 Kč /za měsíc Získejte výhodnou HYPOTÉKU
Prémioví partneři v Lánově

Informace k bytu

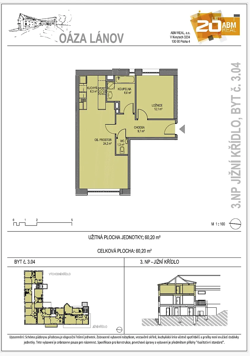
Nabízíme k pronájmu byt 2+kk v bytovém domě v obci Lánov. Byt je umístěn ve 3.NP a nabízí užitnou plochu 60 m². Byt je ideální pro ty, kteří hledají moderní a komfortní bydlení v příjemném prostředí, nebo vhodné místo pro rekreací v podhůří Krkonoš.

Byt je vybaven kuchyňskou linkou se spotřebiči, má vlastní plynový kotel. K bytu náleží sklep a parkovací stání.

Byt bude k nastěhování od 1. října 2025. Měsíční nájemné činí 13.000 Kč a záloha na služby 4.000 Kč(plyn, voda a ostatní služby související s provozem bytu).

V místě je dobrá občanská vybavenost Základní i Mateřská školka, obchod. Nedaleko domu je autobusová zastávka.


V případě zajmu mě kontaktujte. Byt nabízí přímo vlastník, není zde žádná provize RK.

Parametry bytu

Cena
13 000 Kč /za měsíc
Aktualizováno
12. 10. 2025
Adresa
Prostřední Lánov
Stavba
Cihlová
Stav objektu
Velmi dobrý
Patro
3.
Vlastnictví
Osobní
Užitná plocha
60 m2
Sklep
Parkování

Kontaktovat makléře

Realitní kancelář

ABM REAL

V Korytech 3234/18a, Praha

Chystáte se prodat nemovitost?
Pomůžeme Vám!

Máte zájem o tento byt?

Tímto, v souladu s nařízením Evropského parlamentu a Rady (EU) 2016/679, v platném znění, prohlašuji, že mi je alespoň 16 let a uděluji tak svůj souhlas se zpracováním zadaných údajů (jméno, telefon, e-mail, ip adresa) společnosti B3 Technology, s.r.o., IČ: 07330600, se sídlem Novostavby 126/23, 435 11 Lom (správce dat), za účelem předání dotazu z tohoto formuláře Vámi vybranému inzerentovi a zpětného kontaktování mé osoby. Osobní údaje bude správce zpracovávat manuálně i automaticky přímo prostřednictvím svých zaměstnanců. Informace předané tímto formulářem budou uloženy v databázi správce maximálně po dobu 10 let. Odvolání souhlasu s uložením a zpracováním poskytnutých dat lze e-mailem na info@videobydleni.cz. V případě podezření na neoprávněné použití Vámi poskytnutých údajů máte právo předat podnět k šetření Úřadu pro ochranu osobních údajů. Více informací
Chystáte se prodat nemovitost?
Pomůžeme Vám!

Inzerát si prohlédlo 2 lidí

Prodejce

Blanka Kubová

Blanka Kubová

Hlídací pes

Chcete dostávat emailem podobné nabídky pronájmu bytů 2+kk v Lánově?

Podobné nemovitosti


Nevyhovuje Vám typ bytu? Podívejte se na jiné kategorie bytů.


Vybrané články z našeho blogu