Prodej bytu 2+kk, Praha - Holešovice, V závětří, 49 m2

V závětří, Praha 7

Cena na vyžádání /za nemovitost Získejte výhodnou HYPOTÉKU

(+popl. 4177, Cena včetně provize a právního servisu Prodávající si vyhrazuje právo vybrat kupujícího na základě)

Prémioví partneři v Praze 7

Stěhovací služby

Výkup a prodej starého nábytku

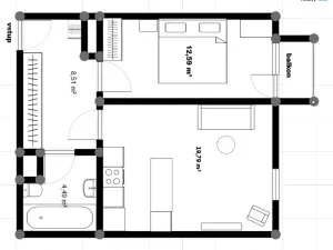
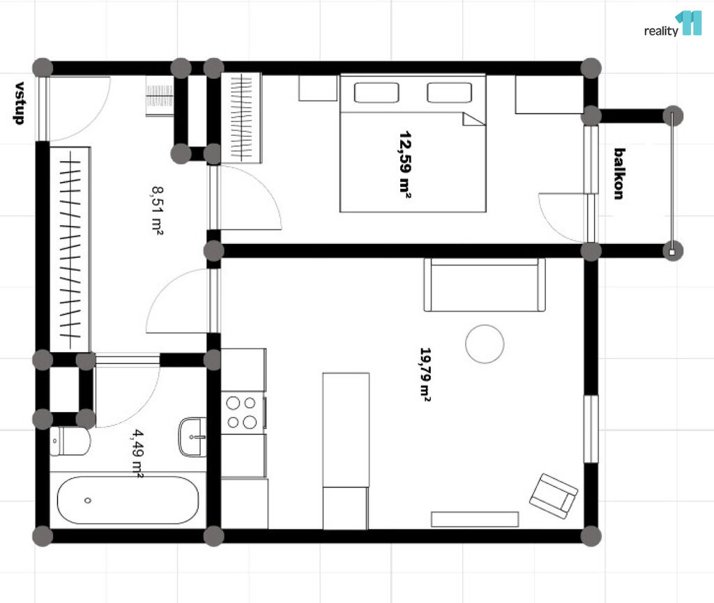
Informace k bytu

Exkluzivně nabízím ke koupi stylový dvoupokojový byt o výměře 49 m², který se nachází v 6. podlaží z celkových 8 v revitalizovaném panelovém domě s výtahem. Dům prošel kompletní rekonstrukcí v roce 2021, je zateplený a ve velmi dobrém technickém stavu. Lokalita nabízí výbornou dostupnost centra a zároveň blízkost zeleně – jen pár minut chůze od Královské obory Stromovka, stanice metra C Nádraží Holešovice i tramvajových zastávek. Velkým bonusem je také velmi dostupné parkování v okolí.

Byt je dispozičně řešen jako 2kk a působí světlým, moderním a velmi praktickým dojmem. Už při vstupu vás přivítá prostorná předsíň s vestavěnými skříněmi na míru, které poskytují dostatek úložných prostor a podtrhují čistý, uspořádaný charakter interiéru. Z předsíně je přímý vstup do koupelny s WC, vybavené vanou, umyvadlem a šikovně řešeným koutem pro pračku a sušičku.

Dominantou bytu je obývací pokoj s kuchyňským koutem v otevřené dispozici, který působí vzdušně a příjemně. Minimalistický interiér podtrhuje elegantní a nadčasový design kuchyňské linky s vestavěnými spotřebiči. Prostor je ideální jak pro každodenní život, tak pro setkávání s přáteli.

Samostatná ložnice nabízí klid pro odpočinek a zároveň přímý vstup na menší balkónek, který je ideální pro ranní kávu nebo drobné posezení. Byt je vybaven plastovými okny, kvalitními vinylovými podlahami a množstvím úložných prostor. Vestavěné skříně v chodbě byly realizovány v roce 2022.

Dispozice a výměry:
– předsíň: 8,51 m²
– obývací pokoj s kuchyní: 19,79 m²
– ložnice: 12,59 m²
– koupelna s WC: 4,49 m²
– sklepní kóje: 2,83 m²

Holešovice prošly v posledních letech dynamickým rozvojem a patří dnes mezi nejatraktivnější pražské lokality. Vynikají skvělou dostupností centra, bohatou občanskou vybaveností a širokými možnostmi volnočasového vyžití. Stromovka v docházkové vzdálenosti nabízí prostor pro sport, relaxaci i společenské aktivity. V okolí se nachází školy, školky, galerie, divadla, moderní kavárny, vyhlášené restaurace i designové obchody.

Dopravní dostupnost:
Metro C – Nádraží Holešovice: 250 m
Tramvaje: 350 m Nádraží Holešovice (linky 5, 12, 14, 15, 17, 54), 400 m Ortenovo náměstí
Autobusy: 110 m Jankovcova, 300 m Nádraží Holešovice
Železnice: 180 m Praha-Holešovice, 700 m Praha-Holešovice-zastávka

S financováním vám pomůže náš certifikovaný hypoteční specialista a kompletní právní servis zajišťuje renomovaná advokátní kancelář.

Nenechte si ujít tuto skvělou příležitost a staňte se majitelem krásného bytu v jedné z nejžádanějších pražských lokalit. Kontaktujte mě pro více informací a domluvte si prohlídku – tato nemovitost určitě stojí za váš zájem. Ev. číslo: 27824.

Parametry bytu

Cena
Cena na vyžádání Spočítat hypotéku
Poznámka k ceně
+popl. 4177, Cena včetně provize a právního servisu Prodávající si vyhrazuje právo vybrat kupujícího na základě
Aktualizováno
22. 1. 2026
Adresa
V závětří, Praha 7
ID
27824
Stavba
Cihlová
Stav objektu
Velmi dobrý
Patro
6. z 8
Vlastnictví
Osobní
Užitná plocha
49 m2
Podlahová plocha
49 m2
Třída energetické náročnosti
D - Méně úsporná
Topení
Lokální plynové
Balkon
Sklep

Kontaktovat makléře

Realitní kancelář

Logo Reality 11

Reality 11

Svornosti 985/8, Praha

Chystáte se prodat nemovitost?
Pomůžeme Vám!

Máte zájem o tento byt?

Tímto, v souladu s nařízením Evropského parlamentu a Rady (EU) 2016/679, v platném znění, prohlašuji, že mi je alespoň 16 let a uděluji tak svůj souhlas se zpracováním zadaných údajů (jméno, telefon, e-mail, ip adresa) společnosti B3 Technology, s.r.o., IČ: 07330600, se sídlem Novostavby 126/23, 435 11 Lom (správce dat), za účelem předání dotazu z tohoto formuláře Vámi vybranému inzerentovi a zpětného kontaktování mé osoby. Osobní údaje bude správce zpracovávat manuálně i automaticky přímo prostřednictvím svých zaměstnanců. Informace předané tímto formulářem budou uloženy v databázi správce maximálně po dobu 10 let. Odvolání souhlasu s uložením a zpracováním poskytnutých dat lze e-mailem na info@videobydleni.cz. V případě podezření na neoprávněné použití Vámi poskytnutých údajů máte právo předat podnět k šetření Úřadu pro ochranu osobních údajů. Více informací
Chystáte se prodat nemovitost?
Pomůžeme Vám!

Inzerát si prohlédlo 75 lidí

Prodejce

Aneta Krüger

Aneta Krüger

Hlídací pes

Chcete dostávat emailem podobné nabídky prodeje bytů 2+kk v Praze 7?

Podobné nemovitosti


Nevyhovuje Vám typ bytu? Podívejte se na jiné kategorie bytů.


Vybrané články z našeho blogu