Prodej bytu 3+1, Hostouň, 95 m2 (ID: 4067862)

Hostouň

6 890 000 Kč /za nemovitost HYPOTÉKA od 30 794 Kč /za měsíc
Prémioví partneři v Hostouni

Informace k bytu

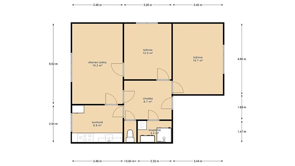
Nabízím k prodeji bytovou jednotku o podlahové ploše 70 m2 v cihlovém domě na velice klidném místě v obci Hostouň u Prahy.

Byt se nachází v prvním patře bytového domu s pouze čtyřmi bytovými jednotkami a prošel kompletní rekonstrukcí. Má nová plastová okna, omítky, interiérové dveře, kuchyňskou linku, koupelnu se sprchovým koutem. Dispozice sestává z velkého obývacího pokoje o výměře 19 m2, kuchyně o výměře 9 m2, dvou ložnic (13 m2, 17 m2), chodby s velkou vestavěnou skříní 9 m2, koupelny 3,5 m2 a toalety se samotným vstupem. V chodbě je umístěn nový elektrokotel, který vytápí byt.
K jednotce náleží dva velké sklepy (12 m2 a 13 m2). Na patře je velká lodžie společná pro dva byty.

Pozemek pod domem je aktuálně v pronájmu, odkup do osobního vlastnictví je v řešení. Financování lze řešit hypotečním úvěrem.

V obci Hostouň je základní občanská vybavenost a skvělý dojezd do hlavního města, mateřská školka je přímo pod okny. Pozemek kolem domu se vzrostlými stromy je užíván vlastníky. Je zde možnost venkovního posezení, zahrádky i pohodlného parkování.

V případě dalších dotazů mě neváhejte kontaktovat.

Parametry bytu

Cena
6 890 000 Kč /za nemovitost Spočítat hypotéku
Aktualizováno
8. 10. 2025
Adresa
Hostouň
ID
442522
Stavba
Cihlová
Stav objektu
Velmi dobrý
Patro
2. z 2
Vlastnictví
Osobní
Užitná plocha
95 m2
Podlahová plocha
70 m2
Třída energetické náročnosti
G - Mimořádně nehospodárná
Odpad
Veřejná kanalizace
Topení
Ústřední elektrické
Komunikace
Asfaltová
Topné těleso
Radiátory
Zdroj topení
Elektrokotel
Sklep
Bezbarierový přístup

Kontaktovat makléře

Máte zájem o tento byt?

Tímto, v souladu s nařízením Evropského parlamentu a Rady (EU) 2016/679, v platném znění, prohlašuji, že mi je alespoň 16 let a uděluji tak svůj souhlas se zpracováním zadaných údajů (jméno, telefon, e-mail, ip adresa) společnosti B3 Technology, s.r.o., IČ: 07330600, se sídlem Novostavby 126/23, 435 11 Lom (správce dat), za účelem předání dotazu z tohoto formuláře Vámi vybranému inzerentovi a zpětného kontaktování mé osoby. Osobní údaje bude správce zpracovávat manuálně i automaticky přímo prostřednictvím svých zaměstnanců. Informace předané tímto formulářem budou uloženy v databázi správce maximálně po dobu 10 let. Odvolání souhlasu s uložením a zpracováním poskytnutých dat lze e-mailem na info@videobydleni.cz. V případě podezření na neoprávněné použití Vámi poskytnutých údajů máte právo předat podnět k šetření Úřadu pro ochranu osobních údajů. Více informací
Chystáte se prodat nemovitost?
Pomůžeme Vám!

Inzerát si prohlédlo 4 lidí

Prodejce

Andrea Hlinková

Andrea Hlinková

Hlídací pes

Chcete dostávat emailem podobné nabídky prodeje bytů 3+1 v Hostouni (okr. Kladno)?

Top nabídky

Podobné nemovitosti


Nevyhovuje Vám typ bytu? Podívejte se na jiné kategorie bytů.


Vybrané články z našeho blogu