Pronájem bytu 3+1, Praha - Nové Město, Na Poříčí, 92 m2

Na Poříčí, Praha, Nové Město

35 900 Kč /za měsíc Získejte výhodnou HYPOTÉKU

(+ poplatky na osobu/měsíc: 1650 Kč + převod na nájemce: elektřina + plyn + internet)

Prémioví partneři v Praze 1

Stěhovací služby

Výkup a prodej starého nábytku

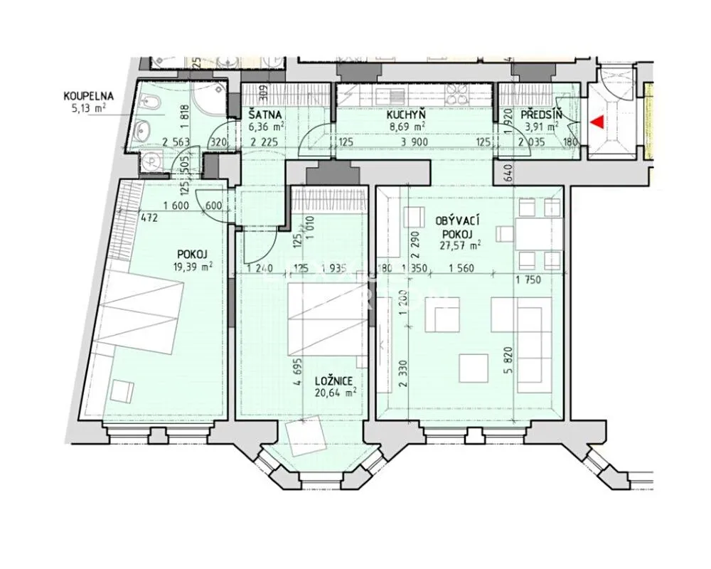
Informace k bytu

Prostorný byt 3+1 k pronájmu se nachází ve 2. patře nově zrekonstruované rezidenční budovy s výtahem a čipovým přístupovým systémem nacházející se v atraktivní lokalitě Praha 1 - Nové Město. Bytový komplex nabízí vysoký standard a atraktivní lokalita zajišťuje veškerou občanskou vybavenost a skvělou dopravní dostupnost.


Byt se skládá ze vstupní chodby, samostatné kuchyně, obývacího pokoje, 2 ložnic a koupelna se sprchou.


Byt je nezařízený a součástí vybavení jsou vestavěné skříně a plně vybavený kuchyňský kout.


Zrekonstruovaná rezidenční budova se nachází v atraktivní části Prahy 1 - Nové Město. Lokalita Nového Města je známá pro svou nezaměnitelnou atmosféru, pohodlné bydlení v centru jen pár kroků od stanice metra B a zastávky tramvaje Náměstí Republiky. Z Hlavního nádraží (10 min.) je zajištěno přímé spojení na letiště Václava Havla. Přímo v ulici Na Poříčí se nachází lokální obchody, květinářství a nespočet restaurací a kaváren. V bezprostřední blízkosti se nachází i obchodní centrum Palladium.




Výše měsíčních poplatků činí 1.650 Kč na osobu + převod elektřiny a plynu. 


Poptávající klient je srozuměn s úhradou provize ve výši 1 měsíčního nájmu plus DPH.


Nabízíme Vám videoprohlídku této nemovitosti z pohodlí Vašeho domova v reálném čase přes Messenger, WhatsApp a další komunikační platformy.

Parametry bytu

Cena
35 900 Kč /za měsíc
Poznámka k ceně
+ poplatky na osobu/měsíc: 1650 Kč + převod na nájemce: elektřina + plyn + internet
Aktualizováno
1. 12. 2025
Adresa
Na Poříčí, Praha, Nové Město
ID
522938
Stavba
Cihlová
Stav objektu
Velmi dobrý
Patro
3. z 5
Vybaveno
Ne
Vlastnictví
Osobní
Užitná plocha
92 m2
Třída energetické náročnosti
G - Mimořádně nehospodárná
Výtah

Kontaktovat makléře

Realitní kancelář

LEXXUS, a.s.

Na Poříčí 2090/2, Praha, Nové Město

Chystáte se prodat nemovitost?
Pomůžeme Vám!

Máte zájem o tento byt?

Tímto, v souladu s nařízením Evropského parlamentu a Rady (EU) 2016/679, v platném znění, prohlašuji, že mi je alespoň 16 let a uděluji tak svůj souhlas se zpracováním zadaných údajů (jméno, telefon, e-mail, ip adresa) společnosti B3 Technology, s.r.o., IČ: 07330600, se sídlem Novostavby 126/23, 435 11 Lom (správce dat), za účelem předání dotazu z tohoto formuláře Vámi vybranému inzerentovi a zpětného kontaktování mé osoby. Osobní údaje bude správce zpracovávat manuálně i automaticky přímo prostřednictvím svých zaměstnanců. Informace předané tímto formulářem budou uloženy v databázi správce maximálně po dobu 10 let. Odvolání souhlasu s uložením a zpracováním poskytnutých dat lze e-mailem na info@videobydleni.cz. V případě podezření na neoprávněné použití Vámi poskytnutých údajů máte právo předat podnět k šetření Úřadu pro ochranu osobních údajů. Více informací
Chystáte se prodat nemovitost?
Pomůžeme Vám!

Inzerát si prohlédlo 15 lidí

Prodejce

Adéla Bukovská - recepce

Adéla Bukovská - recepce

Hlídací pes

Chcete dostávat emailem podobné nabídky pronájmu bytů 3+1 v Praze 1?

Podobné nemovitosti


Nevyhovuje Vám typ bytu? Podívejte se na jiné kategorie bytů.


Vybrané články z našeho blogu