Prodej bytu 3+1, Hradec Králové - Pražské Předměstí, Hrubínova, 75 m2 (ID: 4068974)

Hrubínova, Hradec Králové, Pražské Předměstí

5 290 000 Kč /za nemovitost HYPOTÉKA od 23 643 Kč /za měsíc
Prémioví partneři v Hradci Králové

Informace k bytu

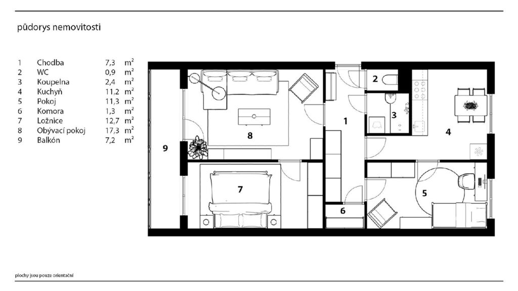
Rádi vám nabídneme k prodeji byt 3 + 1 o rozloze 75 m² s opravdu prostornou lodžií 7 m2, situovaný v atraktivní lokalitě na adrese Hrubínova, v části obce Pražské Předměstí, Hradec Králové. Byt se nachází v 1.NP panelového domu, který má celkem 13 podlaží. Původní stav bytu vám umožňuje vše si vytvořit dle vlastních představ.
K dispozici je také sklep s plochou 3 m², což poskytuje dodatečný prostor pro uskladnění věcí. Vytápění je zajištěno centrálním dálkovým ohřevem.
Pro pohodlný přístup k bytům slouží výtah.
Byt je v osobním vlastnictví.
Dům prošel v r. 2004 generální opravou střechy, v r. 2008 - výměna všech oken za plastová, v r. 2010 - GO výtahů, r. 2011 - oprava střešních nástaveb, r. 2015 - zateplení štítů + oprava fasády, r. 2022 - rekonstrukce el. rozvodů ve společných prostorách.
Okolní infrastruktura nabízí veškeré potřebné zázemí pro komfortní život. Přímo naproti domu se nachází mateřská školka a park. Blízkost občanské vybavenosti, obchodů, škol, lékařů, i nedaleký vjezd na dálnici D11, přidává na atraktivitě této lokality. U domu je dostatek možností k parkování.
Nabízený byt představuje skvělou příležitost pro život v Hradci Králové.
Jedná se o bezpečnou a čistou lokalitu.
V případě zájmu o prohlídku nás neváhejte kontaktovat.

Parametry bytu

Cena
5 290 000 Kč /za nemovitost Spočítat hypotéku
Aktualizováno
7. 10. 2025
Adresa
Hrubínova, Hradec Králové, Pražské Předměstí
ID
17576
Stavba
Panelová
Stav objektu
Dobrý
Patro
1. z 13
Vybaveno
Ne
Lokalita objektu
Klidná část obce
Vlastnictví
Osobní
Užitná plocha
75 m2
Třída energetické náročnosti
C - Úsporná
Plyn
Plynovod
Odpad
Veřejná kanalizace
Komunikace
Asfaltová
Voda
Vodovod
Sklep
Lodžie
Výtah

Kontaktovat makléře

Realitní kancelář

Logo QARA, s.r.o.

QARA, s.r.o.

Šafaříkova 201/17, Praha

Chystáte se prodat nemovitost?
Pomůžeme Vám!

Máte zájem o tento byt?

Tímto, v souladu s nařízením Evropského parlamentu a Rady (EU) 2016/679, v platném znění, prohlašuji, že mi je alespoň 16 let a uděluji tak svůj souhlas se zpracováním zadaných údajů (jméno, telefon, e-mail, ip adresa) společnosti B3 Technology, s.r.o., IČ: 07330600, se sídlem Novostavby 126/23, 435 11 Lom (správce dat), za účelem předání dotazu z tohoto formuláře Vámi vybranému inzerentovi a zpětného kontaktování mé osoby. Osobní údaje bude správce zpracovávat manuálně i automaticky přímo prostřednictvím svých zaměstnanců. Informace předané tímto formulářem budou uloženy v databázi správce maximálně po dobu 10 let. Odvolání souhlasu s uložením a zpracováním poskytnutých dat lze e-mailem na info@videobydleni.cz. V případě podezření na neoprávněné použití Vámi poskytnutých údajů máte právo předat podnět k šetření Úřadu pro ochranu osobních údajů. Více informací
Chystáte se prodat nemovitost?
Pomůžeme Vám!

Inzerát si prohlédlo 1 lidí

Prodejce

Jana Štěpánová

Jana Štěpánová

Hlídací pes

Chcete dostávat emailem podobné nabídky prodeje bytů 3+1 v Hradci Králové?

Podobné nemovitosti


Nevyhovuje Vám typ bytu? Podívejte se na jiné kategorie bytů.


Vybrané články z našeho blogu