Pronájem výrobních prostor, Bílovice nad Svitavou, Obřanská, 249 m2

Obřanská, Bílovice nad Svitavou

Cena na vyžádání /za měsíc Získejte výhodnou HYPOTÉKU
Prémioví partneři v Bílovicích nad Svitavou

Informace k nemovitosti

Hledáte kvalitní výrobní a kancelářské prostory pro své podnikání na okraji Brna?

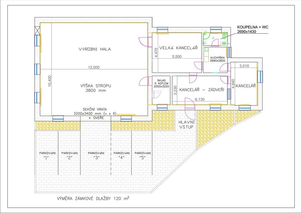
Nabízíme nově po kompletní rekonstrukci výrobní halu se 3 kancelářemi, kuchyňkou a koupelnou (celkem 249 m2), zámkovou dlažbou s parkovací a obslužnou plochou 120 m2. Nemovitost je vhodná jako sídlo nebo pobočka firmy.

Nemovitost je součástí průmyslového areálu na okraji Brna směrem na Bílovice nad Svitavou. Celý areál je monitorovaný kamerovým systémem se záznamem. Areál je oplocený, vstup přes bránu ovládanou GSM systémem s přístupem 24/7.

Vybavení:
- kuchyňská linka se spotřebiči (myčka, lednice, mikrovlnka)
- koupelna se sprchovým koutem + WC
- zabezpečovací systém Jablotron
- plastová okna opatřená bezpečnostním sklem connex
- žaluzie
- elektroinstalace - zásuvky 230/400 V
- sekční vrata s integrovanými vstupními dveřmi - otevíratelná klíčem nebo GSM modulem
- plynulý nájezd pro paletový a vysokozdvižný vozík

V případě, že Vás naše nabídka oslovila, budeme velice rádi za Váš kontakt.

Parametry nemovitosti

Cena
Cena na vyžádání
Aktualizováno
4. 12. 2025
Adresa
Obřanská, Bílovice nad Svitavou
Stavba
Cihlová
Stav objektu
Po rekonstrukci
Užitná plocha
249 m2
Elektřina
230V, 400V
Odpad
Septik
Komunikace
Asfaltová, Zpevněná
Doprava
Vlak, Silnice, MHD, Autobus
Voda
Vodovod
Topné těleso
Radiátory
Zdroj topení
Elektrokotel
Zdroj teplé vody
Bojler - elektro
Výtah
Parkování

Kontaktovat makléře

Máte zájem o tuto nemovistost?

Tímto, v souladu s nařízením Evropského parlamentu a Rady (EU) 2016/679, v platném znění, prohlašuji, že mi je alespoň 16 let a uděluji tak svůj souhlas se zpracováním zadaných údajů (jméno, telefon, e-mail, ip adresa) společnosti B3 Technology, s.r.o., IČ: 07330600, se sídlem Novostavby 126/23, 435 11 Lom (správce dat), za účelem předání dotazu z tohoto formuláře Vámi vybranému inzerentovi a zpětného kontaktování mé osoby. Osobní údaje bude správce zpracovávat manuálně i automaticky přímo prostřednictvím svých zaměstnanců. Informace předané tímto formulářem budou uloženy v databázi správce maximálně po dobu 10 let. Odvolání souhlasu s uložením a zpracováním poskytnutých dat lze e-mailem na info@videobydleni.cz. V případě podezření na neoprávněné použití Vámi poskytnutých údajů máte právo předat podnět k šetření Úřadu pro ochranu osobních údajů. Více informací
Chystáte se prodat nemovitost?
Pomůžeme Vám!

Inzerát si prohlédlo 7 lidí

Prodejce

Ing. Iveta Kučerová

Ing. Iveta Kučerová

Hlídací pes

Chcete dostávat emailem podobné nabídky pronájmu výrobních prostor v Bílovicích nad Svitavou?

Podobné nemovitosti


Nevyhovuje Vám typ nemovitosti? Podívejte se na jiné kategorie komerčních.


Vybrané články z našeho blogu