Prodej rodinného domu, Hodonín, 154 m2

Hodonín

2 990 000 Kč /za nemovitost HYPOTÉKA od 13 363 Kč /za měsíc
Prémioví partneři v Hodoníně

Informace k domu

Nabízíme k prodeji rodinný dům v obci Hodonín u Kunštátu, vhodný pro rekreační pobyt i trvalé bydlení. Dům z roku 1979 má užitnou plochu 154 m² včetně garáže o výměře 15 m² a je napojen na obecní vodovod i kanalizaci. Vytápění a ohřev teplé vody zajišťuje plynový kotel.

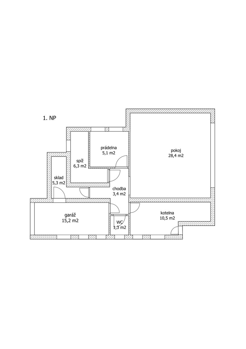
Dispozice 1. nadzemního podlaží zahrnuje sklad, garáž, chodbu, samostatné WC, kotelnu, prádelnu a velký obytný pokoj s krbem a francouzským oknem se vstupem na zahradu. Ve 2. nadzemním podlaží se nachází zádveří, předsíň, šatna, koupelna s WC, ložnice a obývací pokoj s kuchyňským koutem a vstupem na prostornou terasu s krbem a výhledem do zahrady; součástí je také balkon.

Stav domu je převážně původní, spodní část stavby je zděná a horní podlaží tvoří dřevostavba. Terasa domu je nově izolována a má ideální, jihozápadní orientaci. Střešní krytina i oplechování jsou v dobrém technickém stavu. Na pozemku je udržovaná zahrada, která poskytuje soukromí a klidné zázemí.

Lokalita v Jihomoravském kraji, mezi Blanskem a Novým Městem na Moravě a severně od Brna, nabízí kvalitní zázemí pro odpočinek i celoroční pobyt. V obci se nachází zimní středisko SKI Areál Hodonín s možností lyžování, okolí tvoří rozmanitá příroda vhodná pro pěší turistiku a cyklistiku. Tiché prostředí, dobrá dostupnost do blízkých měst a pestré volnočasové možnosti dělají z této nemovitosti zajímavou příležitost pro zájemce, kteří hledají dům s potenciálem modernizace ve vyhledávané rekreační oblasti.

Pro více informací či sjednání prohlídky nás prosím kontaktujte.

Parametry domu

Cena
2 990 000 Kč /za nemovitost Spočítat hypotéku
Aktualizováno
9. 10. 2025
Adresa
Hodonín
ID
17568
Stavba
Smíšená
Stav objektu
Velmi dobrý
Typ objektu
Patrový
Druh objektu
Řadový
Užitná plocha
154 m2
Zastavěná plocha
108 m2
Plocha pozemku
846 m2
Třída energetické náročnosti
G - Mimořádně nehospodárná
Elektřina
230V
Odpad
Jímka
Komunikace
Asfaltová
Voda
Vodovod
Garáž
Převod do OV

Kontaktovat makléře

Realitní kancelář

Logo QARA, s.r.o.

QARA, s.r.o.

Šafaříkova 201/17, Praha

Chystáte se prodat nemovitost?
Pomůžeme Vám!

Máte zájem o tento dům?

Tímto, v souladu s nařízením Evropského parlamentu a Rady (EU) 2016/679, v platném znění, prohlašuji, že mi je alespoň 16 let a uděluji tak svůj souhlas se zpracováním zadaných údajů (jméno, telefon, e-mail, ip adresa) společnosti B3 Technology, s.r.o., IČ: 07330600, se sídlem Novostavby 126/23, 435 11 Lom (správce dat), za účelem předání dotazu z tohoto formuláře Vámi vybranému inzerentovi a zpětného kontaktování mé osoby. Osobní údaje bude správce zpracovávat manuálně i automaticky přímo prostřednictvím svých zaměstnanců. Informace předané tímto formulářem budou uloženy v databázi správce maximálně po dobu 10 let. Odvolání souhlasu s uložením a zpracováním poskytnutých dat lze e-mailem na info@videobydleni.cz. V případě podezření na neoprávněné použití Vámi poskytnutých údajů máte právo předat podnět k šetření Úřadu pro ochranu osobních údajů. Více informací
Chystáte se prodat nemovitost?
Pomůžeme Vám!

Inzerát si prohlédlo 2 lidí

Prodejce

Ing. Marek Kotík

Ing. Marek Kotík

Hlídací pes

Chcete dostávat emailem podobné nabídky prodeje rodinných domů v Hodoníně (okr. Blansko)?

Podobné nemovitosti


Nevyhovuje Vám typ domu? Podívejte se na jiné kategorie domů.


Vybrané články z našeho blogu