Prodej bytu 2+kk, Říčany, Rooseveltova, 39 m2

Rooseveltova, Říčany

3 900 000 Kč /za nemovitost HYPOTÉKA od 17 431 Kč /za měsíc
Prémioví partneři v Říčanech

Informace k bytu

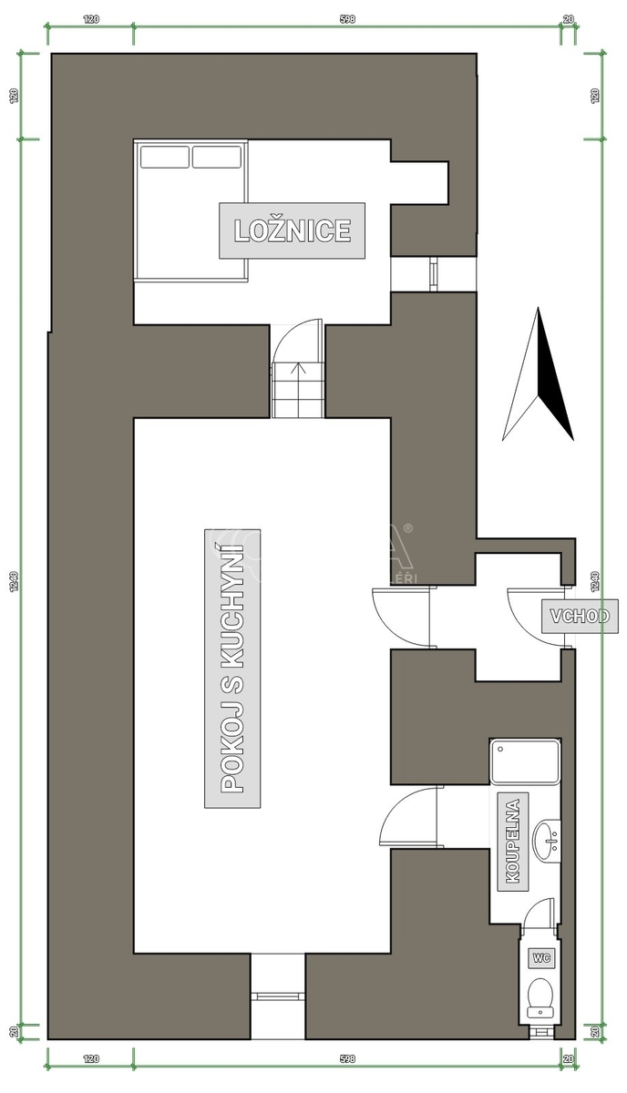
Byt se nachází v přízemí bytového domu s přímým vstupem na uzavřený dvorek. Obývací pokoj s kuchyňským koutem nabízí dostatek prostoru. Na něj navazuje koupelna se sprchovým koutem a toaletou. Po několika schůdkách přejdete do samostatné ložnice.
Vytápění je zajištěno klimatizací, voda je městská, obecní kanalizace.
Byt může být zajímavou investicí.

Parametry bytu

Cena
3 900 000 Kč /za nemovitost Spočítat hypotéku
Aktualizováno
9. 10. 2025
Adresa
Rooseveltova, Říčany
ID
17516
Stavba
Smíšená
Stav objektu
Před rekonstrukcí
Patro
1. z 4
Vybaveno
Částečně
Lokalita objektu
Centrum obce
Vlastnictví
Osobní
Užitná plocha
39 m2
Zastavěná plocha
154 m2
Podlahová plocha
39 m2
Třída energetické náročnosti
G - Mimořádně nehospodárná
Elektřina
230V
Plyn
Plynovod
Odpad
Veřejná kanalizace
Komunikace
Asfaltová
Doprava
Vlak, Dálnice, Silnice, Autobus
Voda
Vodovod

Kontaktovat makléře

Realitní kancelář

Logo QARA, s.r.o.

QARA, s.r.o.

Šafaříkova 201/17, Praha

Chystáte se prodat nemovitost?
Pomůžeme Vám!

Máte zájem o tento byt?

Tímto, v souladu s nařízením Evropského parlamentu a Rady (EU) 2016/679, v platném znění, prohlašuji, že mi je alespoň 16 let a uděluji tak svůj souhlas se zpracováním zadaných údajů (jméno, telefon, e-mail, ip adresa) společnosti B3 Technology, s.r.o., IČ: 07330600, se sídlem Novostavby 126/23, 435 11 Lom (správce dat), za účelem předání dotazu z tohoto formuláře Vámi vybranému inzerentovi a zpětného kontaktování mé osoby. Osobní údaje bude správce zpracovávat manuálně i automaticky přímo prostřednictvím svých zaměstnanců. Informace předané tímto formulářem budou uloženy v databázi správce maximálně po dobu 10 let. Odvolání souhlasu s uložením a zpracováním poskytnutých dat lze e-mailem na info@videobydleni.cz. V případě podezření na neoprávněné použití Vámi poskytnutých údajů máte právo předat podnět k šetření Úřadu pro ochranu osobních údajů. Více informací
Chystáte se prodat nemovitost?
Pomůžeme Vám!

Inzerát si prohlédlo 2 lidí

Prodejce

Rostislav Čermák

Rostislav Čermák

Hlídací pes

Chcete dostávat emailem podobné nabídky prodeje bytů 2+kk v Říčanech (okr. Praha-východ)?

Podobné nemovitosti


Nevyhovuje Vám typ bytu? Podívejte se na jiné kategorie bytů.


Vybrané články z našeho blogu