Hakenova, Poděbrady III
Dobrý den.
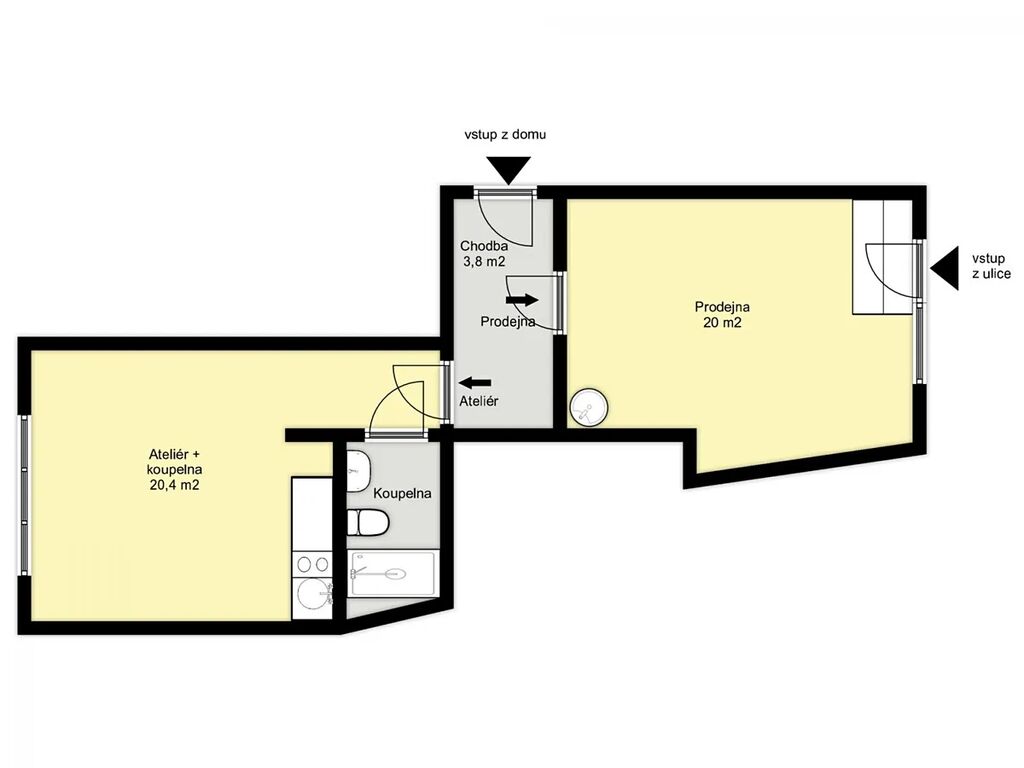
Nabízím Vám nové komerční prostory o velikosti 53 m2 na adrese Hakenova 722, Poděbrady.
Jedná s o prostory v těsné blízkosti kolonády, které byly navrženy tak, aby měly co nejširší možnost využití.
Mohou zde být kanceláře, prodejna a vzhledem k tomu, že je zde příprava na vodu a odpady, tak i kadeřnický salón.
Prostor se skládá ze dvou samostatných místností a každá z nich má své sociální zázemí a dokonce i samostatné měření elektřiny a vody.
Proto je možné tyto prostory využívat i samostatně.
Je zde plnohodnotná kuchyňská linka, sprchový kout, 2x wc a úložné prostory.
Výloha do ul. Hakenova je opatřena roletou a vstupní dveře jsou chráněny uzamykatelnou mříží.
Měsíční nájem činí 16.125 Kč a při podpisu nájemní smlouvy se skládá vratná kauce 30.000 Kč.
Máte zájem o tuto nemovistost?
Inzerát si prohlédlo 4 lidí
Petr Šmíd
Chcete dostávat emailem podobné nabídky pronájmu obchodních prostor v Poděbradech?