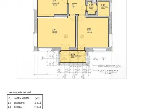
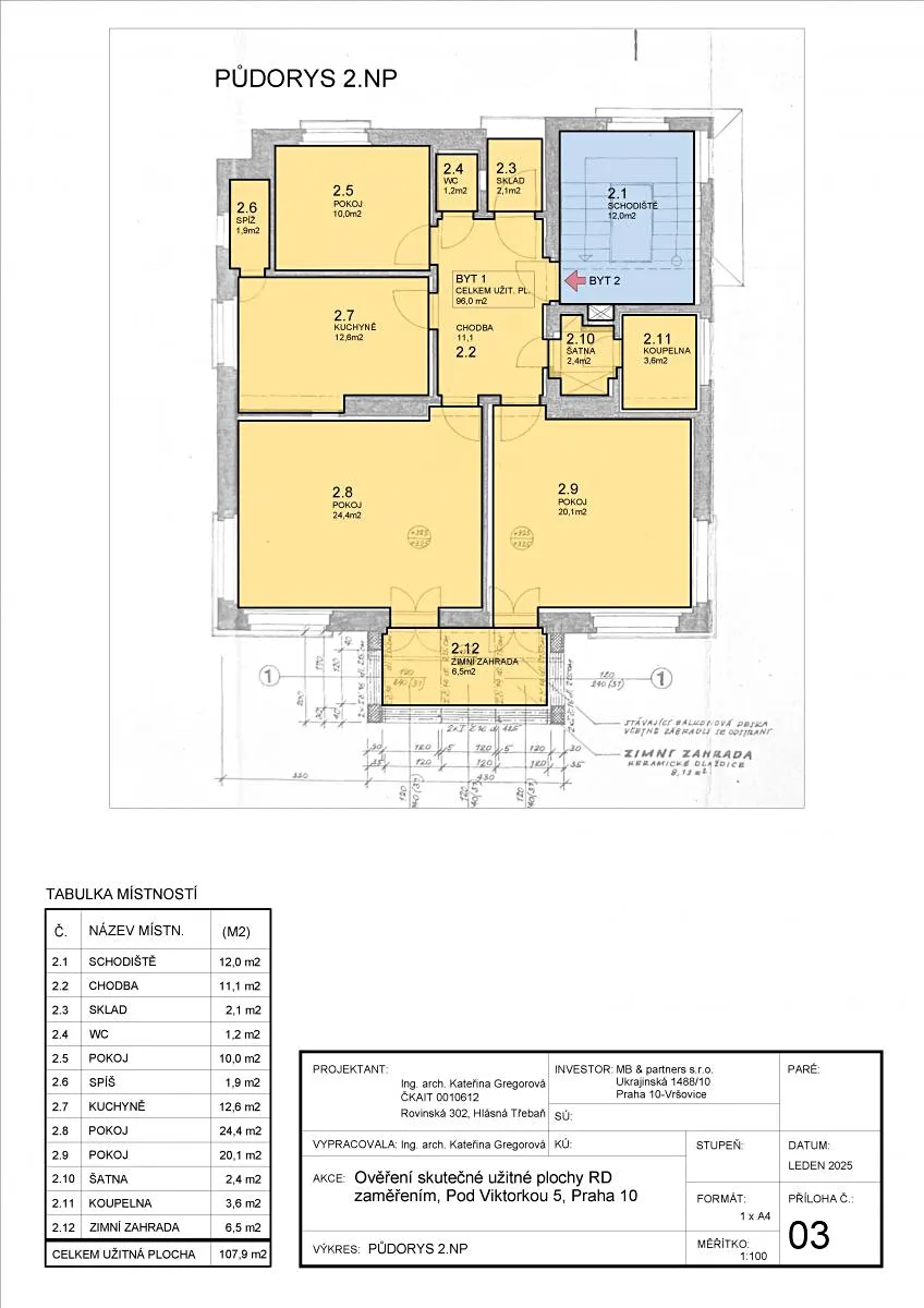
Pronájem bytu 3+1, Praha - Strašnice, Pod Viktorkou, 96 m2

Pod Viktorkou, Praha, Strašnice

30 000 Kč /za měsíc Získejte výhodnou HYPOTÉKU
Prémioví partneři v Praze 10

Stěhovací služby

Výkup a prodej starého nábytku

Informace k bytu

Nabízíme k pronájmu byt ve vile o dispozici 3+1 o celkové ploše 96 m2 včetně zimní zahrady (7m2) v atraktivní rezidenční lokalitě přímo u parku na Třebešíně, ul. Pod Viktorkou, Praha 10 Strašnice. Unikátní příležitost pro bydlení v žádané lokalitě, na metro and #39;A and #39; Želivského 12 min pěšky, či 6 min jednu stanici BUS z 250m vzdálené stanice Pod Třebešínem. (Jezdí každých 15 minut).
Prostor nabízí 3 neprůchozí pokoje, velkou vstupní chodbu, 2 komory, koupelnu s vanou a WC samostatné. Kuchyňská linka vybavena spotřebiči - plynovou varnou deskou, troubou, myčkou a lednicí s mrazákem. Kuchyňská linka vybavena spotřebiči - plynovou varnou deskou, troubou, myčkou a lednicí s mrazákem. V dobrém technickém stavu, lze vymalovat podle svého a uzpůsobit vlastním představám. Na podlahách mix: parkety, plovoucí lamino, keramická dlažba. Okna dřevěná špaletová, některá plastová. Přístup na zahradu lze.
Vytápění ústředním plynovým topením, které je pro celý dům a rozpočítáno podle podlahové plochy, voda též. Elektřinu převedeme na nájemce.
Prosíme zájemce o krátké představení do emailu, děkujeme a těšíme se na společnou prohlídku.


Parametry bytu

Cena
30 000 Kč /za měsíc
Aktualizováno
10. 10. 2025
Adresa
Pod Viktorkou, Praha, Strašnice
ID
85
Stavba
Cihlová
Stav objektu
Velmi dobrý
Patro
2. z 3
Vybaveno
Ne
Vlastnictví
Osobní
Užitná plocha
96 m2
Podlahová plocha
96 m2
Plocha zahrady
387 m2
Odpad
Veřejná kanalizace
Topení
Ústřední plynové
Komunikace
Asfaltová
Doprava
MHD
Voda
Vodovod
Topné těleso
Radiátory
Zdroj topení
Plynový kotel
Lodžie
Bezbarierový přístup

Kontaktovat makléře

Máte zájem o tento byt?

Tímto, v souladu s nařízením Evropského parlamentu a Rady (EU) 2016/679, v platném znění, prohlašuji, že mi je alespoň 16 let a uděluji tak svůj souhlas se zpracováním zadaných údajů (jméno, telefon, e-mail, ip adresa) společnosti B3 Technology, s.r.o., IČ: 07330600, se sídlem Novostavby 126/23, 435 11 Lom (správce dat), za účelem předání dotazu z tohoto formuláře Vámi vybranému inzerentovi a zpětného kontaktování mé osoby. Osobní údaje bude správce zpracovávat manuálně i automaticky přímo prostřednictvím svých zaměstnanců. Informace předané tímto formulářem budou uloženy v databázi správce maximálně po dobu 10 let. Odvolání souhlasu s uložením a zpracováním poskytnutých dat lze e-mailem na info@videobydleni.cz. V případě podezření na neoprávněné použití Vámi poskytnutých údajů máte právo předat podnět k šetření Úřadu pro ochranu osobních údajů. Více informací
Chystáte se prodat nemovitost?
Pomůžeme Vám!

Inzerát si prohlédlo 1 lidí

Prodejce

Martina Běhanová

Martina Běhanová

Hlídací pes

Chcete dostávat emailem podobné nabídky pronájmu bytů 3+1 v Praze 10?

Podobné nemovitosti


Nevyhovuje Vám typ bytu? Podívejte se na jiné kategorie bytů.


Vybrané články z našeho blogu