Pronájem bytu 3+kk, Praha - Vršovice, Holandská, 64 m2

Holandská, Praha, Vršovice

24 000 Kč /za měsíc Získejte výhodnou HYPOTÉKU

(+ záloha na energie a služby 1.000 Kč + elektřina a plyn dle spotřeby, kauce 24.000 Kč, provize RK 24.000 Kč + DPH)

Prémioví partneři v Praze 10

Stěhovací služby

Výkup a prodej starého nábytku

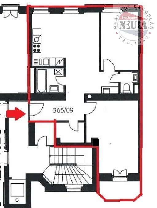
Informace k bytu

Pronájem bytu 3+kk/B, Praha 10 Vršovice, Holandská,

velmi hezký byt s balkonem o celkové výměře 67 m2 (výměra dle podílu uvedeného v katastru nemovitostí) v rohovém zděném domě přímo u Vršovického zámečku a Heroldových sadů, 3. patro s výtahem, čistý udržovaný dům po rekonstrukci,

obývací pokoj s kuchyňským koutem 22,80 m2, ložnice 10,5 a 17 m2, jedna ložnice s balkonem 3,3 m2 je orientována do dvorního traktu (zde na okně vertikální žaluzie), kuchyňská linka se spotřebiči (el. varná deska s troubou, myčka), koupelna s vanou a pračkou, samostatné WC s umyvadlem, komora (šatna), vlastní plynový kotel v bytě, vestavěné skříně v chodbě,

byt je volný cca od 1.11. 2025, prohlídky možné od 15.10. 2025, PENB tř. D,

nájemné + záloha na energie a služby 1.000 Kč + elektřina a plyn dle spotřeby (budou převedeny na nájemce), kauce 24.000 Kč, provize RK 24.000 Kč + DPH

Parametry bytu

Cena
24 000 Kč /za měsíc
Poznámka k ceně
+ záloha na energie a služby 1.000 Kč + elektřina a plyn dle spotřeby, kauce 24.000 Kč, provize RK 24.000 Kč + DPH
Aktualizováno
10. 10. 2025
Adresa
Holandská, Praha, Vršovice
ID
007068
Stavba
Cihlová
Stav objektu
Velmi dobrý
Patro
4. z 5
Vybaveno
Ne
Vlastnictví
Osobní
Užitná plocha
64 m2
Podlahová plocha
67 m2
Třída energetické náročnosti
D - Méně úsporná
Elektřina
230V
Plyn
Plynovod
Odpad
Veřejná kanalizace
Voda
Vodovod
Topné těleso
Kotel na tuhá paliva
Zdroj topení
Plynový kotel
Balkon
Výtah

Kontaktovat makléře

Realitní kancelář

NEURA, s.r.o.

U Písecké brány 255/22, Praha, Hradčany

Chystáte se prodat nemovitost?
Pomůžeme Vám!

Máte zájem o tento byt?

Tímto, v souladu s nařízením Evropského parlamentu a Rady (EU) 2016/679, v platném znění, prohlašuji, že mi je alespoň 16 let a uděluji tak svůj souhlas se zpracováním zadaných údajů (jméno, telefon, e-mail, ip adresa) společnosti B3 Technology, s.r.o., IČ: 07330600, se sídlem Novostavby 126/23, 435 11 Lom (správce dat), za účelem předání dotazu z tohoto formuláře Vámi vybranému inzerentovi a zpětného kontaktování mé osoby. Osobní údaje bude správce zpracovávat manuálně i automaticky přímo prostřednictvím svých zaměstnanců. Informace předané tímto formulářem budou uloženy v databázi správce maximálně po dobu 10 let. Odvolání souhlasu s uložením a zpracováním poskytnutých dat lze e-mailem na info@videobydleni.cz. V případě podezření na neoprávněné použití Vámi poskytnutých údajů máte právo předat podnět k šetření Úřadu pro ochranu osobních údajů. Více informací
Chystáte se prodat nemovitost?
Pomůžeme Vám!

Inzerát si prohlédlo 1 lidí

Prodejce

Karel Kučera

Karel Kučera

Hlídací pes

Chcete dostávat emailem podobné nabídky pronájmu bytů 3+kk v Praze 10?

Podobné nemovitosti


Nevyhovuje Vám typ bytu? Podívejte se na jiné kategorie bytů.


Vybrané články z našeho blogu