Prodej bytu 2+kk, Letovice, Komenského, 57 m2 (ID: 4072233)

Komenského, Letovice

4 650 000 Kč /za nemovitost HYPOTÉKA od 20 783 Kč /za měsíc
Prémioví partneři v Letovicích

Informace k bytu

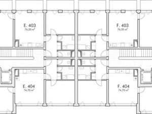
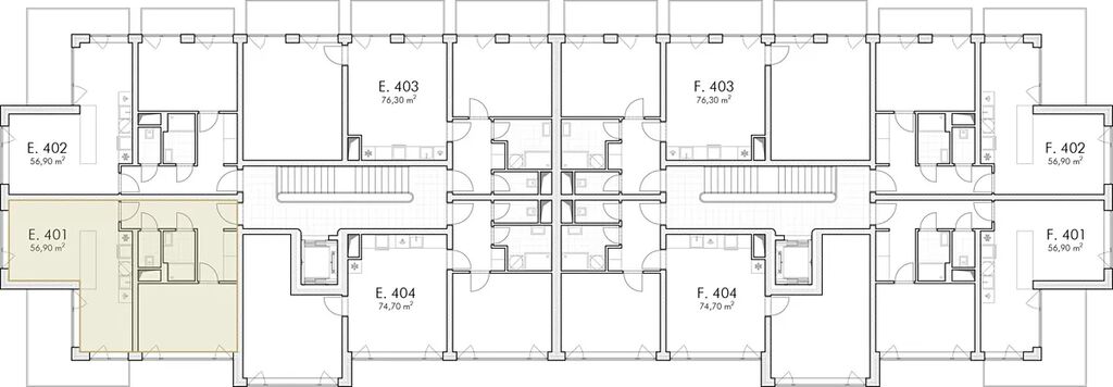
Moderní dvoupokojový byt s plochou 57 m2 a prostorným rohovým balkónem se nachází ve čtvrtém, nejvyšším podlaží bytového domu Rezidence Zlatá Pole a bude připraven k nastěhování ještě v tomto roce.
Koupelna je vybavena umyvadlem a prodlouženým sprchovým koutem, WC je samostatné. Hlavním obytným prostorem bytu je obývací pokoj s technickými přípravami pro napojení kuchyňské linky a dostatkem místa pro stolování, s velkými balkonovými dveřmi otevírajícími se na rohový balkón. Byt dále disponuje samostatnou ložnicí o velikosti více než 13 m2. Okna jsou orientována na západ a severozápad.

V domě se nachází výtah a kočárkárna. K bytu je dále možné si zakoupit sklepní kóji a parkovací stání.

Nové bytové domy v Letovicích navážou na vybudovanou první etapu Rezidence Zlatá Pole a budou dokončeny a předány již v závěru letošního roku a provedeny ve stejném standardu jako v první etapě - tedy s hliníkovými okny s izolačním trojsklem, vodovodním podlahovým vytápěním, kvalitním komunikačním jádrem a zelenou střechou, a budou splňovat parametry pro zařazení do energetické třídy B.
Kompletní nabídku dostupných bytů naleznete na stránkách projektu.

Bytové domy jsou situovány v klidné, strategicky umístěné lokalitě. Do centra města se pěšky dostanete za 15 minut, autem za 3 minuty. Naproti bytovým domům se nachází základní i mateřská škola, v bezprostředním okolí je pak veškerá občanská vybavenost včetně zámeckého parku, potravin a ordinace praktického lékaře.

Parametry bytu

Cena
4 650 000 Kč /za nemovitost Spočítat hypotéku
Aktualizováno
10. 10. 2025
Adresa
Komenského, Letovice
ID
E.401
Stavba
Smíšená
Stav objektu
Ve výstavbě
Patro
4.
Lokalita objektu
Klidná část obce
Vlastnictví
Osobní
Užitná plocha
57 m2
Třída energetické náročnosti
B - Velmi úsporná
Odpad
Veřejná kanalizace
Komunikace
Asfaltová
Telekomunikace
Internet
Doprava
Vlak, Silnice, MHD, Autobus
Voda
Vodovod
Topné těleso
Podlahové vytápění
Zdroj topení
Centrální dálkové
Zdroj teplé vody
Centrální dálkový ohřev
Balkon
Výtah
Bezbarierový přístup

Kontaktovat makléře

Máte zájem o tento byt?

Tímto, v souladu s nařízením Evropského parlamentu a Rady (EU) 2016/679, v platném znění, prohlašuji, že mi je alespoň 16 let a uděluji tak svůj souhlas se zpracováním zadaných údajů (jméno, telefon, e-mail, ip adresa) společnosti B3 Technology, s.r.o., IČ: 07330600, se sídlem Novostavby 126/23, 435 11 Lom (správce dat), za účelem předání dotazu z tohoto formuláře Vámi vybranému inzerentovi a zpětného kontaktování mé osoby. Osobní údaje bude správce zpracovávat manuálně i automaticky přímo prostřednictvím svých zaměstnanců. Informace předané tímto formulářem budou uloženy v databázi správce maximálně po dobu 10 let. Odvolání souhlasu s uložením a zpracováním poskytnutých dat lze e-mailem na info@videobydleni.cz. V případě podezření na neoprávněné použití Vámi poskytnutých údajů máte právo předat podnět k šetření Úřadu pro ochranu osobních údajů. Více informací
Chystáte se prodat nemovitost?
Pomůžeme Vám!

Inzerát si prohlédlo 1 lidí

Prodejce

Veronika Tesařová

Veronika Tesařová

Hlídací pes

Chcete dostávat emailem podobné nabídky prodeje bytů 2+kk v Letovicích?

Podobné nemovitosti


Nevyhovuje Vám typ bytu? Podívejte se na jiné kategorie bytů.


Vybrané články z našeho blogu