Prodej bytu 2+kk, Praha - Hloubětín, Poděbradská, 56 m2 (ID: 4072349)

Poděbradská, Praha 9

Rezervováno
9 850 000 Kč /za nemovitost HYPOTÉKA od 44 024 Kč /za měsíc
Prémioví partneři v Praze 9

Stěhovací služby

Výkup a prodej starého nábytku

Informace k bytu

Byt je ideální volbou pro ty, kteří hledají moderní městské bydlení — domov, kde můžete po práci vypnout, ale přitom zůstat v dosahu města.

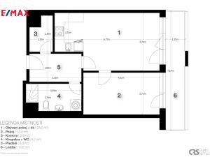
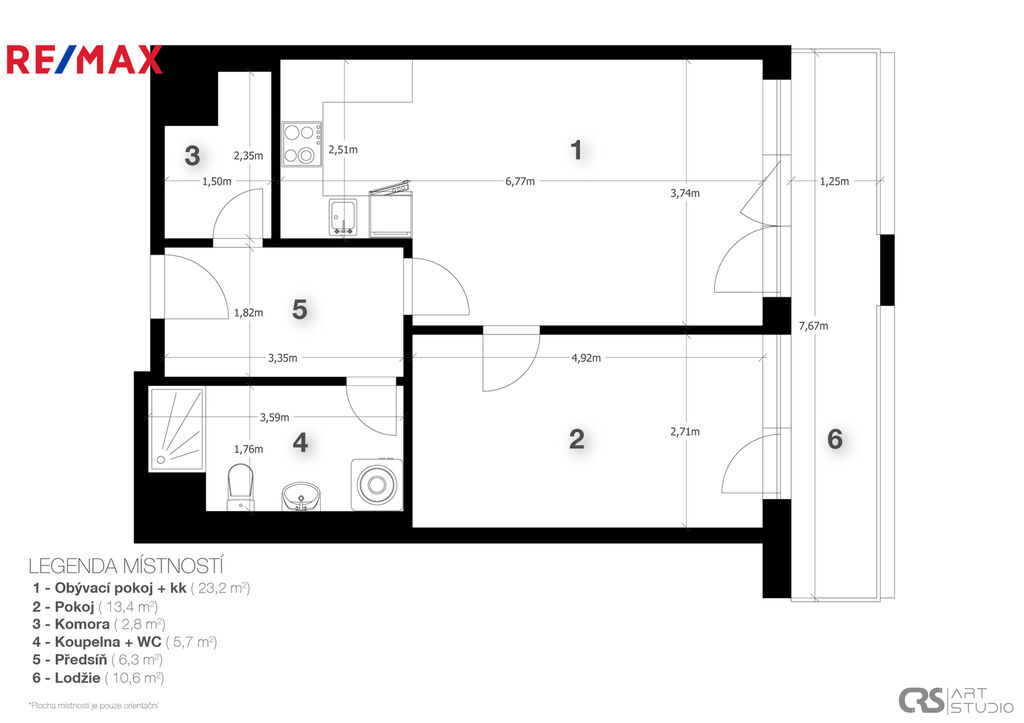
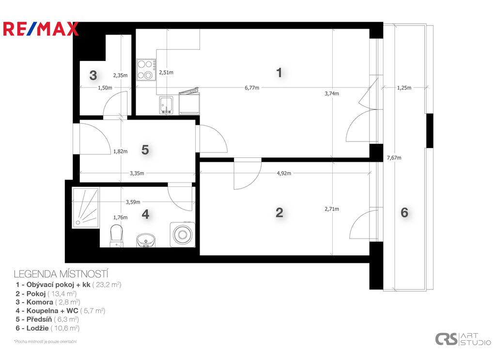
Exkluzivně nabízíme k prodeji nový byt 2+kk o podlahové ploše 56 m² s prostornou lodžií 10,6 m², situovanou do zeleného srdce nově vznikající rezidenční čtvrti Tesla Hloubětín.
Byt se nachází ve 2. patře (3. NP) a spojuje vše, co si od současného bydlení přejete — funkční dispozici, elegantní styl a pocit bezpečí.

KAŽDÝ DETAIL JE PROMYŠLENÝ
Dominantou bytu je obývací pokoj s kuchyňským koutem o velikosti 23,2 m² s pohodlným vstupem do lodžie.
Velkoformátová okna sahající od stropu po zem zajištují světlo po celý den a propojují byt s klidným vnitroblokem plným zeleně.
Rovněž z ložnice (13,4 m²) je přímý vstup na lodžii, která je dostatečně velká na vytvoření zelené stěny nebo mini zahrádky.
Moderní kuchyňská linka je vybavena značkovými spotřebiči Electrolux a Liebherr – myčka, mikrovlnná trouba, sklokeramická deska i kombinovaná lednice s mrazákem se postará o to, abyste se mohli bez starostí nastěhovat.
Součástí vstupní haly je velká vestavěná skříň, která má dostatek prostoru pro uskladnění vašich věcí.
Praktickou součástí bytu je komora o velikosti (2,8 m²).
Koupelna se sprchou a s WC o velikosti (5,7 m²) je prostorná a připravená na instalaci pračky a sušičky a dalšího příslušenství.

K bytu náleží velkorysé parkovací stání vhodné i pro SUV za cenu 800.000,- Kč
Hned za parkovacím stání se nachází nadstandardně velký sklep o výměře 8,7 m² za cenu 300.000,- Kč.
Parkovací stání a sklep není součástí ceny bytu.

Projekt TESLA Hloubětín vzniká na místě původního areálu Tesly a proměňuje se v jednu z nejzelenějších moderních čtvrtí v Praze.
Najdete zde rozsáhlé vnitrobloky, parky, pěší zóny i dětská hřiště.
V přízemí domů postupně vznikají obchody, kavárny a služby.
Nechybí školka, fitness zóny a příjemné cesty pro běhání či jízdu na kole.

SKVĚLÁ DOPRAVNÍ DOSTUPNOST
• Metro B – Hloubětín je jen pár minut pěšky
• Byt je přímo u tramvajové zastávky Nademlejnská
• Rychlé napojení na Pražský okruh a centrum města

Tento byt si vás získá hned při první návštěvě.
Těším se na vás osobně na prohlídce.

Parametry bytu

Stav
Rezervováno
Cena
9 850 000 Kč /za nemovitost Spočítat hypotéku
Aktualizováno
23. 11. 2025
Adresa
Poděbradská, Praha 9
ID
320-NP00232
Stavba
Cihlová
Stav objektu
Novostavba
Patro
3. z 6
Vybaveno
Částečně
Lokalita objektu
Centrum obce
Vlastnictví
Osobní
Užitná plocha
56 m2
Podlahová plocha
67 m2
Třída energetické náročnosti
B - Velmi úsporná
Plyn
Plynovod
Odpad
Veřejná kanalizace
Telekomunikace
Internet
Garáž
Sklep
Lodžie
Výtah
Bezbarierový přístup

Kontaktovat makléře

Máte zájem o tento byt?

Tímto, v souladu s nařízením Evropského parlamentu a Rady (EU) 2016/679, v platném znění, prohlašuji, že mi je alespoň 16 let a uděluji tak svůj souhlas se zpracováním zadaných údajů (jméno, telefon, e-mail, ip adresa) společnosti B3 Technology, s.r.o., IČ: 07330600, se sídlem Novostavby 126/23, 435 11 Lom (správce dat), za účelem předání dotazu z tohoto formuláře Vámi vybranému inzerentovi a zpětného kontaktování mé osoby. Osobní údaje bude správce zpracovávat manuálně i automaticky přímo prostřednictvím svých zaměstnanců. Informace předané tímto formulářem budou uloženy v databázi správce maximálně po dobu 10 let. Odvolání souhlasu s uložením a zpracováním poskytnutých dat lze e-mailem na info@videobydleni.cz. V případě podezření na neoprávněné použití Vámi poskytnutých údajů máte právo předat podnět k šetření Úřadu pro ochranu osobních údajů. Více informací
Chystáte se prodat nemovitost?
Pomůžeme Vám!

Inzerát si prohlédlo 26 lidí

Prodejce

Mgr. Marie Gűtlová

Mgr. Marie Gűtlová

Hlídací pes

Chcete dostávat emailem podobné nabídky prodeje bytů 2+kk v Praze 9?

Podobné nemovitosti


Nevyhovuje Vám typ bytu? Podívejte se na jiné kategorie bytů.


Vybrané články z našeho blogu