Prodej chalupy, Jablonec nad Jizerou, 39 m2 (ID: 4072798)

Jablonec nad Jizerou

3 570 000 Kč /za nemovitost HYPOTÉKA od 15 956 Kč /za měsíc
Prémioví partneři v Jablonci nad Jizerou

Rekonstrukce

Úklidové služby

Informace k domu

Nabízím k prodeji chalupu s číslem popisným na klidném místě nad Jabloncem nad Jizerou, obklopený nádhernou přírodou - horami, lesy a loukami. Dům byl dosud využíván jako víkendová chata, ale je možné ho obývat celoročně.

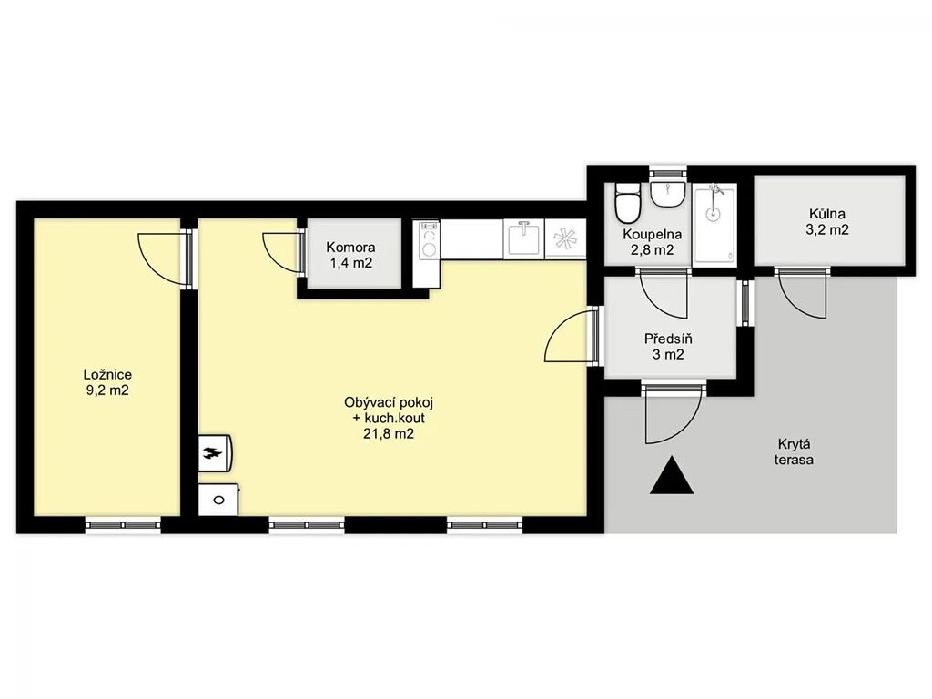
Dům je koncipován jako 2+kk o celkové ploše 39 m2. K dispozici je také zastřešená terasa a sklad na nářadí o výměře 3 m2.

Celková plocha pozemku je včetně zastavěné plochy 2086 m2, z toho 742 m2 tvoří rovinatá část se stavbou. Zbylých 1344 m2 je louka ve svahu s menším lesem.

Ideální poloha osloví snad každého milovníka přírody a klidu.

V létě je oblast rájem pro turisty a cykloturisty s mnoha trasami a atrakcemi pro dospělé i děti.

Zima nabízí skiareály Kamenec, Šachty, Paseky a Lysou Horu, běžecké trasy a snowpark pro zimní sporty.

Pokud toužíte po odpočinku, můžete si vychutnat čerstvý vzduch a krásné výhledy z kryté terasy při grilování.

Interiér prošel rekonstrukcí: elektřina v mědi, voda a odpady v plastu, dřevěná okna špaletová s trojskly, bezpečnostní dřevěné dveře.

Nemovitost je napojena na studnu a jímku a lze ji využít jako investiční příležitost, dům k trvalému bydlení, nebo jako chalupu k rekreaci.

Jablonec nad Jizerou má 1.600 obyvatel a kompletní občanskou vybavenost: vlak, autobus, školu, školku, obchody, restaurace, cukrárnu, poštu, kulturní dům, zdravotní středisko, skiareál, koupaliště, sportoviště a další.

Předmětem prodeje není roubená chalupa, ale pouze vyznačená část objektu.

Parametry domu

Cena
3 570 000 Kč /za nemovitost Spočítat hypotéku
Aktualizováno
11. 10. 2025
Adresa
Jablonec nad Jizerou
ID
765
Stavba
Cihlová
Stav objektu
Dobrý
Vybaveno
Ano
Druh objektu
Rohový
Lokalita objektu
Klidná část obce
Užitná plocha
39 m2
Zastavěná plocha
56 m2
Podlahová plocha
43 m2
Plocha pozemku
2086 m2
Plocha zahrady
2030 m2
Třída energetické náročnosti
G - Mimořádně nehospodárná
Elektřina
230V, 400V
Odpad
Jímka
Topení
Lokální tuhá paliva
Komunikace
Asfaltová
Doprava
Vlak, Silnice, Autobus
Voda
Studna
Zdroj topení
Krbová kamna
Bezbarierový přístup
Parkování

Kontaktovat makléře

Máte zájem o tento dům?

Tímto, v souladu s nařízením Evropského parlamentu a Rady (EU) 2016/679, v platném znění, prohlašuji, že mi je alespoň 16 let a uděluji tak svůj souhlas se zpracováním zadaných údajů (jméno, telefon, e-mail, ip adresa) společnosti B3 Technology, s.r.o., IČ: 07330600, se sídlem Novostavby 126/23, 435 11 Lom (správce dat), za účelem předání dotazu z tohoto formuláře Vámi vybranému inzerentovi a zpětného kontaktování mé osoby. Osobní údaje bude správce zpracovávat manuálně i automaticky přímo prostřednictvím svých zaměstnanců. Informace předané tímto formulářem budou uloženy v databázi správce maximálně po dobu 10 let. Odvolání souhlasu s uložením a zpracováním poskytnutých dat lze e-mailem na info@videobydleni.cz. V případě podezření na neoprávněné použití Vámi poskytnutých údajů máte právo předat podnět k šetření Úřadu pro ochranu osobních údajů. Více informací
Chystáte se prodat nemovitost?
Pomůžeme Vám!

Inzerát si prohlédlo 1 lidí

Prodejce

Aleš Huml

Aleš Huml

Hlídací pes

Chcete dostávat emailem podobné nabídky prodeje chalup v Jablonci nad Jizerou?

Podobné nemovitosti


Nevyhovuje Vám typ domu? Podívejte se na jiné kategorie domů.


Vybrané články z našeho blogu