Pronájem bytu 3+1, Brno - Zábrdovice, Koliště, 110 m2

Koliště, Brno, Zábrdovice

27 000 Kč /za měsíc Získejte výhodnou HYPOTÉKU

(+ 6.500 Kc inkaso)

Prémioví partneři v Brně

Informace k bytu

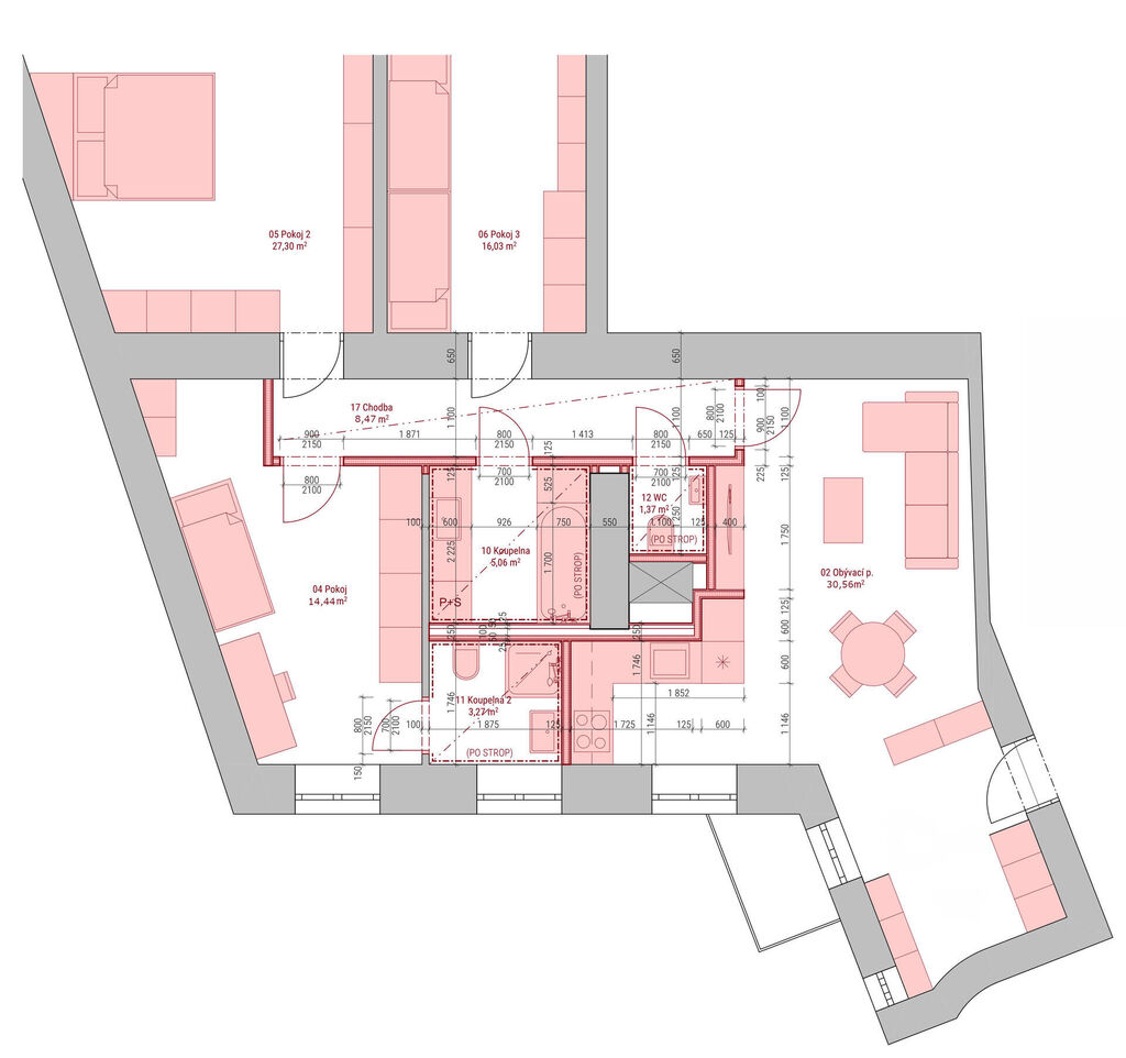
Se souhlasem majitele si Vám dovolujeme nabídnout k pronájmu byt po generální rekonstrukci v samém centru Brna, na ulici Koliště. Byt je orientován do vnitrobloku a do ul. Ponávka, takže Vás překvapí nečekaným klidem, o rušné ulici před domem nebudete vůbec vědět.

Byt se nachází ve 3. patře cihlového domu. Jednotka je v dispozici 3+1 a s plochou 10m2 se 2 balkóny nabízí štědrý prostor k žití. Pokoje jsou neprůchozí, jak ukazuje přiložený půdorys. Při rekonstrukci majitel vybudoval samostatné WC a především 2 koupelny (v jedné najdeme další WC), vybavené elegantní černou sanitou, které zajistí pohodlné bydlení i náročnějším nájemníkům.

Nemovitost je nabízena bez vybavení, součástí jsou spotřebiče v kuchyni (lednice, varná deska, trouba, odsavač par, myčka nádobí). V případě potřeby lze o vybavenosti diskutovat s majitelem. Teplo a ohřev teplé vody je realizován dálkově, v těsné blízkosti veškerá občanská vybavenost.

Cena: 27.000 Kč/měsíc + inkaso 6.500 Kč/měsíc (vyúčtování dle skutečné spotřeby). Internet není zahrnut v ceně. Vratná kauce 1 měsíční platba. Provize RK 1 měsíční platba.

Byt je ihned k dispozici. Majitelé preferují nájemníky bez domácích mazlíčků.

Energeticky byla nemovitost zatříděna do skupiny „G“, neboť nemáme k dispozici PENB. To však neznamená, že objekt do této kategorie skutečně spadá.

Výměra: 110m2
Nájemné: 27.000 Kč
Inkaso: 6.500 Kč

Parametry bytu

Cena
27 000 Kč /za měsíc
Poznámka k ceně
+ 6.500 Kc inkaso
Aktualizováno
13. 10. 2025
Adresa
Koliště, Brno, Zábrdovice
ID
N00143
Stavba
Cihlová
Stav objektu
Po rekonstrukci
Patro
3. z 40
Lokalita objektu
Centrum obce
Vlastnictví
Osobní
Užitná plocha
110 m2
Podlahová plocha
110 m2
Třída energetické náročnosti
G - Mimořádně nehospodárná
Elektřina
230V
Plyn
Plynovod
Odpad
Veřejná kanalizace
Topení
Ústřední dálkové
Telekomunikace
Internet, Kabelová televize
Balkon

Kontaktovat makléře

Máte zájem o tento byt?

Tímto, v souladu s nařízením Evropského parlamentu a Rady (EU) 2016/679, v platném znění, prohlašuji, že mi je alespoň 16 let a uděluji tak svůj souhlas se zpracováním zadaných údajů (jméno, telefon, e-mail, ip adresa) společnosti B3 Technology, s.r.o., IČ: 07330600, se sídlem Novostavby 126/23, 435 11 Lom (správce dat), za účelem předání dotazu z tohoto formuláře Vámi vybranému inzerentovi a zpětného kontaktování mé osoby. Osobní údaje bude správce zpracovávat manuálně i automaticky přímo prostřednictvím svých zaměstnanců. Informace předané tímto formulářem budou uloženy v databázi správce maximálně po dobu 10 let. Odvolání souhlasu s uložením a zpracováním poskytnutých dat lze e-mailem na info@videobydleni.cz. V případě podezření na neoprávněné použití Vámi poskytnutých údajů máte právo předat podnět k šetření Úřadu pro ochranu osobních údajů. Více informací
Chystáte se prodat nemovitost?
Pomůžeme Vám!

Inzerát si prohlédlo 0 lidí

Prodejce

Ing. Martin Kukusík

Ing. Martin Kukusík

Hlídací pes

Chcete dostávat emailem podobné nabídky pronájmu bytů 3+1 v Brně?

Podobné nemovitosti


Nevyhovuje Vám typ bytu? Podívejte se na jiné kategorie bytů.


Vybrané články z našeho blogu