Pronájem bytu 1+1, Praha - Nové Město, Na Poříčí, 36 m2 (ID: 4074383)

Na Poříčí, Praha 1 - Nové Město

18 900 Kč /za měsíc Získejte výhodnou HYPOTÉKU

(měsíční poplatky 1650/os + el.energie)

Prémioví partneři v Praze 1

Stěhovací služby

Výkup a prodej starého nábytku

Informace k bytu

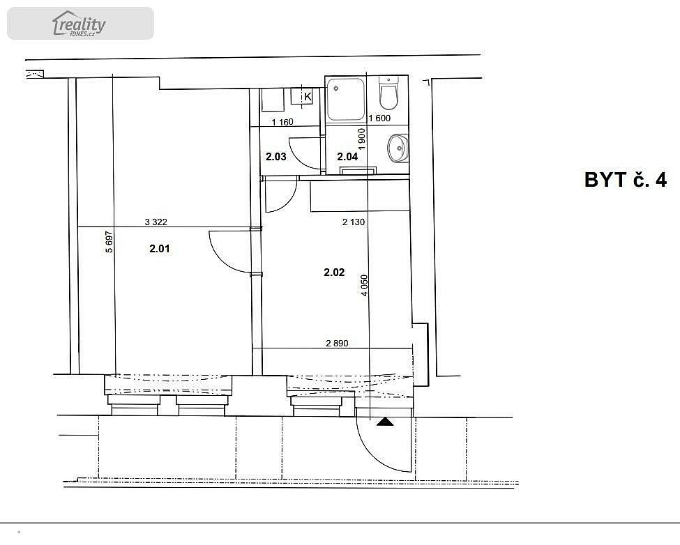
Pronájem bytu 1+1 36 m²

Nabízíme k dlouhodobému pronájmu krásný, rekonstruovaný byt 1+1 o celkové výměře 36m² v Praze 1, ulice Na Poříčí. Byt se nachází v 1. patře rezidenčního domu po kompletní rekonstrukci, s výtahem a čipovým systémem pro vstupy. Byt je částečně zařízený, vybavený kvalitní kuchyňskou linkou se všemi spotřebiči (myčka, sklokeramická deska, trouba, lednice, odsavač par). Koupelna se sprchových koutem, umyvadlem a s WC. Byt je díky svému umístění velmi klidný a nabízí pohodlné bydlení v samém centru hlavního města.
Při rekonstrukci domu i bytu byly použity nadstandardní materiály , úsporný kotel pro topení a ohřev teplé vody, který je samostatný pro tento byt.
Citlivě renovovaný historický dům tak spojuje příjemné bydlení, nadstandardní dopravní obslužnost, pěší dostupnost do centra Prahy i blízkost obchodů, restaurací a služeb. Volné od 1.11.2025

Měsíční náklady 1650/os. /měs. + spotřeba el. energie a plynu.
Žádáme zájemce o krátký informační email a představení vč. počtu osob.

Parametry bytu

Cena
18 900 Kč /za měsíc
Poznámka k ceně
měsíční poplatky 1650/os + el.energie
Aktualizováno
13. 10. 2025
Adresa
Na Poříčí, Praha 1 - Nové Město
ID
1695871820
Stavba
Cihlová
Stav objektu
Dobrý
Vlastnictví
Osobní
Užitná plocha
36 m2
Třída energetické náročnosti
G - Mimořádně nehospodárná

Kontaktovat makléře

Máte zájem o tento byt?

Tímto, v souladu s nařízením Evropského parlamentu a Rady (EU) 2016/679, v platném znění, prohlašuji, že mi je alespoň 16 let a uděluji tak svůj souhlas se zpracováním zadaných údajů (jméno, telefon, e-mail, ip adresa) společnosti B3 Technology, s.r.o., IČ: 07330600, se sídlem Novostavby 126/23, 435 11 Lom (správce dat), za účelem předání dotazu z tohoto formuláře Vámi vybranému inzerentovi a zpětného kontaktování mé osoby. Osobní údaje bude správce zpracovávat manuálně i automaticky přímo prostřednictvím svých zaměstnanců. Informace předané tímto formulářem budou uloženy v databázi správce maximálně po dobu 10 let. Odvolání souhlasu s uložením a zpracováním poskytnutých dat lze e-mailem na info@videobydleni.cz. V případě podezření na neoprávněné použití Vámi poskytnutých údajů máte právo předat podnět k šetření Úřadu pro ochranu osobních údajů. Více informací
Chystáte se prodat nemovitost?
Pomůžeme Vám!

Inzerát si prohlédlo 1 lidí

Prodejce

Irena Kučerová

Irena Kučerová

Hlídací pes

Chcete dostávat emailem podobné nabídky pronájmu bytů 1+1 v Praze 1?

Podobné nemovitosti


Nevyhovuje Vám typ bytu? Podívejte se na jiné kategorie bytů.


Vybrané články z našeho blogu