Prodej chalupy, Kokořín, 375 m2 (ID: 4074424)

Kokořín

9 990 000 Kč /za nemovitost HYPOTÉKA od 44 649 Kč /za měsíc

(včetně provize, včetně právního servisu)

Prémioví partneři v Kokoříně

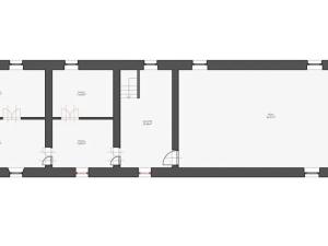
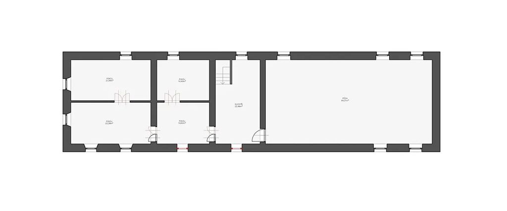
Informace k domu

Nabízíme Vám k prodeji chalupu/dům, s fungující restaurací, v samém srdci obce Kokořín.

Dům je určen pro každého, kdo ocení život v přírodě, na turisticky atraktivním místě, a využije tak potenciál vlastního podnikání v gastronomii, s možností bydlení, nebo využije celý dům pouze pro účely bydlení.

Restaurace je zkolaudována, a v celém domě proběhla rekonstrukce elektrických rozvodů, topení, vodovodních trubek a odpadních trubek.

Nabízí se tu velká řada možností s rozšířením služeb na ubytování(pension, apartmány), s využitím volných ploch v domě nebo ve stodole která je součástí pozemku.
Další možností je zvětšit si obytnou plochu pro vlastní potřeby.

Objekt je celý uzavřený se vstupní bránou, pro účely restaurace je k dispozici venkovní posezení, pro vlastní potřeby je k dispozici zahrada.

Na zahradě je mnoho ovocných stromů a okrasných a keřů, na dvorku je momentálně nevyužitý prodejní stánek.

Stodola je v současnosti využívána jako sklad surovin a nápojů, v druhé části je dílna.

Více informací v RK.

Parametry domu

Cena
9 990 000 Kč /za nemovitost Spočítat hypotéku
Poznámka k ceně
včetně provize, včetně právního servisu
Náklady na bydlení
8.000 Kč/měs.
Aktualizováno
13. 10. 2025
Adresa
Kokořín
ID
00097
Stavba
Cihlová
Stav objektu
Velmi dobrý
Vybaveno
Ano
Druh objektu
Samostatný
Lokalita objektu
Centrum obce
Užitná plocha
375 m2
Zastavěná plocha
385 m2
Plocha pozemku
1667 m2
Plocha zahrady
1256 m2
Elektřina
230V, 400V
Odpad
Septik
Komunikace
Asfaltová
Doprava
Silnice, Autobus
Voda
Vodovod
Topné těleso
Radiátory
Zdroj topení
Kotel na tuhá paliva
Zdroj teplé vody
Bojler - elektro
Výtah
Parkování

Kontaktovat makléře

Máte zájem o tento dům?

Tímto, v souladu s nařízením Evropského parlamentu a Rady (EU) 2016/679, v platném znění, prohlašuji, že mi je alespoň 16 let a uděluji tak svůj souhlas se zpracováním zadaných údajů (jméno, telefon, e-mail, ip adresa) společnosti B3 Technology, s.r.o., IČ: 07330600, se sídlem Novostavby 126/23, 435 11 Lom (správce dat), za účelem předání dotazu z tohoto formuláře Vámi vybranému inzerentovi a zpětného kontaktování mé osoby. Osobní údaje bude správce zpracovávat manuálně i automaticky přímo prostřednictvím svých zaměstnanců. Informace předané tímto formulářem budou uloženy v databázi správce maximálně po dobu 10 let. Odvolání souhlasu s uložením a zpracováním poskytnutých dat lze e-mailem na info@videobydleni.cz. V případě podezření na neoprávněné použití Vámi poskytnutých údajů máte právo předat podnět k šetření Úřadu pro ochranu osobních údajů. Více informací
Chystáte se prodat nemovitost?
Pomůžeme Vám!

Inzerát si prohlédlo 1 lidí

Prodejce

Vratislav Netolický

Vratislav Netolický

Hlídací pes

Chcete dostávat emailem podobné nabídky prodeje chalup v Kokoříně?

Podobné nemovitosti


Nevyhovuje Vám typ domu? Podívejte se na jiné kategorie domů.


Vybrané články z našeho blogu