Prodej rodinného domu, Káraný, B. Němcové, 58 m2

B. Němcové, Káraný

Cena na vyžádání /za nemovitost Získejte výhodnou HYPOTÉKU

(včetně provize RK a právního servisu, cena je k jednání)

Prémioví partneři v Káraném

Informace k domu

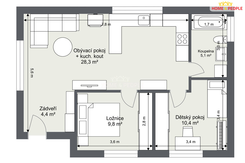
Zprostředkujeme Vám ve výhradním zastoupení krásný menší dům (kolaudovaný 2024 s číslem evidenčním) o dispozici 3+kk na nádherném místě v rezidenční části Káraného na Praze východ obklopený spoustou zeleně, a navíc u řeky.
Dominantou domu je kuchyň s obývacím pokojem s kachlovými kamny na dřevo což dodává krásnou atmosféru celému domu. Dále najdete dvě ložnice, krásnou koupelnu s vanou a wc.
Na pozemku jsou ještě kůlny a plechová garáž se zastavěnou plochou 21m.
V domě jsou použité kvalitní stavební materiály. Jedná se o dřevostavbu, která je zateplena 160mm polystyrenem, okna jsou trojskla, dům disponuje nádrží na dešťovou vodu (7k), která je napojena na splachování WC. V domě je příprava na alarm, kamerový systém, elektrické vedení je i na bránu a garáž, všude jsou nezámrzné kohouty na vodu. Půda je rovněž připravena na zvětšení prostoru či případné nástavby obytného podkroví. Topení je podlahové a dá se ovládat přes wifi, což dává pohodlí si na dálku vyhřát dům.

Dům se nachází v klidné lokalitě obce Káraný v těsné blízkosti řeky Jizery, ale není v záplavové zóně. Perfektní dojezdová vzdálenost do Prahy, 20 min. autem na Černý Most. Do Brandýsa nad Labem je to pouhých 10 min. autem a autobus č. 666 jezdí každou hodinu. V obci se nachází mateřská školka, tato lokalita vhodná pro mladé rodiny s dětmi.
Obec Káraný má kulturní život a v obci je i vynikající Vinohradský pivovar.
V obci se nachází mateřská školka, tato lokalita vhodná pro mladé rodiny s dětmi

Z důvodu, že před zadáním do inzerce nebyl vyhotoven PENB, je tato nemovitost v souladu s platným zákonem zařazena do energetické třídy G.
Předpokládaná energetická náročnost domu třídy B, velmi úsporná.

Dům se prodává včetně vybavení, tedy nic víc nepotřebujete a můžete se rovnou nastěhovat. Pro více informací neváhejte kontaktovat makléře či na mém webu najdete všechny fotografie. Možné financovat hypotečním úvěrem bez dokládání příjmů, pouze složení 20% vlastních zdrojů, se kterým Vám rádi pomůžeme zdarma vyřídit za nejlepších podmínek na trhu. K dispozici dle dohody. Prohlídky dle telefonické domluvy. Těším se na naše společné setkání při prohlídce. Ev. číslo: 31971.

Parametry domu

Cena
Cena na vyžádání Spočítat hypotéku
Poznámka k ceně
včetně provize RK a právního servisu, cena je k jednání
Aktualizováno
22. 11. 2025
Adresa
B. Němcové, Káraný
ID
31971
Stavba
Dřevěná
Stav objektu
Novostavba
Typ objektu
Přízemní
Druh objektu
Samostatný
Užitná plocha
58 m2
Zastavěná plocha
72 m2
Podlahová plocha
58 m2
Plocha pozemku
492 m2
Třída energetické náročnosti
G - Mimořádně nehospodárná
Ukazatel energetické náročnosti
1 kWh/m2 za rok
Garáž
Terasa

Kontaktovat makléře

Máte zájem o tento dům?

Tímto, v souladu s nařízením Evropského parlamentu a Rady (EU) 2016/679, v platném znění, prohlašuji, že mi je alespoň 16 let a uděluji tak svůj souhlas se zpracováním zadaných údajů (jméno, telefon, e-mail, ip adresa) společnosti B3 Technology, s.r.o., IČ: 07330600, se sídlem Novostavby 126/23, 435 11 Lom (správce dat), za účelem předání dotazu z tohoto formuláře Vámi vybranému inzerentovi a zpětného kontaktování mé osoby. Osobní údaje bude správce zpracovávat manuálně i automaticky přímo prostřednictvím svých zaměstnanců. Informace předané tímto formulářem budou uloženy v databázi správce maximálně po dobu 10 let. Odvolání souhlasu s uložením a zpracováním poskytnutých dat lze e-mailem na info@videobydleni.cz. V případě podezření na neoprávněné použití Vámi poskytnutých údajů máte právo předat podnět k šetření Úřadu pro ochranu osobních údajů. Více informací
Chystáte se prodat nemovitost?
Pomůžeme Vám!

Inzerát si prohlédlo 14 lidí

Prodejce

Martina Novotná (Voslářová)

Martina Novotná (Voslářová)

Hlídací pes

Chcete dostávat emailem podobné nabídky prodeje rodinných domů v Káraném?

Podobné nemovitosti


Nevyhovuje Vám typ domu? Podívejte se na jiné kategorie domů.


Vybrané články z našeho blogu