Pronájem bytu 3+kk, Plzeň, Železničářská, 139 m2

Železničářská, Plzeň, Doubravka

26 900 Kč /za měsíc Získejte výhodnou HYPOTÉKU

(+ služby 5.060,-Kč/měs./2 os., včetně internetu + elektřina cca 1.000,-Kč/měs., kauce 50.000,-Kč, provize pro RK 0,-Kč.)

Prémioví partneři v Plzni

Podlahy

Stěhovací služby

Informace k bytu

Nově uvolněno od 01.12.2025.

Neplatíte provizi!

Nabízíme k pronájmu krásný a velmi světlý mezonetový byt se zahrádkou v novostavbě (kolaudace 08´/2021) v ulici Železničářská v Plzni na Doubravce. Absolutní klid a výborná dostupnost MHD (7 min. trolejbusem 16 a 17 na |M| Hlavní nádraží a 14 min. busem 28 a 30 na CAN). Množství zeleně, 200 m park V Homolkách, 400 m sportovní areál Lopatárna a řeka Úslava.

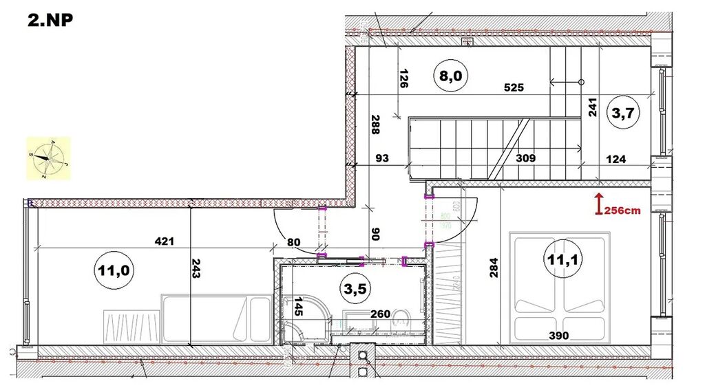
Dvoupodlažní byt 3+kk, 78,1 m2, zahrádka 61 m2, ve zvýšeném přízemí (parapet 2,9m vysoko) a v prvním patře. Budova pouze se dvěma bytovými jednotkami.

2x WC!

Kuchyňská linka s lednicí, mrazákem, indukční varnou deskou, myčkou, digestoří s odtahem mimo byt, pračkou, horkovzdušnou troubou a mikrovlnnou troubou. Klimatizace v ložnici. Tři velké vestavěné skříně, psací stůl se židlí, manželská postel a palanda z masivu, designová rozkládací pohovka a krbová kamna. Televize (140 cm) zavěšená na zdi s libovolně nastavitelným ramenem. Koupelna se sprchovým koutem a závěsným WC ve 2. NP. Ve spodním podlaží druhé WC s umyvadlem.

Na podlahách dlažba a vinyl. Vytápění podlahové (plyn. kotel), regulace tepla digitálními termostaty v každé místnosti. Velké posuvné plastové (portálové) okno se vstupem na zahradu. Všechna oka se žaluziemi, v dětském pokoji navíc předokenní roleta na dálkové ovládání.

Orientace oken na jihovýchod a severozápad. Stropy vysoké 261 a 256 cm.

K dispozici zahradní bouda 1,1 m2.

Internet kabel CETIN 100Mb/s, WIFI Access Point (talíř) v obou podlažích + datová zásuvka pro TV (i v ložnici). Bezpečnostní dveře.

Krásné okolí, kompletní občanská vybavenost - v místě škola, školka, poliklinika, pošta, restaurace, Tesco, Lidl a Centrum Doubravka. Výborné spojení autem na D5.

K dispozici od 01.12.2025. Více fotografií (46) na stránkách blanikreality pod ID: 25285.

Nájem 26.900,-Kč/měs. + služby 5.060,-Kč/měs./2 os., včetně internetu + elektřina cca 1.000,-Kč/měs., kauce 50.000,-Kč, provize pro RK 0,-Kč.

Energetická náročnost budovy PENB = "B", velmi úsporná.

Parametry bytu

Cena
26 900 Kč /za měsíc
Poznámka k ceně
+ služby 5.060,-Kč/měs./2 os., včetně internetu + elektřina cca 1.000,-Kč/měs., kauce 50.000,-Kč, provize pro RK 0,-Kč.
Aktualizováno
14. 10. 2025
Adresa
Železničářská, Plzeň, Doubravka
ID
25285
Stavba
Cihlová
Stav objektu
Novostavba
Patro
2. z 2
Vybaveno
Ano
Lokalita objektu
Klidná část obce
Vlastnictví
Osobní
Užitná plocha
139 m2
Podlahová plocha
139 m2
Plocha zahrady
61 m2
Třída energetické náročnosti
B - Velmi úsporná
Elektřina
230V, 400V
Plyn
Individuální
Topení
Ústřední plynové, Podlahové
Komunikace
Asfaltová
Telekomunikace
Telefon, Internet, Kabelové rozvody
Doprava
MHD
Voda
Vodovod
Topné těleso
Podlahové vytápění, Krbová kamna
Zdroj topení
Plynový kondenzační kotel, Krbová kamna
Sklep
Terasa
Výtah
Bezbarierový přístup

Kontaktovat makléře

Máte zájem o tento byt?

Tímto, v souladu s nařízením Evropského parlamentu a Rady (EU) 2016/679, v platném znění, prohlašuji, že mi je alespoň 16 let a uděluji tak svůj souhlas se zpracováním zadaných údajů (jméno, telefon, e-mail, ip adresa) společnosti B3 Technology, s.r.o., IČ: 07330600, se sídlem Novostavby 126/23, 435 11 Lom (správce dat), za účelem předání dotazu z tohoto formuláře Vámi vybranému inzerentovi a zpětného kontaktování mé osoby. Osobní údaje bude správce zpracovávat manuálně i automaticky přímo prostřednictvím svých zaměstnanců. Informace předané tímto formulářem budou uloženy v databázi správce maximálně po dobu 10 let. Odvolání souhlasu s uložením a zpracováním poskytnutých dat lze e-mailem na info@videobydleni.cz. V případě podezření na neoprávněné použití Vámi poskytnutých údajů máte právo předat podnět k šetření Úřadu pro ochranu osobních údajů. Více informací
Chystáte se prodat nemovitost?
Pomůžeme Vám!

Inzerát si prohlédlo 0 lidí

Prodejce

Mgr. Bohuslav Papírník

Mgr. Bohuslav Papírník

Hlídací pes

Chcete dostávat emailem podobné nabídky pronájmu bytů 3+kk v Plzni?

Podobné nemovitosti


Nevyhovuje Vám typ bytu? Podívejte se na jiné kategorie bytů.


Vybrané články z našeho blogu