Pronájem kanceláře, Ostrava, Vítkovická, 116 m2

Vítkovická, Moravská Ostrava

160 Kč /za metr čtvereční / měsíc Získejte výhodnou HYPOTÉKU

(bez DPH, bez služeb, jistota 3 měsíční nájmy)

Prémioví partneři v Ostravě

Informace k nemovitosti

K pronájmu nabízíme kancelářské prostory v atraktivní lokalitě na ul. Vítkovická v Moravské Ostravě, u nákupního centra Karolína.

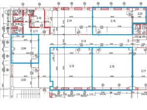
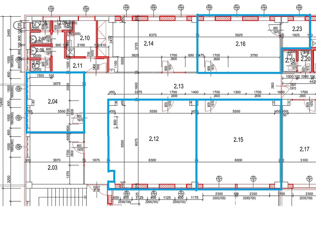
Prostory se nacházejí ve 2.NP podlaží budovy, jedná se o čtyři samostatné kanceláře, k dispozici je kuchyňka a sociální zázemí.

Výměry dle půdorysu:

kancelář č.2.04 - 16,6 m2
kancelář č. 2.12 - 37,5 m2
kancelář č. 2.15 - 35,5 m2
kancelář č. 2.16 + 2.23 - 25,9 m2

Možno pronajmout jednotlivě, případně jako celek nebo vhodnou variantu pro potřeby nájemce.

Výhodou je možnost časově omezeného bezplatného parkování u obchodního centra, což ocení zejména návštěvy.

Objekt je elektronicky zabezpečen.

V rámci energetické náročnosti je budova klasifikována v kategorii C – úsporná.

Parametry nemovitosti

Cena
160 Kč /za metr čtvereční / měsíc
Poznámka k ceně
bez DPH, bez služeb, jistota 3 měsíční nájmy
Aktualizováno
14. 10. 2025
Adresa
Vítkovická, Moravská Ostrava
ID
10570451252
Stavba
Skeletová
Stav objektu
Velmi dobrý
Užitná plocha
116 m2

Kontaktovat makléře

Realitní kancelář

Logo VICTORIA realitní centrum

VICTORIA realitní centrum

U Mostu 1160/3, Ostrava, Zábřeh

Chystáte se prodat nemovitost?
Pomůžeme Vám!

Máte zájem o tuto nemovistost?

Tímto, v souladu s nařízením Evropského parlamentu a Rady (EU) 2016/679, v platném znění, prohlašuji, že mi je alespoň 16 let a uděluji tak svůj souhlas se zpracováním zadaných údajů (jméno, telefon, e-mail, ip adresa) společnosti B3 Technology, s.r.o., IČ: 07330600, se sídlem Novostavby 126/23, 435 11 Lom (správce dat), za účelem předání dotazu z tohoto formuláře Vámi vybranému inzerentovi a zpětného kontaktování mé osoby. Osobní údaje bude správce zpracovávat manuálně i automaticky přímo prostřednictvím svých zaměstnanců. Informace předané tímto formulářem budou uloženy v databázi správce maximálně po dobu 10 let. Odvolání souhlasu s uložením a zpracováním poskytnutých dat lze e-mailem na info@videobydleni.cz. V případě podezření na neoprávněné použití Vámi poskytnutých údajů máte právo předat podnět k šetření Úřadu pro ochranu osobních údajů. Více informací
Chystáte se prodat nemovitost?
Pomůžeme Vám!

Inzerát si prohlédlo 2 lidí

Prodejce

Petr Šrámek

Petr Šrámek

Hlídací pes

Chcete dostávat emailem podobné nabídky pronájmu kanceláří v Ostravě?

Podobné nemovitosti


Nevyhovuje Vám typ nemovitosti? Podívejte se na jiné kategorie komerčních.


Vybrané články z našeho blogu