Pronájem bytu 4+kk, Praha - Horní Měcholupy, Padovská, 74 m2

Padovská, Praha 10, Horní Měcholupy

23 000 Kč /za měsíc Získejte výhodnou HYPOTÉKU

(+ poplatky 5.500,-Kč + elektřina)

Prémioví partneři v Praze 10

Stěhovací služby

Výkup a prodej starého nábytku

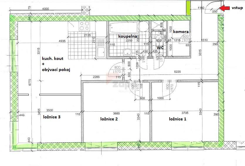
Informace k bytu

Exkluzivně nabízíme k pronájmu hezký prostorný byt 4+kk o velikosti 74 m2 v cihlovém domě, s velkým sklepem (4m2) a garážovým stáním v suterénu domu, v ul. Padovská na Praze 10 Horní Měcholupy hned vedle lesoparku a Hostivařské přehrady.
Byt je vymalovaný, čistý, částečně zařízený s jihozápadní orientací směrem do klidné ulice nebo vnitrobloku.
Vybavení bytu: kuchyňská linka s varnou deskou, myčka, v koupelně vana, v předsíni šatní skříně, prostorná komora, v ložnici dvoulůžko a skříňky, ve dvou ložnicích šatní skříně, v oknech žaluzie.
Dispozice: obývací pokoj je propojen s kuchyňským koutem, 3 ložnice jsou samostatné a neprůchozí, v koupelně je vana a prostor pro pračku. WC je samostatné. Na podlahách je plovoucí podlaha v dekoru dřeva nebo dlažba. Vytápění je dálkové.
K užívání je prostorný sklep a společná kolárna v suterénu domu. Po dohodě si lze pronajmout i garážové stání v suterénu domu. Parkování je možné v ulici nebo v okolí.
Byt je volný okamžitě, je ideální pro rodinu 3-4 osoby, nekuřáky a bez domácích zvířat.
Byt je v klidném, tichém místě s veškerou občanskou vybaveností. V blízkosti je supermarket Albert, lékaři a restaurace, školky a základní školy, hned vedle domu je lesopark Hostivař navazující na Hostivařskou přehradu, kde vedou cyklostezky.
Výborná dostupnost do centra Prahy, na autobus cca 5min chůzí a 10 min na metro C Háje nebo cca 15min. na metro A Skalka.
Nájemné činí 23.000,-Kč + 5.474,- Kč/ 3 osoby + vlastní spotřeba el. a internet + garážové stání dle dohody.
Při podpisu smlouvy je třeba uhradit první nájemné včetně služeb + kauce 2 nájmy + provizi RK.

Parametry bytu

Cena
23 000 Kč /za měsíc
Poznámka k ceně
+ poplatky 5.500,-Kč + elektřina
Aktualizováno
14. 10. 2025
Adresa
Padovská, Praha 10, Horní Měcholupy
ID
366-1199
Stavba
Cihlová
Stav objektu
Velmi dobrý
Patro
1.
Vybaveno
Částečně
Typ objektu
Přízemní
Vlastnictví
Osobní
Užitná plocha
74 m2
Podlahová plocha
78 m2
Třída energetické náročnosti
B - Velmi úsporná
Telekomunikace
Internet, Kabelové rozvody
Doprava
Autobus
Sklep
Výtah
Bezbarierový přístup
Parkování

Kontaktovat makléře

Realitní kancelář

Logo ZAPA reality, s.r.o.

ZAPA reality, s.r.o.

náměstí 14. října 1307/2, Praha, Smíchov

Chystáte se prodat nemovitost?
Pomůžeme Vám!

Máte zájem o tento byt?

Tímto, v souladu s nařízením Evropského parlamentu a Rady (EU) 2016/679, v platném znění, prohlašuji, že mi je alespoň 16 let a uděluji tak svůj souhlas se zpracováním zadaných údajů (jméno, telefon, e-mail, ip adresa) společnosti B3 Technology, s.r.o., IČ: 07330600, se sídlem Novostavby 126/23, 435 11 Lom (správce dat), za účelem předání dotazu z tohoto formuláře Vámi vybranému inzerentovi a zpětného kontaktování mé osoby. Osobní údaje bude správce zpracovávat manuálně i automaticky přímo prostřednictvím svých zaměstnanců. Informace předané tímto formulářem budou uloženy v databázi správce maximálně po dobu 10 let. Odvolání souhlasu s uložením a zpracováním poskytnutých dat lze e-mailem na info@videobydleni.cz. V případě podezření na neoprávněné použití Vámi poskytnutých údajů máte právo předat podnět k šetření Úřadu pro ochranu osobních údajů. Více informací
Chystáte se prodat nemovitost?
Pomůžeme Vám!

Inzerát si prohlédlo 2 lidí

Prodejce

Roman Brož

Roman Brož

Hlídací pes

Chcete dostávat emailem podobné nabídky pronájmu bytů 4+kk v Praze 10?

Podobné nemovitosti


Nevyhovuje Vám typ bytu? Podívejte se na jiné kategorie bytů.


Vybrané články z našeho blogu