Prodej vícegeneračního domu, Velké Přítočno, Krátká, 180 m2 (ID: 4075578)

Krátká, Velké Přítočno

12 990 000 Kč /za nemovitost HYPOTÉKA od 58 057 Kč /za měsíc
Prémioví partneři v Velkém Přítočně

Informace k domu

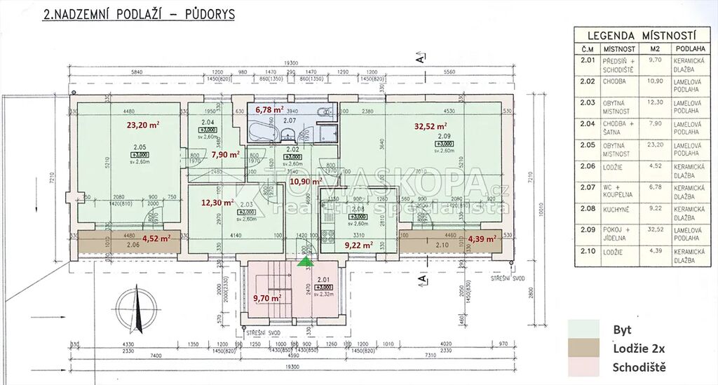
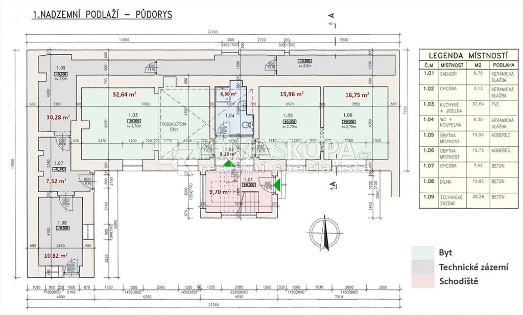
Prodej rodinného domu (dvougenerační) se 2 bytovými jednotkami (3+1 – 74,78 m2 v 1.NP domu a 3+1 – 104,62 m2 ve 2.NP domu) obě bytové jednotky jsou rozděleny prohlášením vlastníka (půdorysy naleznete v přiložených fotografiích), kdy spoluvlastnický podíl na zahradě, garáži (27 m2) a společných částech domu tvoří ½. Ve výlučném užívání má byt v 1.NP sklep a byt ve 2.NP 2 lodžie (viz. přiložené půdorysy). Každá bytová jednotka je vytápěna vlastním plynovým kotlem (s bojlerem na TÚV). U domu je dále zahrada 252 m2 s přístřeškem, kdy ve spodní části je garáž (27 m2) s přímým výjezdem na ulici. Celková plocha pozemku činní 558 m2. Vjezd na pozemek tvoří 2 v brány. IS – elektřina, voda, kanalizace, plynová přípojka na domě. Fotografie přízemního bytu zašlu na vyžádání. Obec Velké Přítočno je obec se základní občanskou vybaveností, kdy je zde ale skvělá dostupnost do Kladna a Prahy. Nájezd na dálnici D6 ( cca 2 minuty), Praha – Zličín (15 minut), zastávka MHD a PID 250 m.

Parametry domu

Cena
12 990 000 Kč /za nemovitost Spočítat hypotéku
Aktualizováno
16. 10. 2025
Adresa
Krátká, Velké Přítočno
ID
0030
Stavba
Smíšená
Stav objektu
Velmi dobrý
Vybaveno
Částečně
Druh objektu
Samostatný
Lokalita objektu
Klidná část obce
Užitná plocha
180 m2
Zastavěná plocha
148 m2
Podlahová plocha
296 m2
Plocha pozemku
558 m2
Plocha zahrady
252 m2
Třída energetické náročnosti
E - Nehospodárná
Ukazatel energetické náročnosti
296 kWh/m2 za rok
Elektřina
230V, 400V
Plyn
Individuální
Odpad
Veřejná kanalizace
Komunikace
Asfaltová
Telekomunikace
Internet
Doprava
Silnice, Autobus
Voda
Vodovod
Topné těleso
Radiátory
Zdroj topení
Plynový kotel
Zdroj teplé vody
Plynový kotel
Garáž
Sklep

Kontaktovat makléře

Máte zájem o tento dům?

Tímto, v souladu s nařízením Evropského parlamentu a Rady (EU) 2016/679, v platném znění, prohlašuji, že mi je alespoň 16 let a uděluji tak svůj souhlas se zpracováním zadaných údajů (jméno, telefon, e-mail, ip adresa) společnosti B3 Technology, s.r.o., IČ: 07330600, se sídlem Novostavby 126/23, 435 11 Lom (správce dat), za účelem předání dotazu z tohoto formuláře Vámi vybranému inzerentovi a zpětného kontaktování mé osoby. Osobní údaje bude správce zpracovávat manuálně i automaticky přímo prostřednictvím svých zaměstnanců. Informace předané tímto formulářem budou uloženy v databázi správce maximálně po dobu 10 let. Odvolání souhlasu s uložením a zpracováním poskytnutých dat lze e-mailem na info@videobydleni.cz. V případě podezření na neoprávněné použití Vámi poskytnutých údajů máte právo předat podnět k šetření Úřadu pro ochranu osobních údajů. Více informací
Chystáte se prodat nemovitost?
Pomůžeme Vám!

Inzerát si prohlédlo 3 lidí

Prodejce

Tomáš Kopa

Tomáš Kopa

Hlídací pes

Chcete dostávat emailem podobné nabídky prodeje vícegeneračních domů v Velkém Přítočně?

Podobné nemovitosti


Nevyhovuje Vám typ domu? Podívejte se na jiné kategorie domů.


Vybrané články z našeho blogu