Remax Monarcha

Prodej bytu 3+kk, Olomouc, Leopolda Pospíšila, 87 m2

Leopolda Pospíšila, Olomouc, Nová Ulice

12 701 000 Kč /za nemovitost HYPOTÉKA od 56 766 Kč /za měsíc
Prémioví partneři v Olomouci

Informace k bytu

Představujeme vám nově vznikající jedinečný projekt bytových domů „Rezidence Jižní Stráně“ v lukrativní a žádané lokalitě na ulici Leopolda Pospíšila v Olomouci.

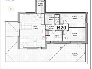
V této druhé etapě vznikne bytový dům BD3 o dvou blocích A,B propojených suterénním parkovištěm s celkem 36 byty. V rámci této etapy vám nabízíme k prodeji byt s výhledem o dispozici 3+kk ve 4NP (označení BD3_B20) s celkovou plochou 166,53 m² (byt 87,23 m², terasa 71,55 m² a sklep 7,75 m²).

Cena bytové jednotky zahrnuje vysoký volitelný standard (kvalitní vinylové podlahy, zařizovací prvky koupelen Villeroy & Boch, Grohe, velkoformátové obklady a dlažba, plné laminátové CPL dveře a další).

Komfort bydlení výrazně zvyšují prvky jako teplovodní podlahové vytápění, rekuperace a venkovní elektrické žaluzie, které jsou součástí standardu.

Jednotka sestává ze dvou neprůchozích pokojů, obývacího pokoje s kuchyňským koutem, koupelny, samostatného WC, předsíně, šatního koutu, terasy a sklepního boxu.

K bytu je možné dokoupit parkovací stání v suterénu domu.

V průběhu přípravy projektu jsme kladli důraz na optimální dispoziční řešení, které splňuje požadavky náročného klienta.

Výjimečnost projektu umocňuje jeho umístění ve svažitém terénu.

Nabízíme vám možnost vlastnit nemovitost v jedné z nejlepších lokalit Olomouce s plnou občanskou vybaveností a výbornou dopravní dostupností do všech částí města.

V případě zájmu kontaktujte manažera projektu.

Parametry bytu

Cena
12 701 000 Kč /za nemovitost Spočítat hypotéku
Aktualizováno
15. 1. 2026
Adresa
Leopolda Pospíšila, Olomouc, Nová Ulice
ID
PD-JS-DB03-3kk_B20
Stavba
Cihlová
Stav objektu
Novostavba
Patro
4.
Vlastnictví
Osobní
Užitná plocha
87 m2
Sklep
Terasa

Kontaktovat makléře

Realitní kancelář

Simplon Power s.r.o.

tř. Svornosti 1177/57, Olomouc

Chystáte se prodat nemovitost?
Pomůžeme Vám!

Máte zájem o tento byt?

Tímto, v souladu s nařízením Evropského parlamentu a Rady (EU) 2016/679, v platném znění, prohlašuji, že mi je alespoň 16 let a uděluji tak svůj souhlas se zpracováním zadaných údajů (jméno, telefon, e-mail, ip adresa) společnosti B3 Technology, s.r.o., IČ: 07330600, se sídlem Novostavby 126/23, 435 11 Lom (správce dat), za účelem předání dotazu z tohoto formuláře Vámi vybranému inzerentovi a zpětného kontaktování mé osoby. Osobní údaje bude správce zpracovávat manuálně i automaticky přímo prostřednictvím svých zaměstnanců. Informace předané tímto formulářem budou uloženy v databázi správce maximálně po dobu 10 let. Odvolání souhlasu s uložením a zpracováním poskytnutých dat lze e-mailem na info@videobydleni.cz. V případě podezření na neoprávněné použití Vámi poskytnutých údajů máte právo předat podnět k šetření Úřadu pro ochranu osobních údajů. Více informací
Chystáte se prodat nemovitost?
Pomůžeme Vám!

Inzerát si prohlédlo 25 lidí

Prodejce

Martin Listopad

Martin Listopad

Hlídací pes

Chcete dostávat emailem podobné nabídky prodeje bytů 3+kk v Olomouci?

Podobné nemovitosti


Nevyhovuje Vám typ bytu? Podívejte se na jiné kategorie bytů.


Vybrané články z našeho blogu